Détails
Nature de l'offre
Usage
VENTE
Étage
Etage 1
Surface habitable
114.2 m2
Surface du terrain
1
Nombre de pièces
4.5Salles d'eau
2
Disponibilité
Disponibilité
A convenir
Référence
Référence
7696-A-D2-D12
Prix de vente
CHF 1'855'000.-
Description
body
Panorama de rêve ! Faites de l’exceptionnel votre lieu de résidence !
Bernard Nicod SA a le plaisir de vous présenter sa nouvelle promotion « Baie d’Opale ». Celle-ci saura vous émerveiller avec ses immeubles de haut standing à l’architecture contemporaine et sa situation idyllique.
Située à 70m du lac Léman, longeant la plage de Rolle, ce projet est réalisé par notre Entreprise Générale Bernard Nicod SA et prévoit 6 immeubles PPE.
La « Baie d’Opale » comprend des logements de 1.5 pièces à 5.5 pièces de conception moderne et propose des espaces de vie généreux ainsi qu’une excellente luminosité. Des locaux commerciaux sont également disponibles à la vente.
Les appartements du rez-de-chaussée ont un jardin privatif et tous les logements bénéficient de terrasses ou balcons. 11 attiques avec vue panoramique et des rooftop terrasses offrent jusqu’à 249m2 de surface pondérée.
Un espace fitness sera mis à disposition des copropriétaires. Le sous-sol abritera l’ensemble des locaux technique, les caves, buanderies et un parking souterrain.
Les aménagements extérieurs de qualité et très soignés mettrons en valeur l’architecture contemporaine des immeubles qui seront à la hauteur des plus exigeants.
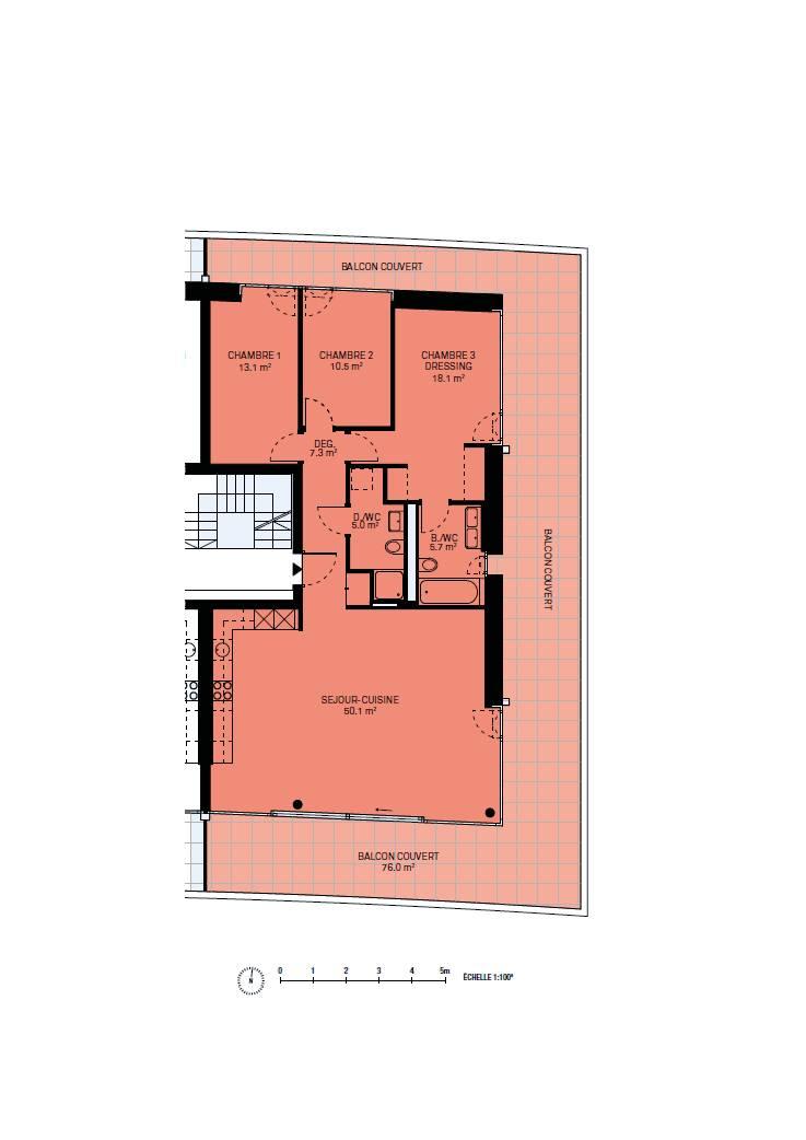
Cet appartement de 4.5 pièces se trouve au 1er étage du bâtiment D2.
Il se compose comme suit :
Hall d'entrée avec armoire murale, cuisine ouverte sur le séjour de 46m2 avec accès au 1er balcon de 19m2 bénéficiant d'une vue 180° sur le lac. Une salle de douches avec WC, trois chambres à coucher dont une parentale avec dressing et salle de bains privative comprenant baignoire, lavabo double, WC et raccordement pour la colonne de lavage. Les 3 chambres à coucher disposent d'un accès au second balcon de 11m2. Une cave complète ce bien.
Deux places de parc intérieures (CHF 48'000.- par unité en sus) complètent ce bien. Une place de parc intérieure pour motocycle est disponible.
LES ATOUTS :
- Labélisé Minergie P Eco
- Pompe à chaleur à sondes géothermiques
- Panneaux photovoltaïque pour une diminution des coûts de votre facture énergétique
- Ventilation : système double flux
- Thermostat d’ambiance dans toutes les pièces
- Construction par l’Entreprise Générale BERNARD NICOD SA
LIVRAISON DES BÂTIMENTS:
D1 – D2 = 30.05.2025
D3 = 30.04.2025
B2 = 30.06.2025
B1 Centre = 30.09.2025
B1 Ouest = 31.10.2025
Bernard Nicod SA a le plaisir de vous présenter sa nouvelle promotion « Baie d’Opale ». Celle-ci saura vous émerveiller avec ses immeubles de haut standing à l’architecture contemporaine et sa situation idyllique.
Située à 70m du lac Léman, longeant la plage de Rolle, ce projet est réalisé par notre Entreprise Générale Bernard Nicod SA et prévoit 6 immeubles PPE.
La « Baie d’Opale » comprend des logements de 1.5 pièces à 5.5 pièces de conception moderne et propose des espaces de vie généreux ainsi qu’une excellente luminosité. Des locaux commerciaux sont également disponibles à la vente.
Les appartements du rez-de-chaussée ont un jardin privatif et tous les logements bénéficient de terrasses ou balcons. 11 attiques avec vue panoramique et des rooftop terrasses offrent jusqu’à 249m2 de surface pondérée.
Un espace fitness sera mis à disposition des copropriétaires. Le sous-sol abritera l’ensemble des locaux technique, les caves, buanderies et un parking souterrain.
Les aménagements extérieurs de qualité et très soignés mettrons en valeur l’architecture contemporaine des immeubles qui seront à la hauteur des plus exigeants.
Cet appartement de 4.5 pièces se trouve au 1er étage du bâtiment D2.
Il se compose comme suit :
Hall d'entrée avec armoire murale, cuisine ouverte sur le séjour de 46m2 avec accès au 1er balcon de 19m2 bénéficiant d'une vue 180° sur le lac. Une salle de douches avec WC, trois chambres à coucher dont une parentale avec dressing et salle de bains privative comprenant baignoire, lavabo double, WC et raccordement pour la colonne de lavage. Les 3 chambres à coucher disposent d'un accès au second balcon de 11m2. Une cave complète ce bien.
Deux places de parc intérieures (CHF 48'000.- par unité en sus) complètent ce bien. Une place de parc intérieure pour motocycle est disponible.
LES ATOUTS :
- Labélisé Minergie P Eco
- Pompe à chaleur à sondes géothermiques
- Panneaux photovoltaïque pour une diminution des coûts de votre facture énergétique
- Ventilation : système double flux
- Thermostat d’ambiance dans toutes les pièces
- Construction par l’Entreprise Générale BERNARD NICOD SA
LIVRAISON DES BÂTIMENTS:
D1 – D2 = 30.05.2025
D3 = 30.04.2025
B2 = 30.06.2025
B1 Centre = 30.09.2025
B1 Ouest = 31.10.2025
Contacter
Image
Image
Baie d'Opale Promotion
Téléphone
+41 21 807 15 15
Email
baiedopale@bernard-nicod.ch
Votre demande a bien été envoyée.