Détails
Nature de l'offre
Usage
VENTE
Étage
Etage REZ
Surface habitable
150 m2
Surface du terrain
794
Nombre de pièces
5.5Salles d'eau
2
Disponibilité
Disponibilité
A convenir
Référence
Référence
Lot 1
Prix de vente
CHF 2'400'000.-
Emplacement
1006 Lausanne
Géolocalisation
Description
body
** En exclusivité chez Bernard Nicod **
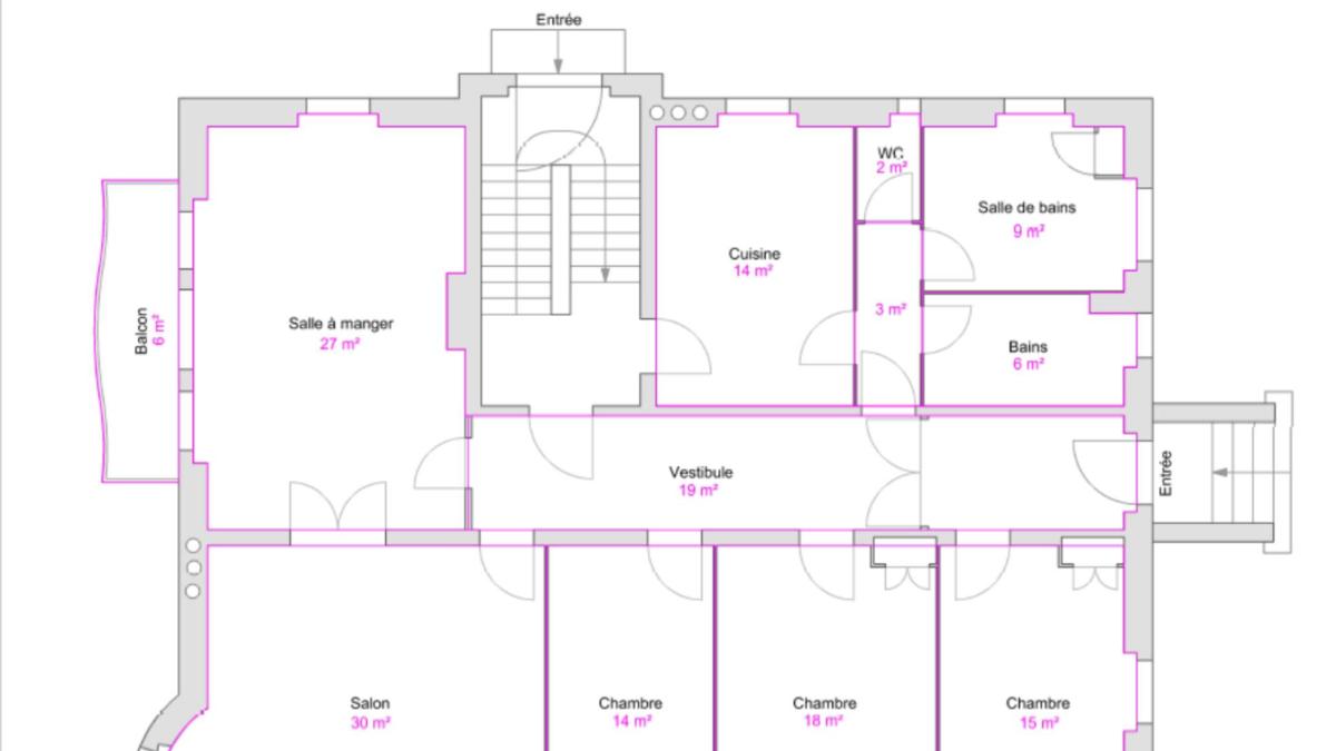
Ce bel appartement de type Haussmannien d'environ 155m2 allie élégance avec son charme de l'ancien et le confort du moderne.
Cheminée d'époque, moulures délicates et apparentes ainsi que des volumes majestueux confèrent à ce bien un cachet incomparable dans l'un des quartiers les plus prisés de Lausanne.
Cette demeure comprend :
- Un grand vestibule
- Une belle double pièce à vivre avec salon + salle à manger d'environ 57m2
- Une cuisine de 14m2
- Trois grandes chambres à coucher entre 14 et 18 m2
- Deux salles de bains
- Un WC visiteurs
- Une cave en sous-sol
Un jardin privatif complète ce bien rare à Lausanne.
Une place de parc extérieure est disponible au pied de la maison en sus à 60'000 CHF.
De plus, il est possible d'acquérir un grand espace au sous-sol, doté de fenêtres et pouvant être utilisé comme atelier ou espace supplémentaire de stockage. Prix du local : 60'000 CHF.
N'hésitez pas à me contacter pour une visite.
Ce bel appartement de type Haussmannien d'environ 155m2 allie élégance avec son charme de l'ancien et le confort du moderne.
Cheminée d'époque, moulures délicates et apparentes ainsi que des volumes majestueux confèrent à ce bien un cachet incomparable dans l'un des quartiers les plus prisés de Lausanne.
Cette demeure comprend :
- Un grand vestibule
- Une belle double pièce à vivre avec salon + salle à manger d'environ 57m2
- Une cuisine de 14m2
- Trois grandes chambres à coucher entre 14 et 18 m2
- Deux salles de bains
- Un WC visiteurs
- Une cave en sous-sol
Un jardin privatif complète ce bien rare à Lausanne.
Une place de parc extérieure est disponible au pied de la maison en sus à 60'000 CHF.
De plus, il est possible d'acquérir un grand espace au sous-sol, doté de fenêtres et pouvant être utilisé comme atelier ou espace supplémentaire de stockage. Prix du local : 60'000 CHF.
N'hésitez pas à me contacter pour une visite.
Contacter
Image
Image
Prénom
Kevin
Nom
Helou
Téléphone
+41 79 376 09 34
Email
kevin.helou@bernard-nicod.ch
Lausanne
Votre demande a bien été envoyée.