Détails
Nature de l'offre
Usage
VENTE
Étage
Etage REZ
Surface habitable
55.2 m2
Surface du terrain
1
Nombre de pièces
2.5Salles d'eau
2
Disponibilité
Disponibilité
A convenir
Référence
Référence
7696-A-B2-F03
Prix de vente
CHF 1'110'000.-
Description
body
Panorama de rêve ! Faites de l’exceptionnel votre lieu de résidence !
Bernard Nicod SA a le plaisir de vous présenter sa nouvelle promotion « Baie d’Opale ». Celle-ci saura vous émerveiller avec ses immeubles de haut standing à l’architecture contemporaine et sa situation idyllique.
Située à 70m du lac Léman, longeant la plage de Rolle, ce projet est réalisé par notre Entreprise Générale Bernard Nicod SA et prévoit 6 immeubles PPE.
La « Baie d’Opale » comprend des logements de 1.5 pièces à 5.5 pièces de conception moderne et propose des espaces de vie généreux ainsi qu’une excellente luminosité. Des locaux commerciaux sont également disponibles à la vente.
Les appartements du rez-de-chaussée ont un jardin privatif et tous les logements bénéficient de terrasses ou balcons. 11 attiques avec vue panoramique et des rooftop terrasses offrent jusqu’à 249m2 de surface pondérée.
Un espace fitness sera mis à disposition des copropriétaires. Le sous-sol abritera l’ensemble des locaux technique, les caves, buanderies et un parking souterrain.
Les aménagements extérieurs de qualité et très soignés mettrons en valeur l’architecture contemporaine des immeubles qui seront à la hauteur des plus exigeants.
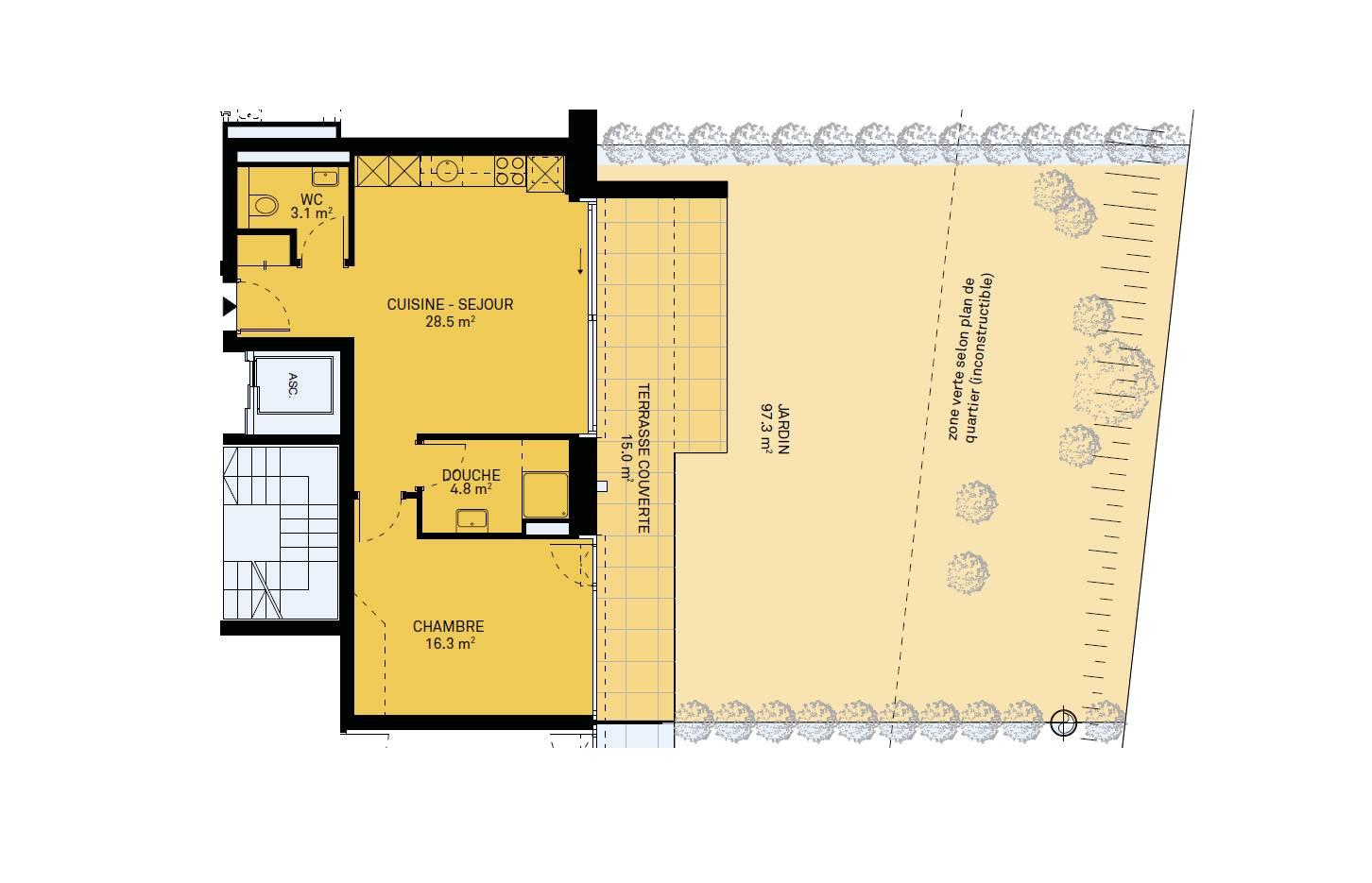
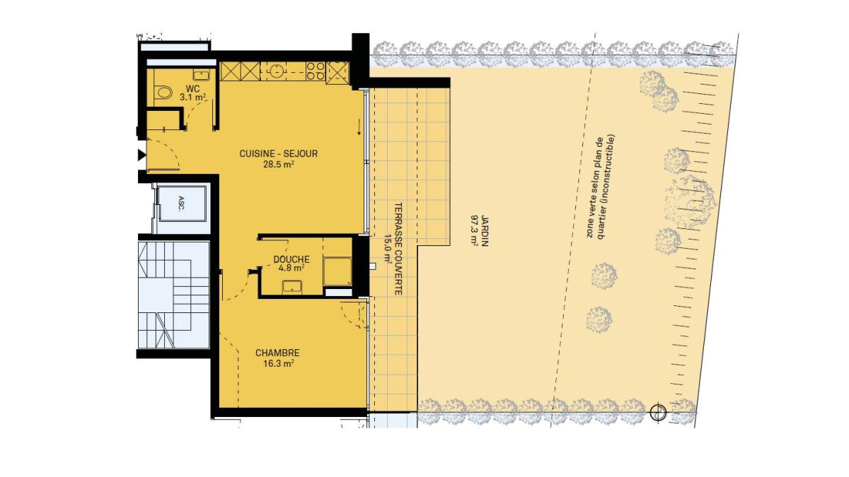
Cet appartement de 2.5 pièces se trouve au rez-de-chaussée du bâtiment B2.
Il se compose comme suit :
Un hall d'entrée avec armoire murale, un séjour / cuisine ouverte de plus de 28m2 avec accès à la terrasse de 15m2 et au jardin de 97m2, une chambre à coucher avec également un accès extérieur, une salle de douche, un WC séparé.
Un place de parc (CHF 55'000.- en sus) ainsi qu'une cave complètent ce bien.
LES ATOUTS :
- Labélisé Minergie P Eco
- Pompe à chaleur à sondes géothermiques
- Panneaux photovoltaïque pour une diminution des coûts de votre facture énergétique
- Ventilation : système double flux
- Thermostat d’ambiance dans toutes les pièces
- Construction par l’Entreprise Générale BERNARD NICOD SA
LIVRAISON :
D1 – D2 = 30.05.2025
D3 = 30.04.2025
B2 = 30.06.2025
B1 Centre = 30.09.2025
B1 Ouest = 31.10.2025
Objets rares à découvrir ! Vue Lac et Mont-blanc à perte de vue.
Bernard Nicod SA a le plaisir de vous présenter sa nouvelle promotion « Baie d’Opale ». Celle-ci saura vous émerveiller avec ses immeubles de haut standing à l’architecture contemporaine et sa situation idyllique.
Située à 70m du lac Léman, longeant la plage de Rolle, ce projet est réalisé par notre Entreprise Générale Bernard Nicod SA et prévoit 6 immeubles PPE.
La « Baie d’Opale » comprend des logements de 1.5 pièces à 5.5 pièces de conception moderne et propose des espaces de vie généreux ainsi qu’une excellente luminosité. Des locaux commerciaux sont également disponibles à la vente.
Les appartements du rez-de-chaussée ont un jardin privatif et tous les logements bénéficient de terrasses ou balcons. 11 attiques avec vue panoramique et des rooftop terrasses offrent jusqu’à 249m2 de surface pondérée.
Un espace fitness sera mis à disposition des copropriétaires. Le sous-sol abritera l’ensemble des locaux technique, les caves, buanderies et un parking souterrain.
Les aménagements extérieurs de qualité et très soignés mettrons en valeur l’architecture contemporaine des immeubles qui seront à la hauteur des plus exigeants.
Cet appartement de 2.5 pièces se trouve au rez-de-chaussée du bâtiment B2.
Il se compose comme suit :
Un hall d'entrée avec armoire murale, un séjour / cuisine ouverte de plus de 28m2 avec accès à la terrasse de 15m2 et au jardin de 97m2, une chambre à coucher avec également un accès extérieur, une salle de douche, un WC séparé.
Un place de parc (CHF 55'000.- en sus) ainsi qu'une cave complètent ce bien.
LES ATOUTS :
- Labélisé Minergie P Eco
- Pompe à chaleur à sondes géothermiques
- Panneaux photovoltaïque pour une diminution des coûts de votre facture énergétique
- Ventilation : système double flux
- Thermostat d’ambiance dans toutes les pièces
- Construction par l’Entreprise Générale BERNARD NICOD SA
LIVRAISON :
D1 – D2 = 30.05.2025
D3 = 30.04.2025
B2 = 30.06.2025
B1 Centre = 30.09.2025
B1 Ouest = 31.10.2025
Objets rares à découvrir ! Vue Lac et Mont-blanc à perte de vue.
Contacter
Image
Image
Baie d'Opale Promotion
Téléphone
+41 21 807 15 15
Email
baiedopale@bernard-nicod.ch
Votre demande a bien été envoyée.