Détails
Nature de l'offre
Usage
VENTE
Surface habitable
195 m2
Surface du terrain
557
Surface de la parcelle
557
Places de parking
1
Disponibilité
Disponibilité
A convenir
Référence
Référence
24-616-01
Prix de vente
CHF 890'000.-
Emplacement
1530 Payerne
Géolocalisation
Description
body
EN EXCLUSIVITE CHEZ BERNARD NICOD !
Immeuble idéal pour investisseur ou pour une grande famille !
Ce bien est situé au centre-ville de Payerne et tous les appartements sont actuellement loués.
Cet objet datant de 1869 comprend 3 appartements et 3 places de parc extérieures.
Il est composé comme suit :
Sous-sol :
Le sous-sol possède 3 caves, qui sont mises à disposition pour les appartements.
Au rez-de-chaussée :
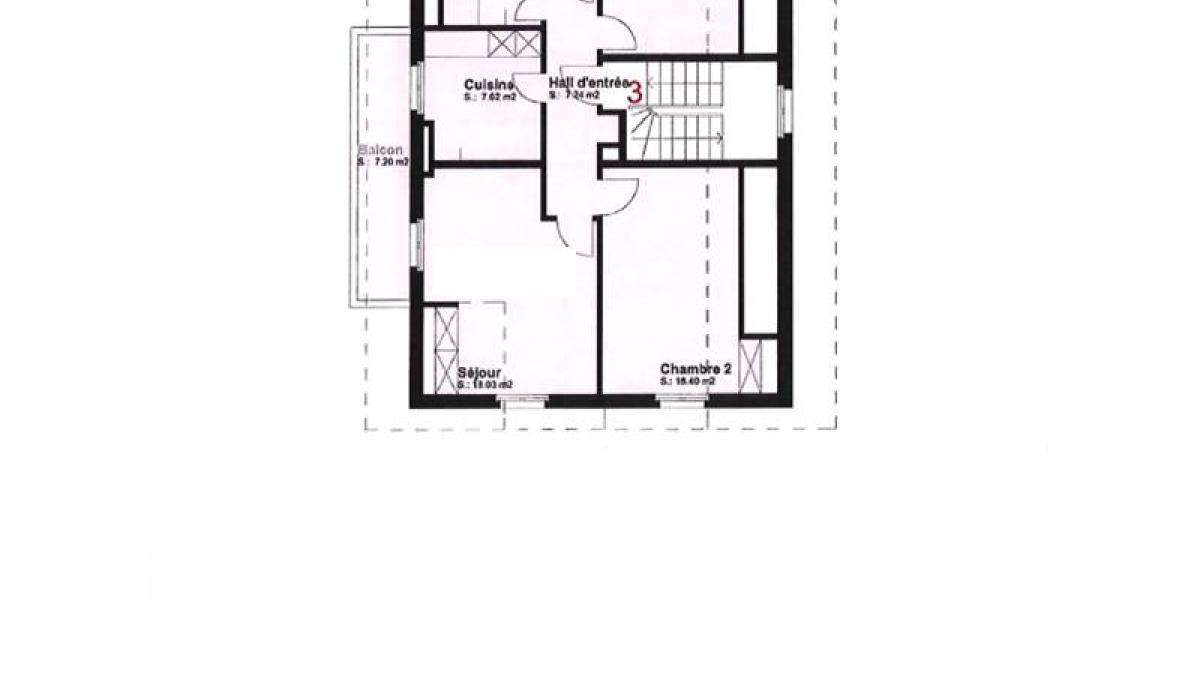
Un appartement de 3,5 pièces avec un hall d’entrée, une cuisine, un grand séjour avec accès au balcon, deux chambres à coucher, une salle de bains et un WC séparé.
Cet appartement est loué 1'146.- + 150.- de charges = CHF 1'296.- par mois. Il est vendu avec reprise de bail.
1er étage :
Un appartement de 3,5 pièces avec un hall d’entrée, une cuisine, un grand séjour avec accès au balcon, deux chambres à coucher, une salle de bains et un WC séparé.
Cet appartement est loué 1'135.- + 150.- de charges= CHF 1'285.- par mois. Il est vendu avec reprise de bail.
2ème étage :
Un appartement de 3,5 pièces avec un hall d’entrée, une cuisine, un grand séjour avec accès à un spacieux balcon , deux chambres à coucher, une salle de bains et un WC séparé.
Cet appartement est loué 1'343.- + 150.- de charges = CHF 1'493.- par mois ainsi qu'une place de parc extérieure à CHF 40.- par mois. Ils sont vendu avec reprise de bail.
N’hésitez pas à nous contacter pour recevoir le dossier complet.
Informations et visites : Alexandra JEREZ & Tania LEITE 024 424 24 26
Immeuble idéal pour investisseur ou pour une grande famille !
Ce bien est situé au centre-ville de Payerne et tous les appartements sont actuellement loués.
Cet objet datant de 1869 comprend 3 appartements et 3 places de parc extérieures.
Il est composé comme suit :
Sous-sol :
Le sous-sol possède 3 caves, qui sont mises à disposition pour les appartements.
Au rez-de-chaussée :
Un appartement de 3,5 pièces avec un hall d’entrée, une cuisine, un grand séjour avec accès au balcon, deux chambres à coucher, une salle de bains et un WC séparé.
Cet appartement est loué 1'146.- + 150.- de charges = CHF 1'296.- par mois. Il est vendu avec reprise de bail.
1er étage :
Un appartement de 3,5 pièces avec un hall d’entrée, une cuisine, un grand séjour avec accès au balcon, deux chambres à coucher, une salle de bains et un WC séparé.
Cet appartement est loué 1'135.- + 150.- de charges= CHF 1'285.- par mois. Il est vendu avec reprise de bail.
2ème étage :
Un appartement de 3,5 pièces avec un hall d’entrée, une cuisine, un grand séjour avec accès à un spacieux balcon , deux chambres à coucher, une salle de bains et un WC séparé.
Cet appartement est loué 1'343.- + 150.- de charges = CHF 1'493.- par mois ainsi qu'une place de parc extérieure à CHF 40.- par mois. Ils sont vendu avec reprise de bail.
N’hésitez pas à nous contacter pour recevoir le dossier complet.
Informations et visites : Alexandra JEREZ & Tania LEITE 024 424 24 26
Contacter
Image
Image
Prénom
Alexandra
Nom
Jerez
Téléphone
+41 79 945 43 90
Email
alexandra.jerez@bernard-nicod.ch
Yverdon-les-Bains
Votre demande a bien été envoyée.