Offices in the heart of downtown Lausanne

Photos

Details

Offer type

Location

Floor

Floor 4

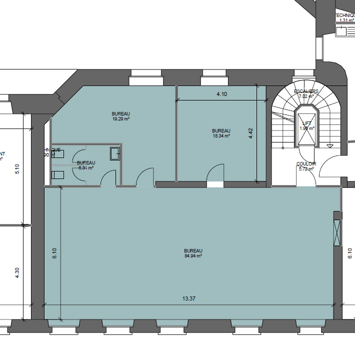
Area

Surface usable 128

Availability

Available from

Reference

021577.03.240042

Net rent

CHF 3'290.-

Charges

CHF 285.-

Location

1003 LAUSANNE, Rue Centrale 6
Géolocalisation

Description

Object description

We offer you a 128 m2 office space for rent, ideally located in the city center, offering a pleasant and functional working environment.


These spaces consist of:

  • A bright, spacious open space
  • Two enclosed offices, perfect for working in complete confidentiality
  • Two WCs

This versatile space will be perfect for a company wishing to combine visibility and comfort in a central location.


Privileged location, close to amenities and transport.


To arrange a viewing, please contact the current tenant:

Montalba Architects Sàrl
021 311 42 96

Contact

Image
Image
Icône collaborateur homme
Lucie Lagrost
Téléphone
+41 21 331 55 49
Email
lucie.lagrost@bernard-nicod.ch
Lausanne
Your request has been sent successfully.