Détails
Nature de l'offre
Location
Étage
Floor 1
Surface
Surface usable 63
Référence
008380.10.210912
Loyer net
CHF 1'090.-
Charges
CHF 220.-
Description
Object description
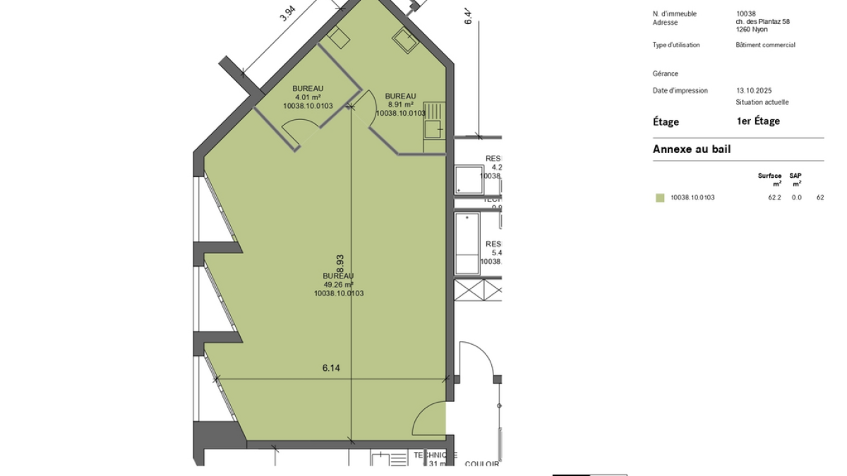
A Nyon, à un quinzaine de minutes de marche de la gare, bureau d'environ 62m2 au 1er étage d'un petit immeuble résidentiel.
Idéale pour accueillir un cabinet d'architecte, une onglerie ou encore une activité de coaching nutrition, bien être.
Cette espace jouit d'une belle luminosité grâce à de grandes ouvertures sur l'extérieure.
Il est répartis en un vaste open space, une kitchenette, Un WC et une pièce polyvalente pouvant faire office d'économat ou de salle d'archives par exemple.
Le loyer se compose comme suit:
Loyer : Frs 1'090.-
Charges : Frs 100.-
Frais accessoires: Frs 120.-
Parking intérieur : Frs 130.-
Disponible immédiatement
Visites et renseignements: Bernard Nicod Nyon SA - 022.990.90.90
Idéale pour accueillir un cabinet d'architecte, une onglerie ou encore une activité de coaching nutrition, bien être.
Cette espace jouit d'une belle luminosité grâce à de grandes ouvertures sur l'extérieure.
Il est répartis en un vaste open space, une kitchenette, Un WC et une pièce polyvalente pouvant faire office d'économat ou de salle d'archives par exemple.
Le loyer se compose comme suit:
Loyer : Frs 1'090.-
Charges : Frs 100.-
Frais accessoires: Frs 120.-
Parking intérieur : Frs 130.-
Disponible immédiatement
Visites et renseignements: Bernard Nicod Nyon SA - 022.990.90.90
Contacter
Image
Image
Votre demande a bien été envoyée.