Détails
Nature de l'offre
Usage
VENTE
Étage
Etage 2
Surface habitable
161 m2
Surface du terrain
774
Nombre de pièces
5.5Salles d'eau
2
Places de parking
2
Disponibilité
Disponibilité
A convenir
Référence
Référence
25-611-09
Charges
CHF 5'400.-
Prix de vente
CHF 1'135'000.-
Emplacement
1436 Chamblon
Géolocalisation
Description
body
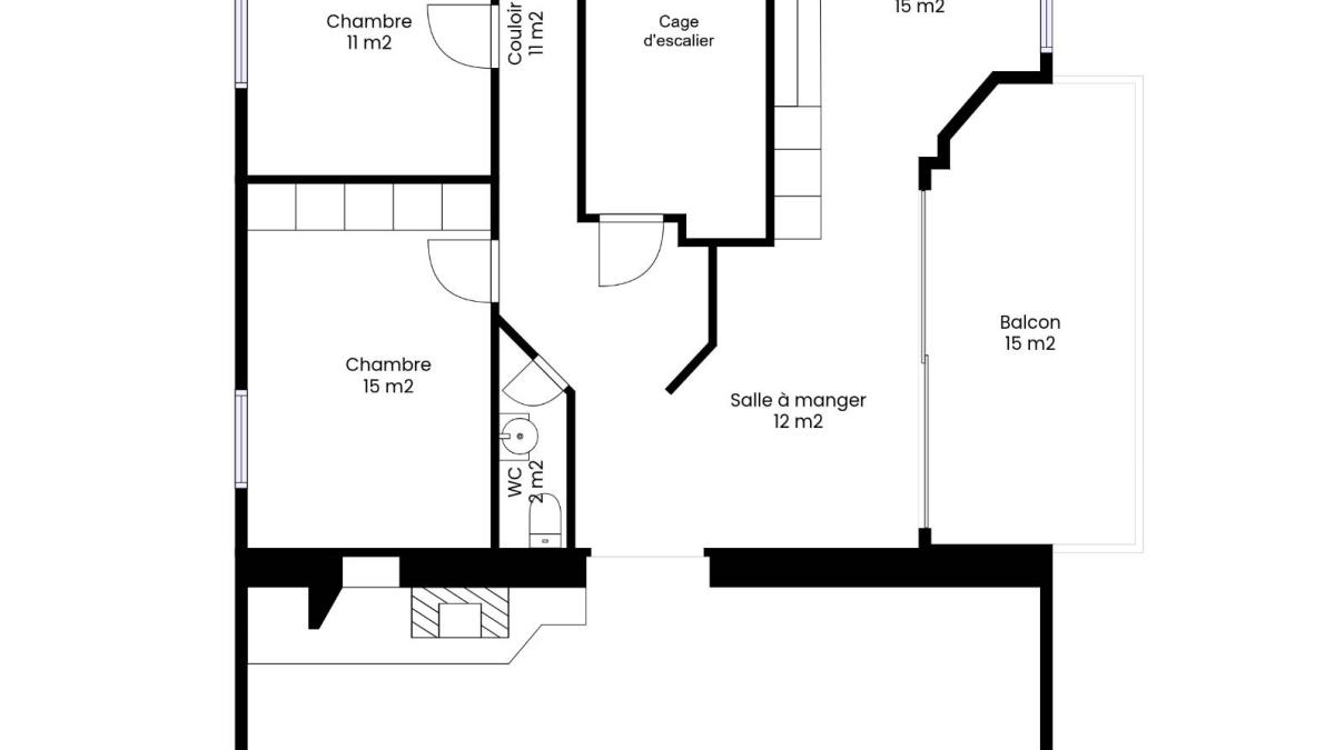
Situé au cœur du charmant village de Chamblon, à proximité immédiate d’Yverdon-les-Bains, ce magnifique attique de 150 m² occupe tout le dernier étage d’une copropriété intimiste de trois lots seulement. Cet appartement offre un cadre de vie paisible et verdoyant, avec une superbe vue dégagée sur les Alpes.
Espace jour
Un hall d’entrée mène à l'espace cuisine / salle à manger avec un grand balcon de 11m2, idéal pour profiter du panorama. Le vaste séjour avec cheminée vous séduira par ses belles hauteurs sous plafond. Un WC visiteur complète cette partie.
Espace nuit
Parfaitement séparée, la partie nuit offre quatre confortables chambres à coucher ainsi qu’une grande salle d’eau familliale équipée d’une baignoire, d’une douche, d’un double lavabo, d’un WC et d’une machine à laver privative.
Extérieure :
Le jardin actuellement commun, sera séparé en trois parties privatives et pourra être clôturé. Ce jardin est un vrai atout pour profiter pleinement des beaux jours.
Au sous-sol , un carnotzet commun et une grande cave à vin privative sont à disposition pour cultiver l’élégance des instants partagés et vos plus grands crus avec vos convives.
Les charges PPE s'élèvent à environ CHF 450.- par mois.
Atouts complémentaires
- Jardin commun avec possibilité de jouissance exclusive,
- Deux places de parc extérieures,
- Une cave à vin privative,
- Une cave,
- Une buanderie commune,
- Un carnotzet commun.
Un bien d’exception alliant confort, intimité et élégance.
Ce bien rare à la vente allie espace, confort et tranquillité, à seulement quelques minutes du centre d’Yverdon-les-Bains et de toutes ses commodités.
INFORMATIONS ET VISITES : Alexandra jerez et Tania Leite : 024 424 24 26
Espace jour
Un hall d’entrée mène à l'espace cuisine / salle à manger avec un grand balcon de 11m2, idéal pour profiter du panorama. Le vaste séjour avec cheminée vous séduira par ses belles hauteurs sous plafond. Un WC visiteur complète cette partie.
Espace nuit
Parfaitement séparée, la partie nuit offre quatre confortables chambres à coucher ainsi qu’une grande salle d’eau familliale équipée d’une baignoire, d’une douche, d’un double lavabo, d’un WC et d’une machine à laver privative.
Extérieure :
Le jardin actuellement commun, sera séparé en trois parties privatives et pourra être clôturé. Ce jardin est un vrai atout pour profiter pleinement des beaux jours.
Au sous-sol , un carnotzet commun et une grande cave à vin privative sont à disposition pour cultiver l’élégance des instants partagés et vos plus grands crus avec vos convives.
Les charges PPE s'élèvent à environ CHF 450.- par mois.
Atouts complémentaires
- Jardin commun avec possibilité de jouissance exclusive,
- Deux places de parc extérieures,
- Une cave à vin privative,
- Une cave,
- Une buanderie commune,
- Un carnotzet commun.
Un bien d’exception alliant confort, intimité et élégance.
Ce bien rare à la vente allie espace, confort et tranquillité, à seulement quelques minutes du centre d’Yverdon-les-Bains et de toutes ses commodités.
INFORMATIONS ET VISITES : Alexandra jerez et Tania Leite : 024 424 24 26
Contacter
Image
Image
Prénom
Alexandra
Nom
Jerez
Téléphone
+41 79 945 43 90
Email
alexandra.jerez@bernard-nicod.ch
Yverdon-les-Bains
Votre demande a bien été envoyée.