Détails
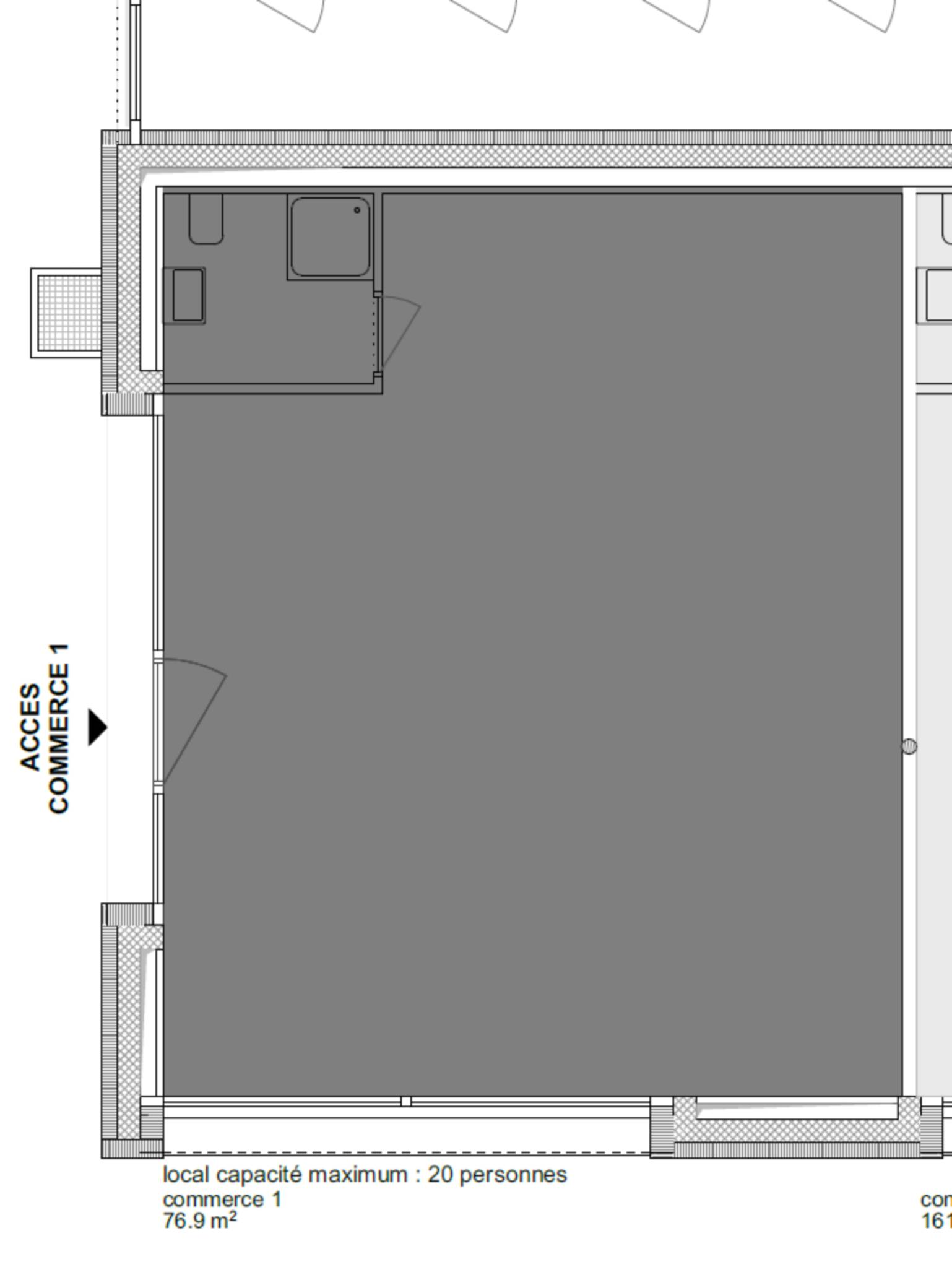
Surface habitable
±76.9
m2
Réf.:
61953
Coût
CHF 315’000.-
Emplacement
Adresse:
Yverdon-les-Bains
Description
Bernard Nicod SA a le plaisir de vous présenter en exclusivité son projet « Silo Renaissance » dans la charmante ville d’Yverdon-les-Bains.
Figure emblématique de la ville d’Yverdon-les-Bains, l’ancien Moulin, réputé pour ses farines artisanales, va subir une transformation spectaculaire pour donner naissance au nouveau projet Silo Renaissance, mêlant habitation et commerces. Dans le souci de préserver l'histoire du Moulin d’Yverdon, les volumes d'origine ont été préservés, tandis que le Silo a été repensé sous la forme d'une tour abritant bureaux et jardins potagers.
La résidence se composera de 15 appartements modernes de 1.5 à 5.5 pièces, 1 surface commerciale et 2 bureaux.
Ce local commercial se situe au rez-de-chaussée.
Chaque appartement disposera d’une cave et d’une place de parc intérieure (CHF 35'000.- en sus).
Aménagez vos pièces, choisissez la cuisine de vos rêves et finissez vos intérieurs selon vos goûts. Votre futur logement sera spacieux, confortable et adapté à votre mode de vie.
Choisissez l'appartement idéal :
1.5 pièces dès 29m2 à partir de CHF 300'000.-
2.5 pièces dès 56m2 à partir de CHF 540'000.-
3.5 pièces dès 70m2 à partir de CHF 690'000.-
5.5 pièces dès 112m2 à partir de CHF 1'050'000.-
LES ATOUTS :
• Production de chauffage par pompe à chaleur (air/eau)
• Chaque appartement dispose d’un espace extérieur
• Finitions au choix de l’acheteur
• Panneaux photovoltaïques (pour une diminution de votre facture d’énergie)
• Thermostat d’ambiance dans toutes les pièces• Construction par l’entreprise générale BERNARD NICOD SA
Les appartements seront livrés au printemps 2026.
La ville jouit d’un patrimoine historique varié, réuni dans la vieille ville et ses musées. Le Centre Thermal avec ses centres de soins est composé de 3 bassins dont deux extérieurs.
Des activités nautiques telles que la location de pédalo ou de paddle sont à votre disposition à la Plage.
Hôtels et restaurants divers et variés offrent aux habitants le plaisir de la dégustation et la recherche de nouvelles saveurs.
Découvrez votre futur lieu de vie en prenant contact avec notre équipe pour une présentation complète de notre projet et profitez ainsi de conseils personnalisés par nos courtières ALEXANDRA JEREZ 024 424 31 34 et TANIA LEITE 024 424 24 25.
Figure emblématique de la ville d’Yverdon-les-Bains, l’ancien Moulin, réputé pour ses farines artisanales, va subir une transformation spectaculaire pour donner naissance au nouveau projet Silo Renaissance, mêlant habitation et commerces. Dans le souci de préserver l'histoire du Moulin d’Yverdon, les volumes d'origine ont été préservés, tandis que le Silo a été repensé sous la forme d'une tour abritant bureaux et jardins potagers.
La résidence se composera de 15 appartements modernes de 1.5 à 5.5 pièces, 1 surface commerciale et 2 bureaux.
Ce local commercial se situe au rez-de-chaussée.
Chaque appartement disposera d’une cave et d’une place de parc intérieure (CHF 35'000.- en sus).
Aménagez vos pièces, choisissez la cuisine de vos rêves et finissez vos intérieurs selon vos goûts. Votre futur logement sera spacieux, confortable et adapté à votre mode de vie.
Choisissez l'appartement idéal :
1.5 pièces dès 29m2 à partir de CHF 300'000.-
2.5 pièces dès 56m2 à partir de CHF 540'000.-
3.5 pièces dès 70m2 à partir de CHF 690'000.-
5.5 pièces dès 112m2 à partir de CHF 1'050'000.-
LES ATOUTS :
• Production de chauffage par pompe à chaleur (air/eau)
• Chaque appartement dispose d’un espace extérieur
• Finitions au choix de l’acheteur
• Panneaux photovoltaïques (pour une diminution de votre facture d’énergie)
• Thermostat d’ambiance dans toutes les pièces• Construction par l’entreprise générale BERNARD NICOD SA
Les appartements seront livrés au printemps 2026.
La ville jouit d’un patrimoine historique varié, réuni dans la vieille ville et ses musées. Le Centre Thermal avec ses centres de soins est composé de 3 bassins dont deux extérieurs.
Des activités nautiques telles que la location de pédalo ou de paddle sont à votre disposition à la Plage.
Hôtels et restaurants divers et variés offrent aux habitants le plaisir de la dégustation et la recherche de nouvelles saveurs.
Découvrez votre futur lieu de vie en prenant contact avec notre équipe pour une présentation complète de notre projet et profitez ainsi de conseils personnalisés par nos courtières ALEXANDRA JEREZ 024 424 31 34 et TANIA LEITE 024 424 24 25.
Contactez-nous
Remplissez le formulaire ci-dessous pour envoyer un e-mail