Détails
Surface habitable
±78
m2
Pièces
4.5
Pièces
Réf.:
62129
Nombre de chambres
3
chambres
Coût
CHF 715’000.-
Emplacement
Adresse:
Corcelles-sur-Chavornay
Description
NOUVELLE PROMOTION A CORCELLES-SUR-CHAVORNAY
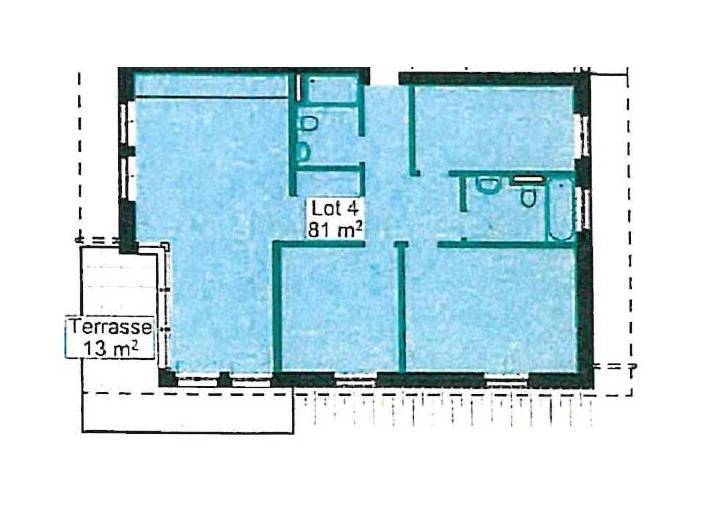
Cet appartement de 4.5 pièces se situe au 1er étage de l'immeuble A. Il offre une surface habitable d'environ 81 m2 et est conçu pour offrir un espace de vie confortable et fonctionnel.
L'appartement dispose d'un balcon de 13 m2.
Il se compose comme suit :
Un hall d'entrée avec armoires murales. La partie jour avec le séjour/cuisine donnant accès à la terrasse et au jardin et une salle de douche/WC. Deux chambres à coucher, un bureau et une salle de bains avec WC.
L'immeuble propose également d'autres commodités pour les résidents, telles qu'un parking souterrain, une buanderie commune et un local vélo.
Deux places de parc intérieures (30'000 CHF l'unité en sus), ainsi qu'une cave complètent ce bien.
Corcelles-sur-Chavornay est un village du Jura-Nord vaudois, offrant un cadre verdoyant et une qualité de vie idéale.
À seulement 3 minutes de Chavornay, 15 minutes d’Yverdon-les-Bains et 30 minutes de Lausanne, il allie calme et proximité urbaine. Il bénéficie de toutes les commodités essentielles.
Livraison : environ septembre 2026
Finitions au choix de l'acquéreur
Vente en quote-part terrain pour des frais d'achat réduits !
INFORMATIONS ET VISITES : ALEXANDRA JEREZ 079 945 43 90 et TANIA LEITE 076 577 34 32
Cet appartement de 4.5 pièces se situe au 1er étage de l'immeuble A. Il offre une surface habitable d'environ 81 m2 et est conçu pour offrir un espace de vie confortable et fonctionnel.
L'appartement dispose d'un balcon de 13 m2.
Il se compose comme suit :
Un hall d'entrée avec armoires murales. La partie jour avec le séjour/cuisine donnant accès à la terrasse et au jardin et une salle de douche/WC. Deux chambres à coucher, un bureau et une salle de bains avec WC.
L'immeuble propose également d'autres commodités pour les résidents, telles qu'un parking souterrain, une buanderie commune et un local vélo.
Deux places de parc intérieures (30'000 CHF l'unité en sus), ainsi qu'une cave complètent ce bien.
Corcelles-sur-Chavornay est un village du Jura-Nord vaudois, offrant un cadre verdoyant et une qualité de vie idéale.
À seulement 3 minutes de Chavornay, 15 minutes d’Yverdon-les-Bains et 30 minutes de Lausanne, il allie calme et proximité urbaine. Il bénéficie de toutes les commodités essentielles.
Livraison : environ septembre 2026
Finitions au choix de l'acquéreur
Vente en quote-part terrain pour des frais d'achat réduits !
INFORMATIONS ET VISITES : ALEXANDRA JEREZ 079 945 43 90 et TANIA LEITE 076 577 34 32
Contactez-nous
Remplissez le formulaire ci-dessous pour envoyer un e-mail