Détails
Surface habitable
±158
m2
Pièces
5.5
Pièces
Réf.:
62107
Nombre de chambres
4
chambres
Coût
CHF 1’140’000.-
Emplacement
Adresse:
Chevilly
Description
NOUVELLE PROMOTION !
Vous appréciez la nature, le calme mais souhaitez également être proche des grandes villes ? Alors optez sans plus tarder pour la nouvelle promotion située au cœur du charmant village de Chevilly.
Ce projet prévoit un immeuble de 5 appartements, de 3.5 à 5.5 pièces dès 133 m2 jusqu'à 202 m2 de surface pondérée.
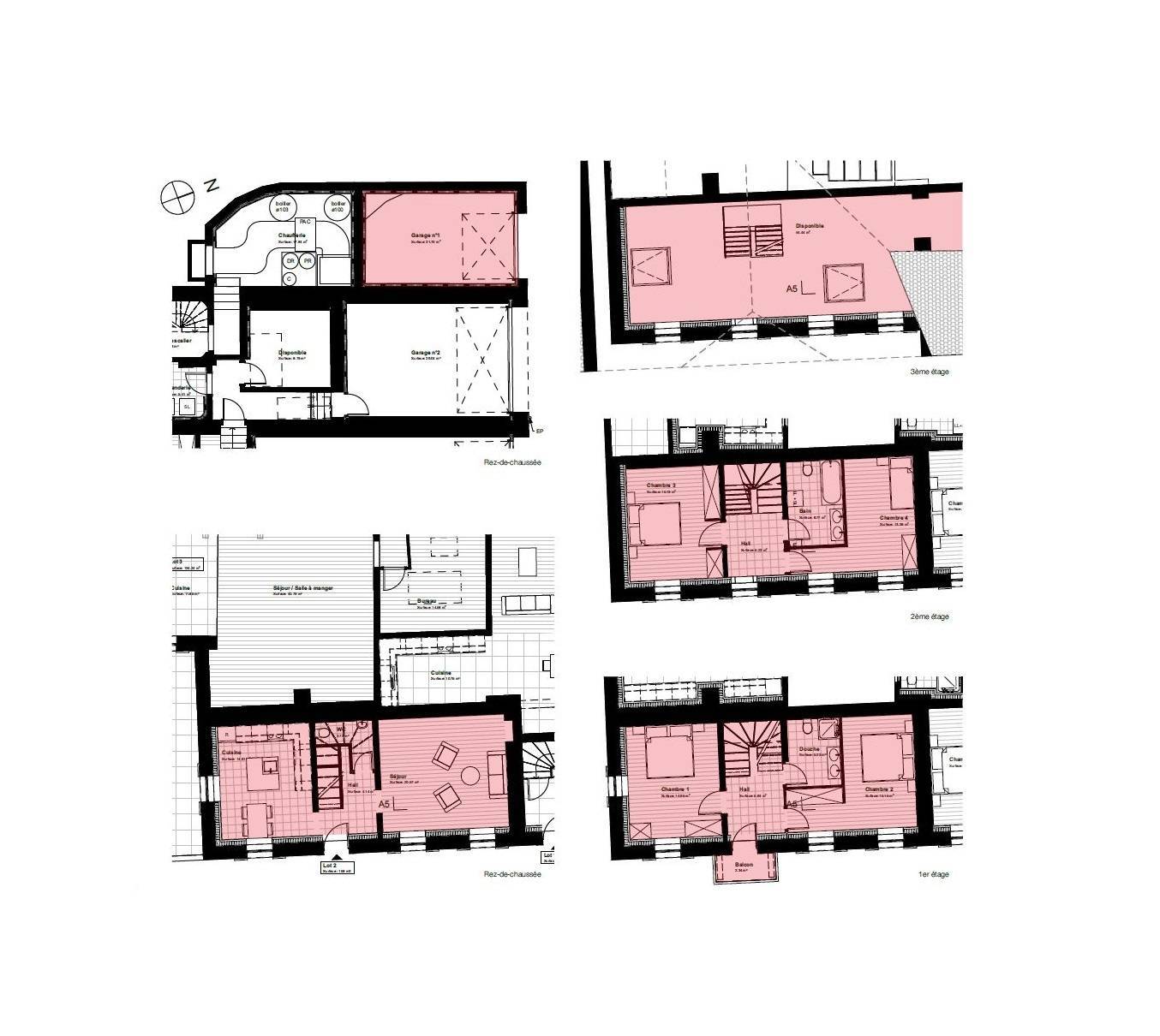
Cet appartement de 5.5 pièces en triplex se situe au rez-de-chaussée.
Il se compose d'un premier étage avec un hall d'entrée, sur la droite le séjour, sur la gauche la cuisine et un WC visiteur.
Au premier étage, un hall donne accès à deux chambre à coucher et un salle de douche/WC.
Le dernier étage se compose également de deux chambre à coucher et d'une salle de bain/WC.
L'appartement dispose d'un disponible de 44 m2.
Une cave, un garage de 21m2 (CHF 35'000.- en sus) et une place de parc extérieure (CHF 10'000 en sus) complètent ce bien.
Votre futur logement sera spacieux, confortable et adaptée à votre mode de vie.
Le village de Chevilly est situé dans le canton de Vaud en Suisse. C'est une commune qui fait partie du district de Morges.
Chevilly est un petit village pittoresque, entouré de champs et de vignobles, typique de la région vaudoise. Il est situé dans la campagne, à quelques kilomètres au nord de la ville de Morges, qui est la principale ville de la région.
Le village de Chevilly offre un cadre paisible et rural, avec des maisons traditionnelles en pierre et des paysages agricoles. Il est idéal pour ceux qui recherchent la tranquillité et l'authenticité de la vie villageoise suisse. Le canton de Vaud est réputé pour ses paysages variés.
Livraison prévue : été 2026
Finitions au choix de l'acquéreur
Vente en quote-part terrain pour des frais d'achat réduits !
INFORMATIONS ET VISITE au 021 807 15 20
Vous appréciez la nature, le calme mais souhaitez également être proche des grandes villes ? Alors optez sans plus tarder pour la nouvelle promotion située au cœur du charmant village de Chevilly.
Ce projet prévoit un immeuble de 5 appartements, de 3.5 à 5.5 pièces dès 133 m2 jusqu'à 202 m2 de surface pondérée.
Cet appartement de 5.5 pièces en triplex se situe au rez-de-chaussée.
Il se compose d'un premier étage avec un hall d'entrée, sur la droite le séjour, sur la gauche la cuisine et un WC visiteur.
Au premier étage, un hall donne accès à deux chambre à coucher et un salle de douche/WC.
Le dernier étage se compose également de deux chambre à coucher et d'une salle de bain/WC.
L'appartement dispose d'un disponible de 44 m2.
Une cave, un garage de 21m2 (CHF 35'000.- en sus) et une place de parc extérieure (CHF 10'000 en sus) complètent ce bien.
Votre futur logement sera spacieux, confortable et adaptée à votre mode de vie.
Le village de Chevilly est situé dans le canton de Vaud en Suisse. C'est une commune qui fait partie du district de Morges.
Chevilly est un petit village pittoresque, entouré de champs et de vignobles, typique de la région vaudoise. Il est situé dans la campagne, à quelques kilomètres au nord de la ville de Morges, qui est la principale ville de la région.
Le village de Chevilly offre un cadre paisible et rural, avec des maisons traditionnelles en pierre et des paysages agricoles. Il est idéal pour ceux qui recherchent la tranquillité et l'authenticité de la vie villageoise suisse. Le canton de Vaud est réputé pour ses paysages variés.
Livraison prévue : été 2026
Finitions au choix de l'acquéreur
Vente en quote-part terrain pour des frais d'achat réduits !
INFORMATIONS ET VISITE au 021 807 15 20
Contactez-nous
Remplissez le formulaire ci-dessous pour envoyer un e-mail