Détails
Surface habitable
±106.7
m2
Pièces
3.5
Pièces
Réf.:
79731
Nombre de chambres
2
chambres
Coût
CHF 1’520’000.-
Emplacement
Adresse:
Lausanne
Description
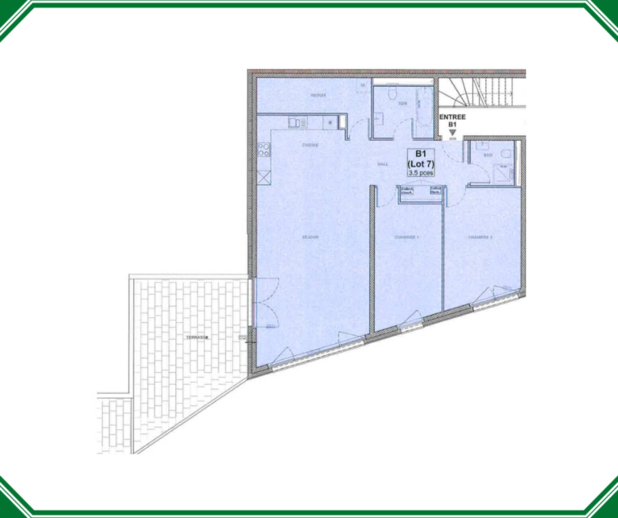
L’appartement s’organise autour d’une belle pièce de vie où la cuisine ouverte sur le séjour offre un cadre lumineux et agréable au quotidien. Une grande terrasse de 27,8 m² prolonge la pièce de vie, idéale pour les repas en extérieur et les moments de détente.
Un réduit avec installation pour lave-linge apporte un confort appréciable.
Le bien dispose de deux chambres confortables. Une salle de douche et une salle de bains, distinctes des chambres, viennent compléter l’agencement et assurent une utilisation pratique au quotidien.
Pensées pour un confort quotidien sans compromis, les résidences offrent des espaces communs soignés, caves privatives, local pour vélos/poussettes et zone de bricolage.
Places de parc extérieures en sus entre CHF 30'000.- et CHF 40'000.-.
Familles, couples ou jeunes seniors trouveront ici un cadre de vie harmonieux, alliant modernité, sérénité et élégance, au sein d’un quartiers prisé de Lausanne.
Un réduit avec installation pour lave-linge apporte un confort appréciable.
Le bien dispose de deux chambres confortables. Une salle de douche et une salle de bains, distinctes des chambres, viennent compléter l’agencement et assurent une utilisation pratique au quotidien.
Pensées pour un confort quotidien sans compromis, les résidences offrent des espaces communs soignés, caves privatives, local pour vélos/poussettes et zone de bricolage.
Places de parc extérieures en sus entre CHF 30'000.- et CHF 40'000.-.
Familles, couples ou jeunes seniors trouveront ici un cadre de vie harmonieux, alliant modernité, sérénité et élégance, au sein d’un quartiers prisé de Lausanne.
Contactez-nous
Remplissez le formulaire ci-dessous pour envoyer un e-mail