Détails
Surface habitable
±99
m2
Pièces
4.5
Pièces
Réf.:
67035
Nombre de chambres
3
chambres
Statut
Vendu
Emplacement
Adresse:
Denges
Description
Bernard Nicod SA a le plaisir de vous présenter en exclusivité son projet « Les Résidences du Village » dans le charmant village de Denges. La haute qualité architecturale de ce projet qui a été réalisé par notre Entreprise Générale Bernard Nicod SA, fait partie du plan de quartier « Les Ochettes ».
Cette promotion est composée de 2 bâtiments totalisant 70 logements et 7 surfaces commerciales. Du studio au 4.5 pièces, avec des surfaces pondérées allant de 29m2 à 144m2, le bâtiment A offre de magnifiques attiques avec vue dégagée et des rooftop terrasses de plus de 86m2.
Choisissez l'appartement idéal :1.5 pièces de 29m2 à 45m2 dès 380'000.-2.5 pièces de 50m2 à 77m2 dès 550'000.-3.5 pièces de 72m2 à 100m2 dès 710'000.-4.5 pièces de 105m2 à 144m2 dès 1'080'000.-
Le sous-sol abritera l’ensemble des locaux technique, les caves, buanderie et un parking intérieur pour 104 voitures.
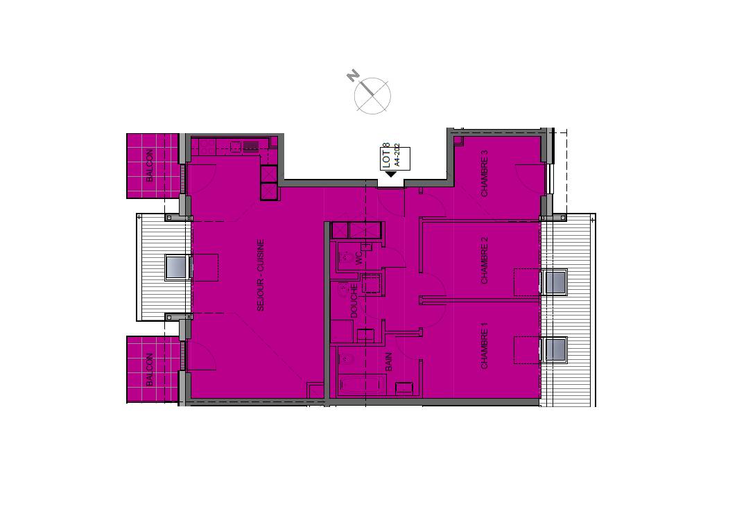
Cet appartement de 4.5 pièces se situe au dernier étage du bâtiment A.
Il se compose d'un hall d'entrée muni d'armoires murales, d'une cuisine ouverte sur le lumineux séjour avec accès direct aux balcons. Trois chambres à coucher dont une avec salle de bains/WC attenante, une salle de douches/WC avec arrivée d'eau pour la colonne de lavage et WC visiteurs.
Une cave et une place de parc intérieure (CHF 35'000.- en sus) complètent ce bien.
Possibilité d'acquérir une seconde place de parc intérieure (CHF 35'000 en sus).
Les appartements seront livrés 5 mois après la signature.
LES ATOUTS :- Chauffage à distance aux pellets suisse - Panneaux photovoltaïque pour une diminution des coûts de votre facture énergétique- Ventilation simple flux- Fibre optique- Thermostat d’ambiance dans toutes les pièces- Cuisine de chez Veneta Cucine - Finitions au choix de l’acheteur - Construction par l’entreprise générale BERNARD NICOD- Livraison rapide des appartements
Le village de Denges est idéalement situé dans le district de Morges entre les villes de Lausanne et de Morges, qui sont facilement accessibles en transports publics via le CFF express régional vaudois (toutes les heures) ou le réseau des bus de la région morgienne.
Le collège de la Crosette à Denges acceuille les écoliers de 1er Cycle: 1-3P / 2e Cycle: 5-6P. L’école est rattachée à l’Etablissement Primaire et Secondaire de Préverenges avec les communes de Lonay, Echandens et Préverenges.
La nursery, garderie « Les Petites Couleurs » est seulement à quelques minutes à pied. Il en va de même pour l’UAPE « Les Pirates ».
La place de jeux communale et le centre de tri se situent à une minute à pied.
Découvrez votre futur lieu de vie en prenant contact avec notre équipe pour une présentation complète de notre projet et profiter ainsi de conseils personnalisés par nos courtières ALEXANDRA JEREZ 079 945 43 90 et TANIA LEITE 076 577 34 32.
Cette promotion est composée de 2 bâtiments totalisant 70 logements et 7 surfaces commerciales. Du studio au 4.5 pièces, avec des surfaces pondérées allant de 29m2 à 144m2, le bâtiment A offre de magnifiques attiques avec vue dégagée et des rooftop terrasses de plus de 86m2.
Choisissez l'appartement idéal :1.5 pièces de 29m2 à 45m2 dès 380'000.-2.5 pièces de 50m2 à 77m2 dès 550'000.-3.5 pièces de 72m2 à 100m2 dès 710'000.-4.5 pièces de 105m2 à 144m2 dès 1'080'000.-
Le sous-sol abritera l’ensemble des locaux technique, les caves, buanderie et un parking intérieur pour 104 voitures.
Cet appartement de 4.5 pièces se situe au dernier étage du bâtiment A.
Il se compose d'un hall d'entrée muni d'armoires murales, d'une cuisine ouverte sur le lumineux séjour avec accès direct aux balcons. Trois chambres à coucher dont une avec salle de bains/WC attenante, une salle de douches/WC avec arrivée d'eau pour la colonne de lavage et WC visiteurs.
Une cave et une place de parc intérieure (CHF 35'000.- en sus) complètent ce bien.
Possibilité d'acquérir une seconde place de parc intérieure (CHF 35'000 en sus).
Les appartements seront livrés 5 mois après la signature.
LES ATOUTS :- Chauffage à distance aux pellets suisse - Panneaux photovoltaïque pour une diminution des coûts de votre facture énergétique- Ventilation simple flux- Fibre optique- Thermostat d’ambiance dans toutes les pièces- Cuisine de chez Veneta Cucine - Finitions au choix de l’acheteur - Construction par l’entreprise générale BERNARD NICOD- Livraison rapide des appartements
Le village de Denges est idéalement situé dans le district de Morges entre les villes de Lausanne et de Morges, qui sont facilement accessibles en transports publics via le CFF express régional vaudois (toutes les heures) ou le réseau des bus de la région morgienne.
Le collège de la Crosette à Denges acceuille les écoliers de 1er Cycle: 1-3P / 2e Cycle: 5-6P. L’école est rattachée à l’Etablissement Primaire et Secondaire de Préverenges avec les communes de Lonay, Echandens et Préverenges.
La nursery, garderie « Les Petites Couleurs » est seulement à quelques minutes à pied. Il en va de même pour l’UAPE « Les Pirates ».
La place de jeux communale et le centre de tri se situent à une minute à pied.
Découvrez votre futur lieu de vie en prenant contact avec notre équipe pour une présentation complète de notre projet et profiter ainsi de conseils personnalisés par nos courtières ALEXANDRA JEREZ 079 945 43 90 et TANIA LEITE 076 577 34 32.
Contactez-nous
Remplissez le formulaire ci-dessous pour envoyer un e-mail