Détails
Surface habitable
±52.3
m2
Pièces
2.5
Pièces
Réf.:
67060
Nombre de chambres
1
chambres
Coût
CHF 690’000.-
Emplacement
Adresse:
Denges
Description
Bernard Nicod SA a le plaisir de vous présenter en exclusivité son projet « Les Résidences du Village » dans le charmant village de Denges. La haute qualité architecturale de ce projet qui a été réalisé par notre Entreprise Générale Bernard Nicod SA, fait partie du plan de quartier « Les Ochettes ».
Cette promotion est composée de 2 bâtiments totalisant 70 logements et 7 surfaces commerciales. Du studio au 4.5 pièces, avec des surfaces pondérées allant de 29m2 à 144m2, le bâtiment A offre de magnifiques attiques avec vue dégagée et des rooftop terrasses de plus de 86m2.
Le sous-sol abritera l’ensemble des locaux technique, les caves, buanderie et un parking intérieur pour 104 voitures.
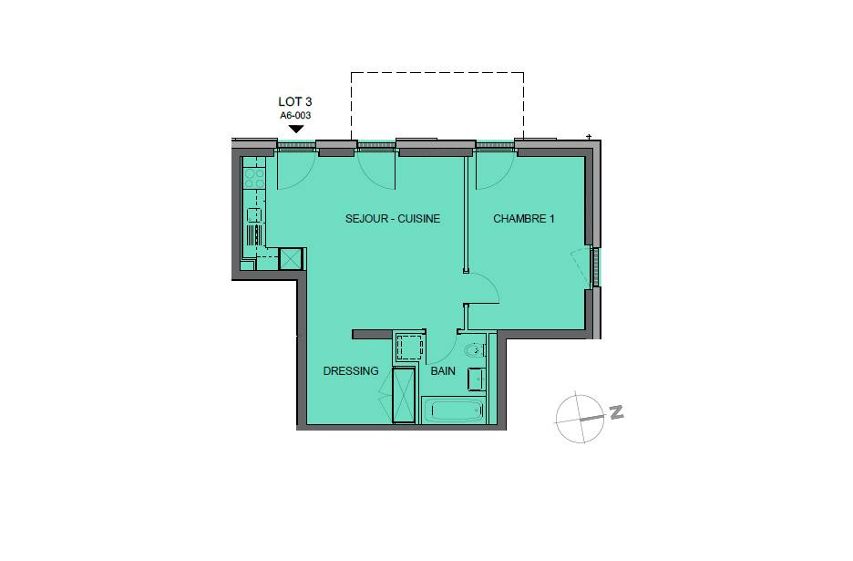
Cet appartement de 2.5 pièces se situe au rez-de-chaussée du bâtiment A avec entrée indépendante.
Il se compose d'une cuisine ouverte sur le lumineux séjour avec accès direct à une terrasse de 18.70 m2 et au jardin privatif. Une grande chambre à coucher, une salle de bains/WC avec possibilité d'installer une colonne de lavage et d'un dressing avec une armoire murale.
Une cave et une place de parc intérieure (CHF 35'000.- en sus) complètent ce bien.
Les appartements serons livrés 5 mois après la signature.
Les 2 immeubles étant déjà construit, il ne vous reste plus qu’à choisir votre cuisine et finir vos intérieurs selon vos goûts. Votre futur logement sera spacieux, confortable et adapté à votre mode de vie.
LES ATOUTS :
- Chauffage à distance aux pellets suisse
- Panneaux photovoltaïque pour une diminution des coûts de votre facture énergétique
- Ventilation simple flux- Fibre optique
- Thermostat d’ambiance dans toutes les pièces
- Cuisine de chez Veneta Cucine
- Finitions au choix de l’acheteur
- Construction par l’entreprise générale BERNARD NICOD
- Livraison rapide des appartements
- Un guide acquéreur complet avec le détail des matériaux à choix cuisine salle d’eau et sol.
Découvrez votre futur lieu de vie en prenant contact avec notre équipe pour une présentation complète de notre projet et profiter ainsi de conseils personnalisés par nos courtières ALEXANDRA JEREZ 079 945 43 90 et TANIA LEITE 076 577 34 32.
Cette promotion est composée de 2 bâtiments totalisant 70 logements et 7 surfaces commerciales. Du studio au 4.5 pièces, avec des surfaces pondérées allant de 29m2 à 144m2, le bâtiment A offre de magnifiques attiques avec vue dégagée et des rooftop terrasses de plus de 86m2.
Le sous-sol abritera l’ensemble des locaux technique, les caves, buanderie et un parking intérieur pour 104 voitures.
Cet appartement de 2.5 pièces se situe au rez-de-chaussée du bâtiment A avec entrée indépendante.
Il se compose d'une cuisine ouverte sur le lumineux séjour avec accès direct à une terrasse de 18.70 m2 et au jardin privatif. Une grande chambre à coucher, une salle de bains/WC avec possibilité d'installer une colonne de lavage et d'un dressing avec une armoire murale.
Une cave et une place de parc intérieure (CHF 35'000.- en sus) complètent ce bien.
Les appartements serons livrés 5 mois après la signature.
Les 2 immeubles étant déjà construit, il ne vous reste plus qu’à choisir votre cuisine et finir vos intérieurs selon vos goûts. Votre futur logement sera spacieux, confortable et adapté à votre mode de vie.
LES ATOUTS :
- Chauffage à distance aux pellets suisse
- Panneaux photovoltaïque pour une diminution des coûts de votre facture énergétique
- Ventilation simple flux- Fibre optique
- Thermostat d’ambiance dans toutes les pièces
- Cuisine de chez Veneta Cucine
- Finitions au choix de l’acheteur
- Construction par l’entreprise générale BERNARD NICOD
- Livraison rapide des appartements
- Un guide acquéreur complet avec le détail des matériaux à choix cuisine salle d’eau et sol.
Découvrez votre futur lieu de vie en prenant contact avec notre équipe pour une présentation complète de notre projet et profiter ainsi de conseils personnalisés par nos courtières ALEXANDRA JEREZ 079 945 43 90 et TANIA LEITE 076 577 34 32.
Contactez-nous
Remplissez le formulaire ci-dessous pour envoyer un e-mail