Nouvelle promotion - Le chantier a démarré : duplex traversant de 6.5 pièces avec deux balcons
Détails
Surface habitable
±178
m2
Pièces
6.5
Pièces
Réf.:
64377
Nombre de chambres
5
chambres
Statut
Réservé
Emplacement
Adresse:
Orges
Description
EN EXCLUSIVITE CHEZ BERNARD NICOD SA.
Découvrez la nouvelle promotion " Le domaine du Belvédère " qui offre une vue imprenable sur le lac de Neuchâtel et les Alpes.
Nichée dans le charmant village d'Orges, elle est orientée plein sud et offre un cadre de vie paisible et verdoyant à tous ses résidents.
Situé en bordure de zone agricole, ce projet comprend 8 appartements, une villa individuelle et un local commercial répartis dans 3 bâtiments distincts qui sauront garder le charme et l'authenticité de la ferme existante.
Aménagez vos pièces, choisissez la cuisine de vos rêves et finissez votre intérieur selon vos goûts. Votre futur logement sera spacieux, confortable et adapté à votre mode de vie.
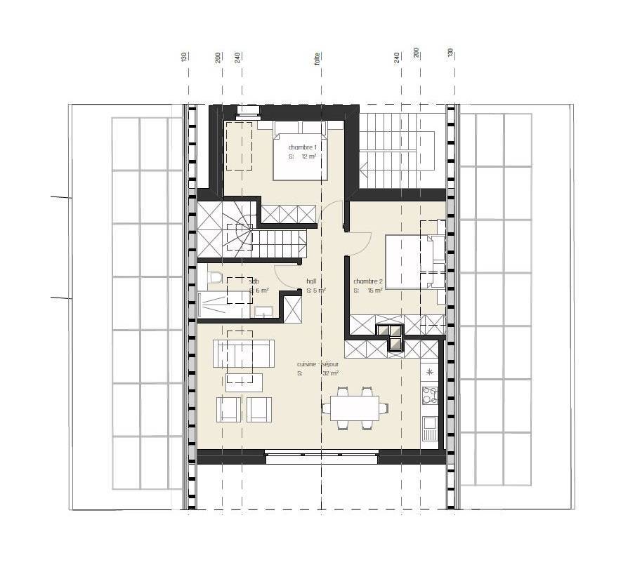
Cet appartement de 6.5 pièces en duplex se situe au 2ème étage et dans les combles, il se compose comme suit :
Au premier étage, une entrée avec armoire murale, un vaste séjour avec cuisine ouverte de 41 m2 donnant accès au balcon de 13 m2. Trois spacieuses chambres à coucher dont une de 18m2, une salle de douche, lavabo, WC qu'un WC visiteurs. A l'entrée, un réduit de 5 m2 offre un espace de rangement supplémentaire pratique avec emplacement pour la colonne de lavage. Au deuxième étage un second séjour avec cuisine ouverte donnant accès au deuxième balcon. Une chambre ainsi qu'une salle de bain, WC.
Une cave et trois places de parc extérieures (CHF 15'000.- l'unité) complètent ce bien. Il est possible de poser une borne de recharge électrique.
Des jardins suspendus seront réservés exclusivement aux copropriétaires ce qui est un atout unique et précieux.
L'immeuble offre à ses co-propriétaires un carnotzet convivial et chaleureux, idéal pour des moments de partage et de détente. Chaque résident dispose également d'un casier à vin privatif, parfait pour conserver et savourer leurs précieuses bouteilles dans des conditions optimales.
L'ensemble des finitions sont aux choix des futurs propriétaires qui profiteront d'agréables budgets mis à leur disposition.
Votre logement sera réalisé par des spécialistes aguerris qui seront là pour répondre à toutes vos questions et vous conseiller tout au long du processus de choix. Ils vous guideront et concrétiseront vos souhaits !
ATOUTS :
- Chaque appartement dispose d’un extérieur, balcon, terrasse ou jardin
- Panneaux photovoltaïques pour réduction de vos factures d’énergie- Finitions au choix de l’acheteur
- Pompe à chaleur avec sondes géothermiques
- Fenêtres triple vitrage- Finitions de qualité- Plein SUD
- En bordure de la zone village et longeant la zone agricole protégée
La construction est réalisée par des artisans régionaux et des matériaux écologiques. La qualité de l’isolation thermique de l’enveloppe correspond aux exigences de Minergie. La production photovoltaïque permet une très forte réduction des coûts de l’énergie consommée. L’eau de pluie sera récupérée et utilisée pour les robinets extérieurs, les WC et les machine à laver le linge.
Orges est un village d’environ 400 habitants situé entre le Jura et le Lac. A 5 minutes de l’entrée d’autoroute Yverdon-Ouest, vous rejoindrez Lausanne ou Neuchâtel en moins de 30 minutes.
Les enfants sont scolarisés dans l’établissement scolaire de Grandson. Pour les plus petits, La Fondation d'Accueil des Enfants de Grandson & Environs propose différentes structures de garde (garderie et parascolaire).
Vous appréciez la nature, le calme mais souhaitez également être proche des grandes villes ? Alors optez sans plus tarder pour cette nouvelle promotion.
Vente en quote-part terrain pour des frais d'achat réduits !
Demandez la brochure détaillée
LIVRAISON : juin 2026
Informations et visites ALEXANDRA JEREZ 079 945 43 90 et TANIA LEITE 076 577 34 32
Découvrez la nouvelle promotion " Le domaine du Belvédère " qui offre une vue imprenable sur le lac de Neuchâtel et les Alpes.
Nichée dans le charmant village d'Orges, elle est orientée plein sud et offre un cadre de vie paisible et verdoyant à tous ses résidents.
Situé en bordure de zone agricole, ce projet comprend 8 appartements, une villa individuelle et un local commercial répartis dans 3 bâtiments distincts qui sauront garder le charme et l'authenticité de la ferme existante.
Aménagez vos pièces, choisissez la cuisine de vos rêves et finissez votre intérieur selon vos goûts. Votre futur logement sera spacieux, confortable et adapté à votre mode de vie.
Cet appartement de 6.5 pièces en duplex se situe au 2ème étage et dans les combles, il se compose comme suit :
Au premier étage, une entrée avec armoire murale, un vaste séjour avec cuisine ouverte de 41 m2 donnant accès au balcon de 13 m2. Trois spacieuses chambres à coucher dont une de 18m2, une salle de douche, lavabo, WC qu'un WC visiteurs. A l'entrée, un réduit de 5 m2 offre un espace de rangement supplémentaire pratique avec emplacement pour la colonne de lavage. Au deuxième étage un second séjour avec cuisine ouverte donnant accès au deuxième balcon. Une chambre ainsi qu'une salle de bain, WC.
Une cave et trois places de parc extérieures (CHF 15'000.- l'unité) complètent ce bien. Il est possible de poser une borne de recharge électrique.
Des jardins suspendus seront réservés exclusivement aux copropriétaires ce qui est un atout unique et précieux.
L'immeuble offre à ses co-propriétaires un carnotzet convivial et chaleureux, idéal pour des moments de partage et de détente. Chaque résident dispose également d'un casier à vin privatif, parfait pour conserver et savourer leurs précieuses bouteilles dans des conditions optimales.
L'ensemble des finitions sont aux choix des futurs propriétaires qui profiteront d'agréables budgets mis à leur disposition.
Votre logement sera réalisé par des spécialistes aguerris qui seront là pour répondre à toutes vos questions et vous conseiller tout au long du processus de choix. Ils vous guideront et concrétiseront vos souhaits !
ATOUTS :
- Chaque appartement dispose d’un extérieur, balcon, terrasse ou jardin
- Panneaux photovoltaïques pour réduction de vos factures d’énergie- Finitions au choix de l’acheteur
- Pompe à chaleur avec sondes géothermiques
- Fenêtres triple vitrage- Finitions de qualité- Plein SUD
- En bordure de la zone village et longeant la zone agricole protégée
La construction est réalisée par des artisans régionaux et des matériaux écologiques. La qualité de l’isolation thermique de l’enveloppe correspond aux exigences de Minergie. La production photovoltaïque permet une très forte réduction des coûts de l’énergie consommée. L’eau de pluie sera récupérée et utilisée pour les robinets extérieurs, les WC et les machine à laver le linge.
Orges est un village d’environ 400 habitants situé entre le Jura et le Lac. A 5 minutes de l’entrée d’autoroute Yverdon-Ouest, vous rejoindrez Lausanne ou Neuchâtel en moins de 30 minutes.
Les enfants sont scolarisés dans l’établissement scolaire de Grandson. Pour les plus petits, La Fondation d'Accueil des Enfants de Grandson & Environs propose différentes structures de garde (garderie et parascolaire).
Vous appréciez la nature, le calme mais souhaitez également être proche des grandes villes ? Alors optez sans plus tarder pour cette nouvelle promotion.
Vente en quote-part terrain pour des frais d'achat réduits !
Demandez la brochure détaillée
LIVRAISON : juin 2026
Informations et visites ALEXANDRA JEREZ 079 945 43 90 et TANIA LEITE 076 577 34 32
Contactez-nous
Remplissez le formulaire ci-dessous pour envoyer un e-mail