2.5 pièces NEUF lumineux orienté sud-ouest avec balcon et dressing - Découvrez-le en immersion 3D !
Détails
Surface habitable
±88
m2
Pièces
2.5
Pièces
Réf.:
79708
Nombre de chambres
1
chambres
Coût
CHF 1’130’000.-
Emplacement
Adresse:
Lausanne, Chailly
Description
Prenez rendez-vous pour découvrir ce magnifique appartement en immersion 3D : visualisez les espaces, la terrasse et la vue sur le lac comme si vous y étiez ! https://qrco.de/bgJYUe
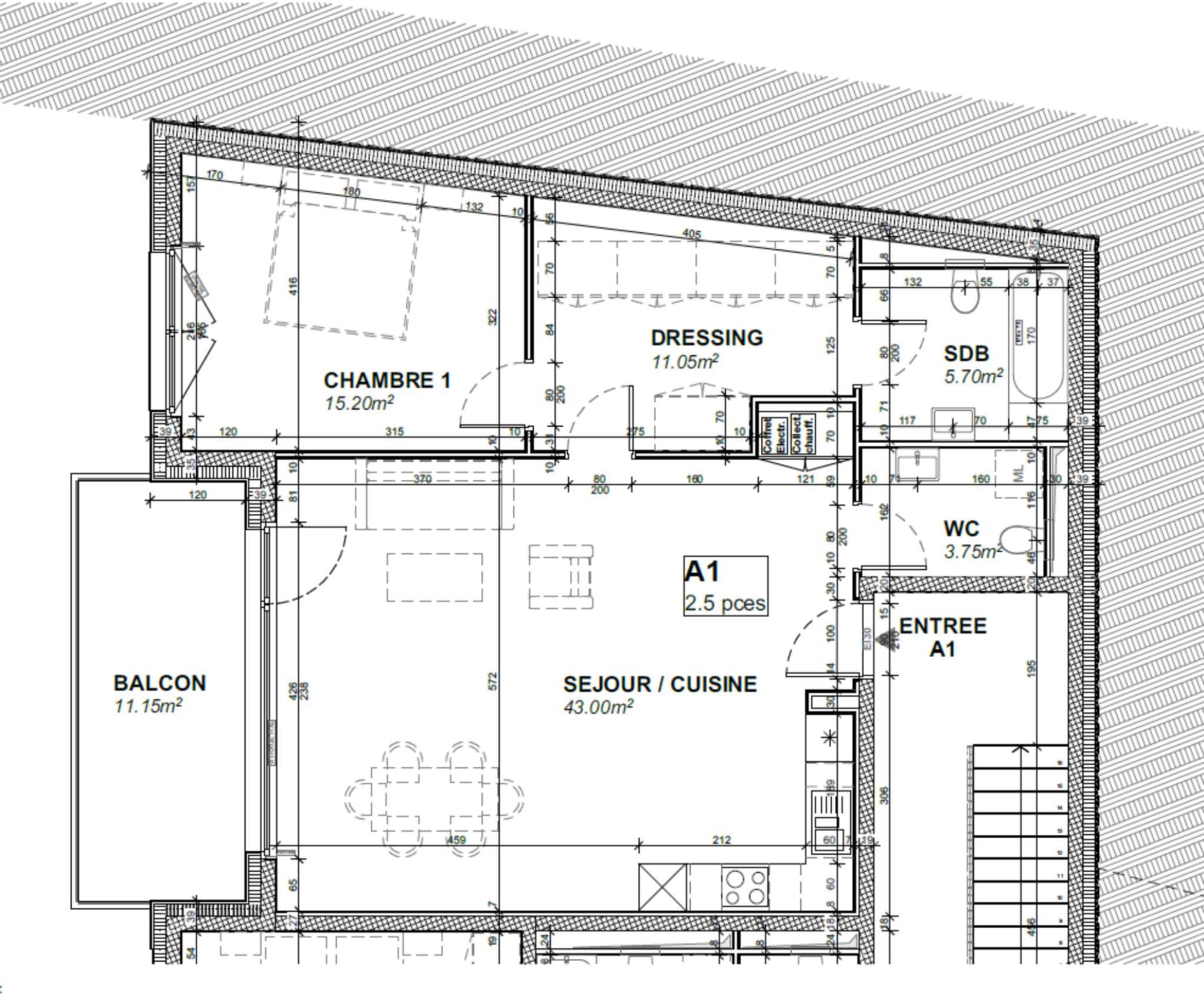
Situé au rez supérieur du bâtiment A, ce charmant 2.5 pièces de 81.80 m² bénéficie d’une orientation sud-ouest offrant une luminosité naturelle tout au long de la journée.
Sa belle pièce à vivre de 43 m² s’ouvre sur un balcon de 11.10 m², idéal pour profiter du calme et du cadre verdoyant qu’offre la résidence.
La chambre dispose d’un dressing attenant, et les finitions intérieures entièrement personnalisables permettent à chacun de concevoir un intérieur moderne, élégant et à son image.
Ce logement s’intègre au sein de la résidence La Plaisante, un nouveau projet Minergie composé de trois élégantes résidences regroupant 10 appartements et 3 surfaces d’activité.
Pensée pour offrir un cadre de vie privilégié, la résidence allie nature, lumière et confort, au cœur du quartier paisible et recherché de Chailly, à seulement quelques minutes du centre-ville de Lausanne.
Chaque appartement a été conçu dans un souci de bien-être et de performance énergétique, et bénéficie d’un système de chauffage par pompe à chaleur air-eau, complété par des panneaux solaires photovoltaïques.
Les espaces extérieurs privatifs, tels que balcons, terrasses ou patios selon les typologies, prolongent agréablement les pièces à vivre et invitent à profiter de la quiétude du cadre naturel.
Les matériaux de finition entièrement personnalisables, offrant à l’acquéreur un généreux budget pour concevoir un intérieur moderne, durable et harmonieux.
Les résidents bénéficieront également de places de parc extérieures, dont certaines au format compact, pour un usage optimisé.
Livraison prévue : 31 octobre 2027
Prix du lot A1 : CHF 1’130’000.-
Une adresse rare, pensée pour ceux qui recherchent la lumière, la sérénité, la qualité architecturale à Lausanne-Chailly.
Situé au rez supérieur du bâtiment A, ce charmant 2.5 pièces de 81.80 m² bénéficie d’une orientation sud-ouest offrant une luminosité naturelle tout au long de la journée.
Sa belle pièce à vivre de 43 m² s’ouvre sur un balcon de 11.10 m², idéal pour profiter du calme et du cadre verdoyant qu’offre la résidence.
La chambre dispose d’un dressing attenant, et les finitions intérieures entièrement personnalisables permettent à chacun de concevoir un intérieur moderne, élégant et à son image.
Ce logement s’intègre au sein de la résidence La Plaisante, un nouveau projet Minergie composé de trois élégantes résidences regroupant 10 appartements et 3 surfaces d’activité.
Pensée pour offrir un cadre de vie privilégié, la résidence allie nature, lumière et confort, au cœur du quartier paisible et recherché de Chailly, à seulement quelques minutes du centre-ville de Lausanne.
Chaque appartement a été conçu dans un souci de bien-être et de performance énergétique, et bénéficie d’un système de chauffage par pompe à chaleur air-eau, complété par des panneaux solaires photovoltaïques.
Les espaces extérieurs privatifs, tels que balcons, terrasses ou patios selon les typologies, prolongent agréablement les pièces à vivre et invitent à profiter de la quiétude du cadre naturel.
Les matériaux de finition entièrement personnalisables, offrant à l’acquéreur un généreux budget pour concevoir un intérieur moderne, durable et harmonieux.
Les résidents bénéficieront également de places de parc extérieures, dont certaines au format compact, pour un usage optimisé.
Livraison prévue : 31 octobre 2027
Prix du lot A1 : CHF 1’130’000.-
Une adresse rare, pensée pour ceux qui recherchent la lumière, la sérénité, la qualité architecturale à Lausanne-Chailly.
Contactez-nous
Remplissez le formulaire ci-dessous pour envoyer un e-mail