Nouvelle promotion : appartement de 4.5 pièces avec terrasses couvertes et jardins
Détails
Surface habitable
±109.3
m2
Pièces
4.5
Pièces
Réf.:
66646
Nombre de chambres
3
chambres
Statut
Vendu
Emplacement
Adresse:
Rolle
Description
Panorama de rêve ! Faites de l’exceptionnel votre lieu de résidence !
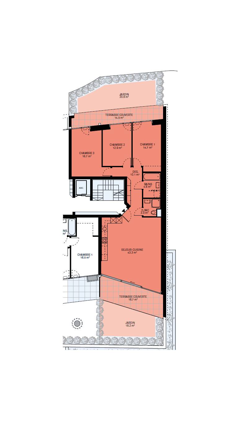
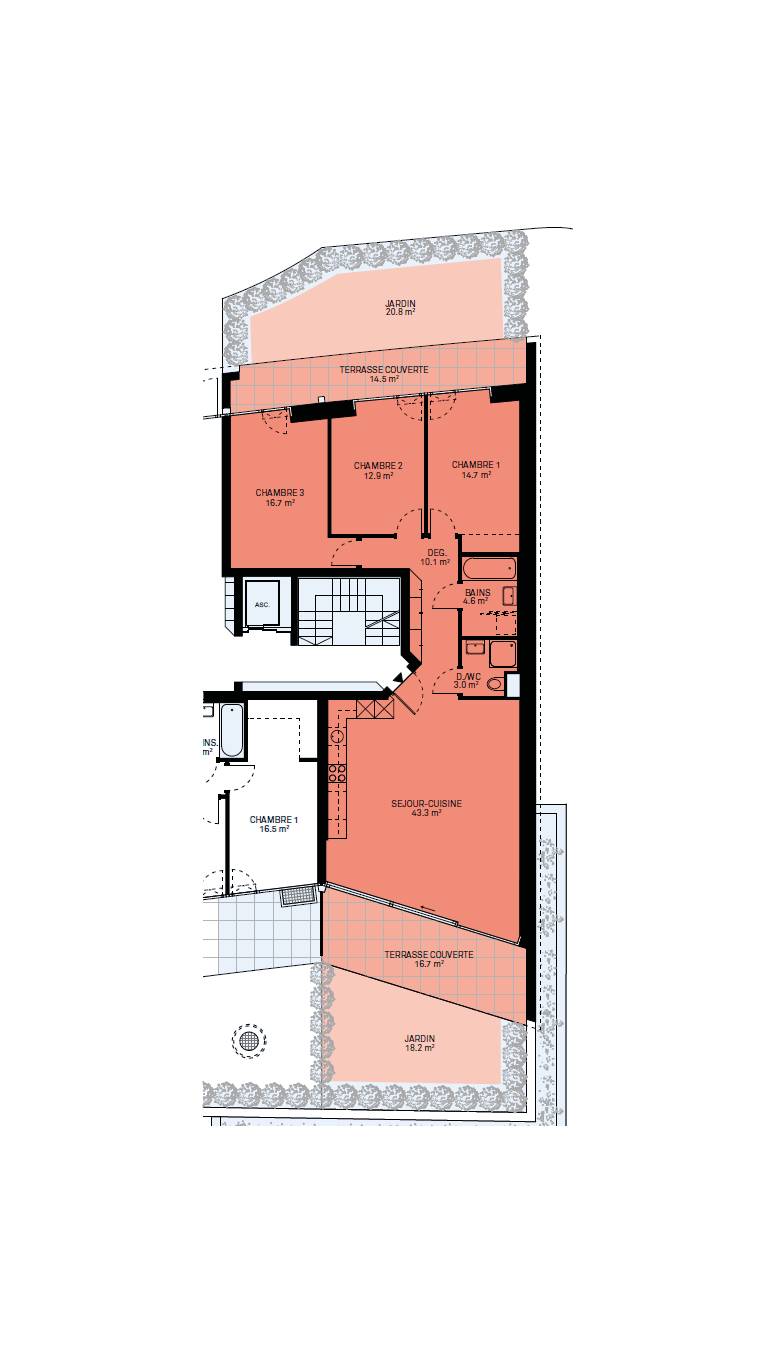
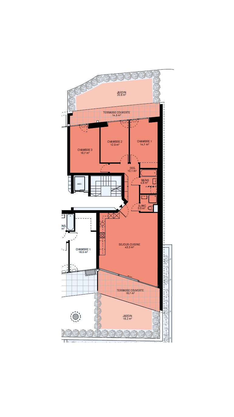
Cet appartement de 4.5 pièces se trouve au rez-de-chaussée du bâtiment D1.
Il se compose comme suit :
Un hall d'entrée avec armoires murales, un séjour / cuisine de plus de 43m2 avec accès à la première terrasse couverte avec jardin, une salle de douche, une salle de bain avec arrivées d'eau pour la colonne de lavage, trois chambres à coucher qui ont accès à la deuxième terrasse couverte avec jardin.
Deux places de parc intérieures (CHF 110'000.- en sus) complètent ce bien.
Les charges PPE sont estimées pour ce lot à CHF 616.-.
LES ATOUTS :
- Labélisé Minergie P Eco
- Pompe à chaleur à sondes géothermiques
- Panneaux photovoltaïque pour une diminution des coûts de votre facture énergétique
- Ventilation : système double flux
- Thermostat d’ambiance dans toutes les pièces
- Construction par l’Entreprise Générale BERNARD NICOD SA
LIVRAISON :
D1 – D2 – D3 = 31.03.2025
B2 = 31.05.2025
B1 Centre = 30.09.2025
B1 Ouest = 31.10.2025
Objets rares à découvrir ! Vue Lac et Mont-blanc à perte de vue.
Information et visites : Alexandra JEREZ 079 945 43 90 & Tania LEITE 076 577 34 32
Cet appartement de 4.5 pièces se trouve au rez-de-chaussée du bâtiment D1.
Il se compose comme suit :
Un hall d'entrée avec armoires murales, un séjour / cuisine de plus de 43m2 avec accès à la première terrasse couverte avec jardin, une salle de douche, une salle de bain avec arrivées d'eau pour la colonne de lavage, trois chambres à coucher qui ont accès à la deuxième terrasse couverte avec jardin.
Deux places de parc intérieures (CHF 110'000.- en sus) complètent ce bien.
Les charges PPE sont estimées pour ce lot à CHF 616.-.
LES ATOUTS :
- Labélisé Minergie P Eco
- Pompe à chaleur à sondes géothermiques
- Panneaux photovoltaïque pour une diminution des coûts de votre facture énergétique
- Ventilation : système double flux
- Thermostat d’ambiance dans toutes les pièces
- Construction par l’Entreprise Générale BERNARD NICOD SA
LIVRAISON :
D1 – D2 – D3 = 31.03.2025
B2 = 31.05.2025
B1 Centre = 30.09.2025
B1 Ouest = 31.10.2025
Objets rares à découvrir ! Vue Lac et Mont-blanc à perte de vue.
Information et visites : Alexandra JEREZ 079 945 43 90 & Tania LEITE 076 577 34 32
Contactez-nous
Remplissez le formulaire ci-dessous pour envoyer un e-mail