Détails
Surface habitable
±89.3
m2
Pièces
3.5
Pièces
Réf.:
62014
Nombre de chambres
2
chambres
Statut
Vendu
Emplacement
Adresse:
Rolle
Description
Panorama de rêve ! Faites de l’exceptionnel votre lieu de résidence !
Bernard Nicod SA a le plaisir de vous présenter sa nouvelle promotion « Baie d’Opale ». Celle-ci saura vous émerveiller avec ses immeubles de haut standing à l’architecture contemporaine et sa situation idyllique.
Située à 70m du lac Léman, longeant la plage de Rolle, ce projet est réalisé par notre Entreprise Générale Bernard Nicod SA et prévoit 6 immeubles PPE.
La « Baie d’Opale » comprend des logements de 1.5 pièces à 5.5 pièces de conception moderne et propose des espaces de vie généreux ainsi qu’une excellente luminosité. Des locaux commerciaux sont également disponibles à la vente.
Les appartements du rez-de-chaussée ont un jardin privatif et tous les logements bénéficient de terrasses ou balcons. 11 attiques avec vue panoramique et des rooftop terrasses offrent jusqu’à 249m2 de surface pondérée.
Un espace fitness sera mis à disposition des copropriétaires. Le sous-sol abritera l’ensemble des locaux technique, les caves, buanderies et un parking souterrain.
Les aménagements extérieurs de qualité et très soignés mettrons en valeur l’architecture contemporaine des immeubles qui seront à la hauteur des plus exigeants.
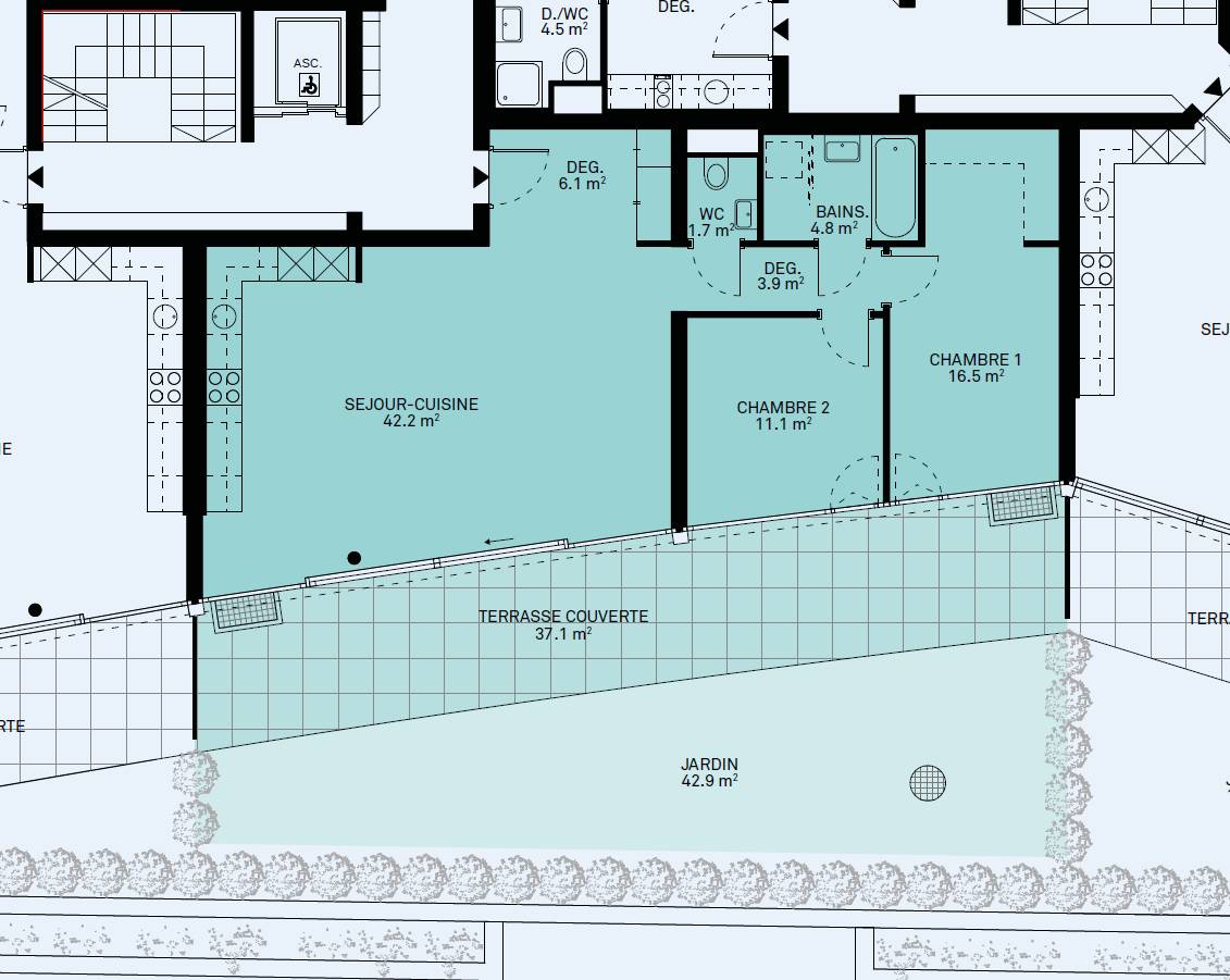
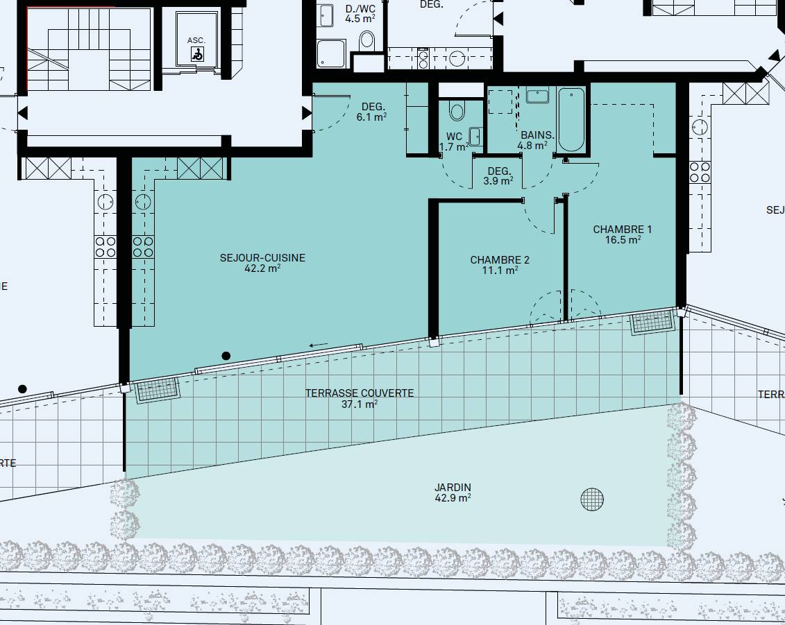
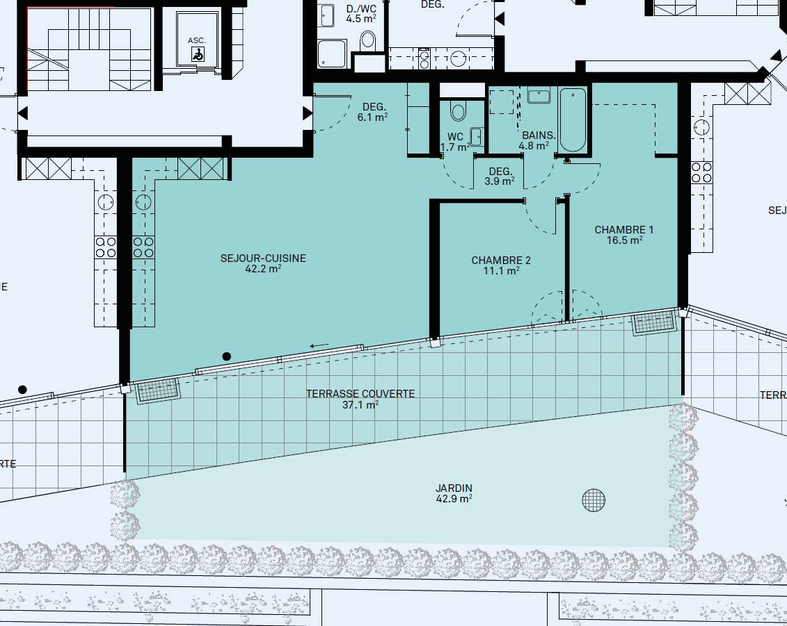
Cet appartement de 3.5 pièces se trouve au rez-de-chaussée du bâtiment D3.
Il se compose comme suit :Hall d'entrée avec armoires murales, cuisine ouverte sur le séjour avec accès à la terrasse de 37m2 et au jardin privatif de 42m2, un WC séparé, une salle de bains avec raccordement pour colonne de lavage ainsi que 2 chambres à coucher avec également un accès directe à la terrasse.
Une place de parc intérieure (CHF 60'000.- par unité en sus) complète ce bien. Une place de parc intérieure pour motocycle est disponible.
LES ATOUTS :
- Labélisé Minergie P Eco- Pompe à chaleur à sondes géothermiques
- Panneaux photovoltaïque pour une diminution des coûts de votre facture énergétique
- Ventilation : système double flux- Thermostat d’ambiance dans toutes les pièces
- Construction par l’Entreprise Générale BERNARD NICOD SA
LIVRAISON : 1er mai 2025
Information sur la promotion et autres lots disponibles: https://www.bernard-nicod.ch/promotions/vente/la-baie-d-opale-5409
Information et visites : Alexandra JEREZ 079 945 43 90 & Tania LEITE 076 577 34 32
Bernard Nicod SA a le plaisir de vous présenter sa nouvelle promotion « Baie d’Opale ». Celle-ci saura vous émerveiller avec ses immeubles de haut standing à l’architecture contemporaine et sa situation idyllique.
Située à 70m du lac Léman, longeant la plage de Rolle, ce projet est réalisé par notre Entreprise Générale Bernard Nicod SA et prévoit 6 immeubles PPE.
La « Baie d’Opale » comprend des logements de 1.5 pièces à 5.5 pièces de conception moderne et propose des espaces de vie généreux ainsi qu’une excellente luminosité. Des locaux commerciaux sont également disponibles à la vente.
Les appartements du rez-de-chaussée ont un jardin privatif et tous les logements bénéficient de terrasses ou balcons. 11 attiques avec vue panoramique et des rooftop terrasses offrent jusqu’à 249m2 de surface pondérée.
Un espace fitness sera mis à disposition des copropriétaires. Le sous-sol abritera l’ensemble des locaux technique, les caves, buanderies et un parking souterrain.
Les aménagements extérieurs de qualité et très soignés mettrons en valeur l’architecture contemporaine des immeubles qui seront à la hauteur des plus exigeants.
Cet appartement de 3.5 pièces se trouve au rez-de-chaussée du bâtiment D3.
Il se compose comme suit :Hall d'entrée avec armoires murales, cuisine ouverte sur le séjour avec accès à la terrasse de 37m2 et au jardin privatif de 42m2, un WC séparé, une salle de bains avec raccordement pour colonne de lavage ainsi que 2 chambres à coucher avec également un accès directe à la terrasse.
Une place de parc intérieure (CHF 60'000.- par unité en sus) complète ce bien. Une place de parc intérieure pour motocycle est disponible.
LES ATOUTS :
- Labélisé Minergie P Eco- Pompe à chaleur à sondes géothermiques
- Panneaux photovoltaïque pour une diminution des coûts de votre facture énergétique
- Ventilation : système double flux- Thermostat d’ambiance dans toutes les pièces
- Construction par l’Entreprise Générale BERNARD NICOD SA
LIVRAISON : 1er mai 2025
Information sur la promotion et autres lots disponibles: https://www.bernard-nicod.ch/promotions/vente/la-baie-d-opale-5409
Information et visites : Alexandra JEREZ 079 945 43 90 & Tania LEITE 076 577 34 32
Contactez-nous
Remplissez le formulaire ci-dessous pour envoyer un e-mail