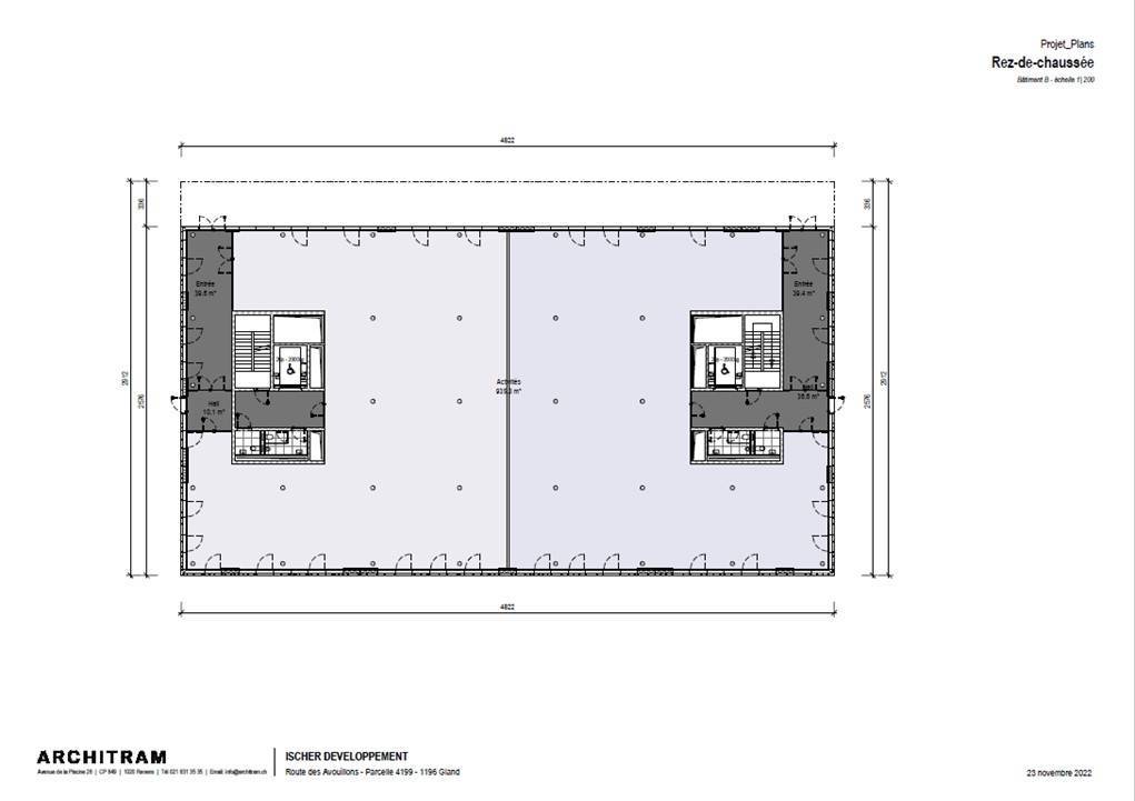
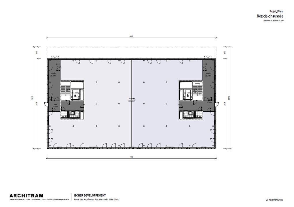
Une perle rare : une surface de 1'000 m2 offrant tous les services pour du laboratoire

Détails

Nature de l'offre
Location
Surface habitable
±1000 m2
Réf.:
53869

Coût

Loyer sur demande

Emplacement

Adresse:

Vaud, GLAND

Description

Ces surfaces en cours de construction seront livrées à la fin du premier trimestre 2026 et ont été conçues pour s'adapter à votre besoin que ce soit en terme d'accessibilité ou de flux avec de nombreuses places de parc.

En louant sur plan le futur utilisateur pourra adapter son espace sur mesure.

Le dernier étage avec sa terrasse et une vue sur la campagne et les montagnes offre un cadre de travail unique.

Afin de demeurer proche de ses locataires, le propriétaire propose un loyer dès Fr. 250.--/m2/an qui permet la prise en charge des travaux d'aménagement par le locataire tout en conservant des coûts raisonnables.

Il est également possible de négocier la prise en charge des travaux d'aménagement pour un prix à convenir.

Contactez-nous

Remplissez le formulaire ci-dessous pour envoyer un e-mail
Error sending form. Please try again later

Merci ! Le formulaire a été envoyé avec succès

Votre demande

Ce site est protégé par reCAPTCHA et la politique de confidentialité et les Conditions d'utilisation de Google.

Découvrez nos biens neufs à vendre.

MONTREUX
Dès 1’280’000.-

ATRIUM - Montreux

Échandens
Dès 1’290’000.-

Le Grand Pré - ECHANDENS

Denges
Dès 650’000.-

Résidence du Village

Oron-la-Ville
Dès 830’000.-

Résidence Venezia

Nipy 2
66837
Nipy 2
Eysins
Dès 1’390’000.-

Nipy 2

ROLLE
Dès 1’550’000.-

Baie d'Opale - 7696

Denges
Dès 720’000.-

Résidences du Village

Le Groupe Bernard Nicod