Une opportunité sur larc lémanique idéalement situé entre Lausanne et Genève

Détails

Nature de l'offre
Location
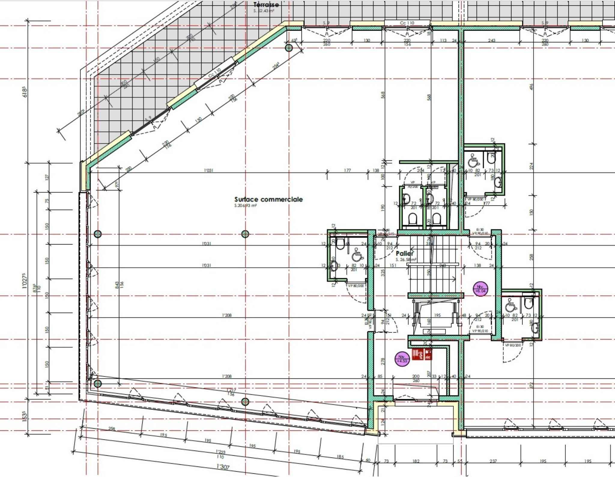
Surface habitable
±375 m2
Réf.:
66562

Coût

Loyer:
CHF 9’065.- / mois
Prix:
CHF 290.- / par m² /an

Emplacement

Adresse:

Vaud, AUBONNE,

Description

Le Business Park se trouve à 4 min en voiture de la sortie d'autoroute A1, dans la zone industrielle avant la ville d'Aubonne.

La surface jouit d'une terrasse orientée au sud qui vous offre une vue imprenable sur le lac et les vignobles

Aujourd'hui proposé semi-brut, l'espace fera l'objet d'une participation du bailleur aux travaux d'aménagement du futur exploitant

Vos avantages:

- Places de parcs extérieures et intérieures
- Bus à 10 mètres (passage toutes les 30 minutes)
- Zone industrielle développée

Loyer dès CHF 290.-/m2/an HC

- Places de parc intérieures : CHF 180.- / mois
- Places de parc extérieures : CHF 130.-/ mois

Contactez-nous

Remplissez le formulaire ci-dessous pour envoyer un e-mail
Error sending form. Please try again later

Merci ! Le formulaire a été envoyé avec succès

Votre demande

Ce site est protégé par reCAPTCHA et la politique de confidentialité et les Conditions d'utilisation de Google.

Découvrez nos biens neufs à vendre.

MONTREUX
Dès 1’280’000.-

ATRIUM - Montreux

Échandens
Dès 1’290’000.-

Le Grand Pré - ECHANDENS

Denges
Dès 650’000.-

Résidence du Village

Oron-la-Ville
Dès 830’000.-

Résidence Venezia

Nipy 2
66837
Nipy 2
Eysins
Dès 1’390’000.-

Nipy 2

ROLLE
Dès 1’550’000.-

Baie d'Opale - 7696

Denges
Dès 720’000.-

Résidences du Village

Le Groupe Bernard Nicod