Détails
Nature de l'offre
Vente
Surface habitable
±180
m2
Pièces
6.5
Pièces
Réf.:
79795
Nombre de chambres
5
chambres
Coût
CHF 1’750’000.-
Emplacement
Adresse:
Vaud, Morges
Description
Située au cœur du charmant village d’Aclens, à proximité immédiate de Morges, cette magnifique villa mitoyenne d'environs 180m² est répartie sur 2 niveaux habitables et un sous-sol.
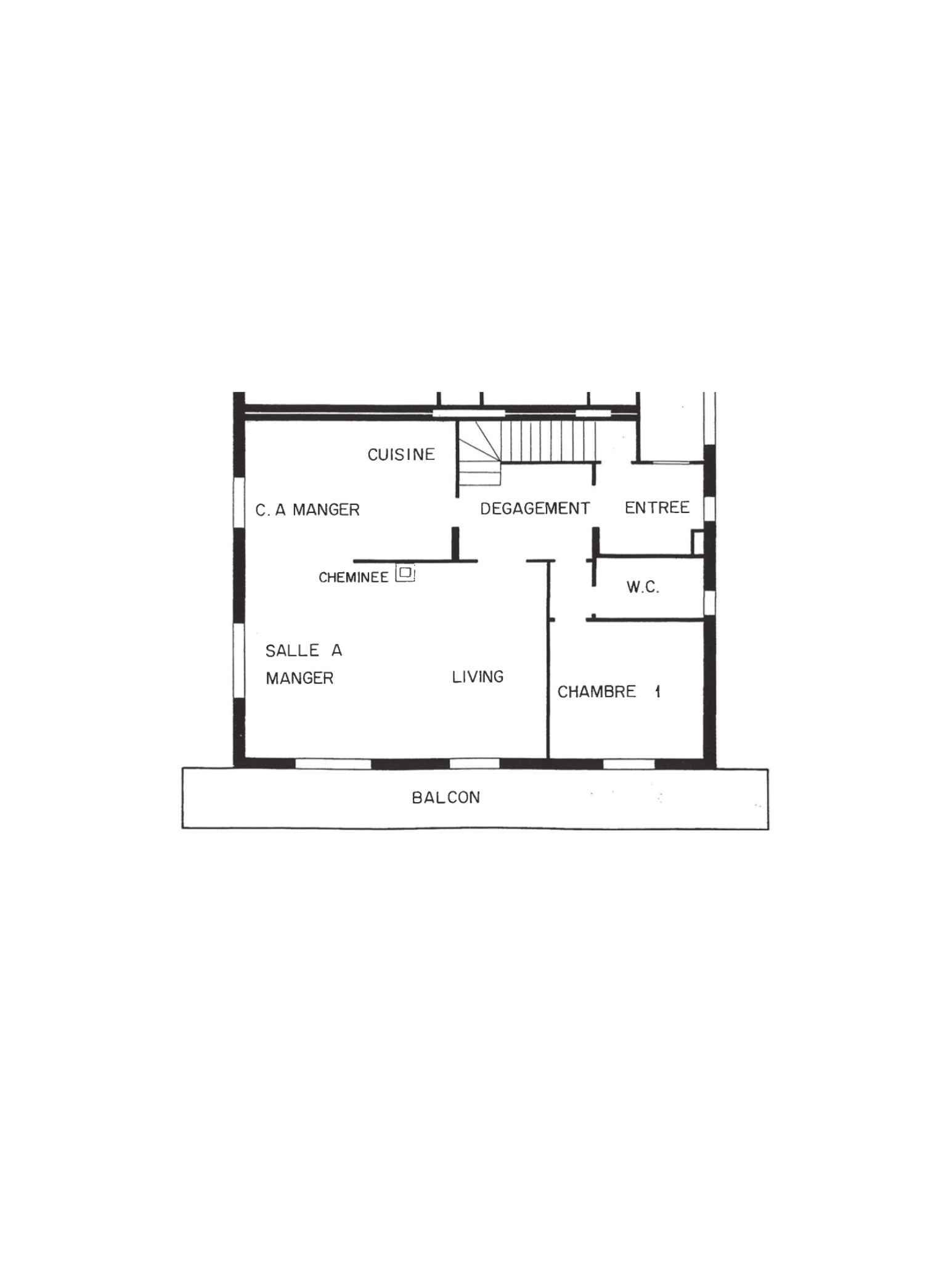
Rez-de-chaussée supérieur :
Une belle entrée mène vers les élégantes pièces de vie composées d’une cuisine semi ouverte avec accès à l'extérieur, d’un espace salle à manger et d’un vaste séjour baigné de lumière. Un balcon et une grande terrasse avec accès au grand jardin vous permettront de profiter des journées et soirées ensoleillées. Une salle de douches/WC et une chambre à coucher complètent ce niveau.
Premier étage :
A l’étage, la partie nuit offre quatre confortables chambres à coucher dont une chambre parentale avec salle de douches/WC privative. Une grande salle d’eau équipée d’une baignoire, de deux lavabos, d’un WC complète cet étage.
Rez inférieur :
Il se compose d'une buanderie, une cave, une grande pièce aménageable ainsi qu'un WC séparé.
Les copropriétaires se partagent l’abris PC.
Le garage double offre un accès direct à l’intérieur de la villa. Deux places de parc extérieures complètent ce bien.
Extérieurs : Un balcon, une terrasse et un grand jardin pouvant être clôturé.
Atouts complémentaires :
- Des pièces de vie et de nuit très spacieuses,
- Une ambiance paisible,
- De belles hauteurs sous plafond,
- Très bien entretenue,
- Le sous-sol,
- 5 grandes chambres à coucher.
Point fort :
- Ensoleillement,
- Le mode de chauffage va être changé et une pompe à chaleur va être installée.
Ce bien rare à la vente allie espace, confort et tranquillité, à seulement quelques minutes du centre de Morges et de toutes ses commodités.
INFORMATIONS ET VISITES : Alexandra jerez et Tania Leite au 024 424 24 26.
Rez-de-chaussée supérieur :
Une belle entrée mène vers les élégantes pièces de vie composées d’une cuisine semi ouverte avec accès à l'extérieur, d’un espace salle à manger et d’un vaste séjour baigné de lumière. Un balcon et une grande terrasse avec accès au grand jardin vous permettront de profiter des journées et soirées ensoleillées. Une salle de douches/WC et une chambre à coucher complètent ce niveau.
Premier étage :
A l’étage, la partie nuit offre quatre confortables chambres à coucher dont une chambre parentale avec salle de douches/WC privative. Une grande salle d’eau équipée d’une baignoire, de deux lavabos, d’un WC complète cet étage.
Rez inférieur :
Il se compose d'une buanderie, une cave, une grande pièce aménageable ainsi qu'un WC séparé.
Les copropriétaires se partagent l’abris PC.
Le garage double offre un accès direct à l’intérieur de la villa. Deux places de parc extérieures complètent ce bien.
Extérieurs : Un balcon, une terrasse et un grand jardin pouvant être clôturé.
Atouts complémentaires :
- Des pièces de vie et de nuit très spacieuses,
- Une ambiance paisible,
- De belles hauteurs sous plafond,
- Très bien entretenue,
- Le sous-sol,
- 5 grandes chambres à coucher.
Point fort :
- Ensoleillement,
- Le mode de chauffage va être changé et une pompe à chaleur va être installée.
Ce bien rare à la vente allie espace, confort et tranquillité, à seulement quelques minutes du centre de Morges et de toutes ses commodités.
INFORMATIONS ET VISITES : Alexandra jerez et Tania Leite au 024 424 24 26.
Contactez-nous
Remplissez le formulaire ci-dessous pour envoyer un e-mail