Détails
Nature de l'offre
Vente
Surface habitable
±99
m2
Pièces
4.5
Pièces
Réf.:
66115
Nombre de chambres
3
chambres
Coût
CHF 1’280’000.-
Emplacement
Adresse:
Vaud, MONTREUX
Description
Dernier Lot !
"Atrium" Montreux est un projet de 44 appartements en vente au cœur du quartier Belle Époque, à la Rue de l'Eglise-Catholique. La livraison des appartements est prévue pour fin 2026 (au plus tard pour fin février 2027).
Le projet composé de 4 bâtiments à taille humaine s’intègre parfaitement au centre historique, joyau d’élégance et d’histoire à l’architecture Belle Époque. En son centre se trouve un espace de détente verdoyant avec place de jeu. Un grand parking permettra à chaque appartement de bénéficier de places de parc intérieures directement accessibles par ascenseur. Labellisés Minerge P, les bâtiments répondront aux normes énergétiques d'aujourd'hui et de demain. Les finitions intérieures sont à choix selon descriptif du promoteur.
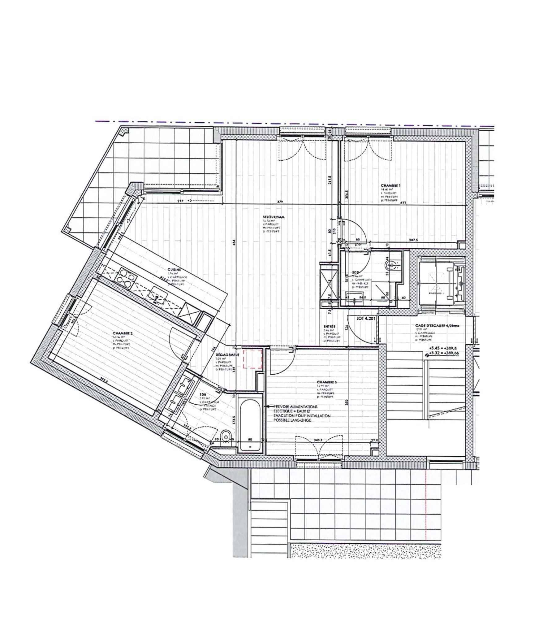
Le lot No 43 ici proposé est un magnifique et spacieux appartement de 4.5 Pièces avec grand balcon et terrasse ouverte sur l'Atrium pour une chambre à coucher, au 2ème étage du bâtiment 4 (rez supérieur côté Atrium façade Sud). Il propose une surface habitable de 99 m2 hab. ainsi qu'un balcon de 10.4 m2 et une grande terrasse de 16 m2 orientée Sud.
Sa distribution intérieure est la suivante :
- Hall d'entrée avec armoire penderie
- 1 grand séjour / salle à manger de 33 m2 avec accès au balcon
- 1 cuisine ouverte totalement agencée
- 1 chambre à coucher de 14.6 m2 avec salle de douche/wc attenante
- 1 chambre à coucher de 13.3 m2 avec accès à la terrasse sur l'Atrium
- 1 chambre à coucher de 12.2 m2
- 1 salle de bain / wc
L'appartement bénéficie d'une cave ainsi que de 2 places de parc intérieures, ces dernières étant vendues en sus.
Que vous soyez à la recherche d’un espace confortable pour vivre seul, d’un logement chaleureux à partager ou d’un cocon familial spacieux, Atrium Montreux offre une large variété d’appartements pour répondre à vos besoins. Tous bénéficient d’un grand balcon ou d’une loggia. Une brochure détaillée est à disposition.
Pour renseignements ou visite : Madame Lucrèce CONSTANTIN +41 79 799 58 90
"Atrium" Montreux est un projet de 44 appartements en vente au cœur du quartier Belle Époque, à la Rue de l'Eglise-Catholique. La livraison des appartements est prévue pour fin 2026 (au plus tard pour fin février 2027).
Le projet composé de 4 bâtiments à taille humaine s’intègre parfaitement au centre historique, joyau d’élégance et d’histoire à l’architecture Belle Époque. En son centre se trouve un espace de détente verdoyant avec place de jeu. Un grand parking permettra à chaque appartement de bénéficier de places de parc intérieures directement accessibles par ascenseur. Labellisés Minerge P, les bâtiments répondront aux normes énergétiques d'aujourd'hui et de demain. Les finitions intérieures sont à choix selon descriptif du promoteur.
Le lot No 43 ici proposé est un magnifique et spacieux appartement de 4.5 Pièces avec grand balcon et terrasse ouverte sur l'Atrium pour une chambre à coucher, au 2ème étage du bâtiment 4 (rez supérieur côté Atrium façade Sud). Il propose une surface habitable de 99 m2 hab. ainsi qu'un balcon de 10.4 m2 et une grande terrasse de 16 m2 orientée Sud.
Sa distribution intérieure est la suivante :
- Hall d'entrée avec armoire penderie
- 1 grand séjour / salle à manger de 33 m2 avec accès au balcon
- 1 cuisine ouverte totalement agencée
- 1 chambre à coucher de 14.6 m2 avec salle de douche/wc attenante
- 1 chambre à coucher de 13.3 m2 avec accès à la terrasse sur l'Atrium
- 1 chambre à coucher de 12.2 m2
- 1 salle de bain / wc
L'appartement bénéficie d'une cave ainsi que de 2 places de parc intérieures, ces dernières étant vendues en sus.
Que vous soyez à la recherche d’un espace confortable pour vivre seul, d’un logement chaleureux à partager ou d’un cocon familial spacieux, Atrium Montreux offre une large variété d’appartements pour répondre à vos besoins. Tous bénéficient d’un grand balcon ou d’une loggia. Une brochure détaillée est à disposition.
Pour renseignements ou visite : Madame Lucrèce CONSTANTIN +41 79 799 58 90
Contactez-nous
Remplissez le formulaire ci-dessous pour envoyer un e-mail