Détails
Nature de l'offre
Vente
Surface habitable
±39.5
m2
Pièces
1.5
Pièces
Réf.:
67192
Statut
Vendu
Emplacement
Adresse:
Vaud, DENGES
Description
Bernard Nicod SA a le plaisir de vous présenter en exclusivité son projet « Les Résidences du Village » dans le charmant village de Denges.
La haute qualité architecturale de ce projet qui a été réalisé par notre Entreprise Générale Bernard Nicod SA, fait partie du plan de quartier « Les Ochettes ».
Cette promotion est composée de 2 bâtiments totalisant 70 logements et 7 surfaces commerciales. Du studio au 4.5 pièces, avec des surfaces pondérées allant de 29m2 à 144m2, le bâtiment A offre de magnifiques attiques avec vue dégagée et des rooftop terrasses de plus de 86m2.
Le sous-sol abritera l’ensemble des locaux technique, les caves, buanderie et un parking intérieur pour 104 voitures.
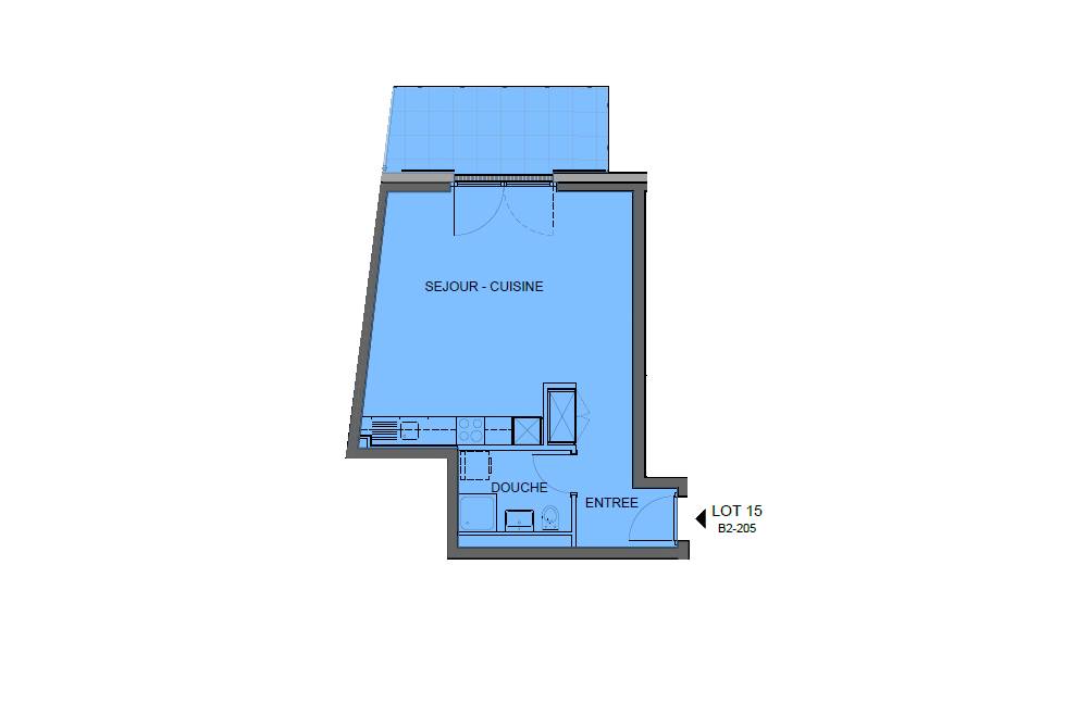
Ce studio situé au deuxième étage du bâtiment B se compose d'un hall d'entrée muni d'armoires murales, d'une cuisine ouverte sur le lumineux séjour avec accès direct à un balcon de 8.8 m2 et d'une salle de douches/WC avec possibilité d'installer une colonne de lavage.
Une cave et une place de parc intérieure (CHF 35'000.- en sus) complètent ce bien.
Les appartements seront livrés 5 mois après la signature.
Les 2 immeubles étant déjà construit, il ne vous reste plus qu’à choisir votre cuisine et finir vos intérieurs selon vos goûts. Votre futur logement sera spacieux, confortable et adapté à votre mode de vie.
LES ATOUTS :- Chauffage à distance aux pellets suisse- Panneaux photovoltaïque pour une diminution des coûts de votre facture énergétique- Ventilation simple flux- Fibre optique- Thermostat d’ambiance dans toutes les pièces- Cuisine de chez Veneta Cucine- Finitions au choix de l’acheteur- Construction par l’entreprise générale BERNARD NICOD- Livraison rapide des appartements- Un guide acquéreur complet avec le détail des matériaux à choix cuisine salle d’eau et sol.
Le village de Denges est idéalement situé dans le district de Morges entre les villes de Lausanne et de Morges, qui sont facilement accessibles en transports publics via le CFF express régional vaudois (toutes les heures) ou le réseau des bus de la région morgienne.
Le collège de la Crosette à Denges acceuille les écoliers de 1er Cycle: 1-3P / 2e Cycle: 5-6P. L’école est rattachée à l’Etablissement Primaire et Secondaire de Préverenges avec les communes de Lonay, Echandens et Préverenges.La nursery, garderie « Les Petites Couleurs » est seulement à quelques minutes à pied. Il en va de même pour l’UAPE « Les Pirates ».
La place de jeux communale et le centre de tri se situent à une minute à pied.
Découvrez votre futur lieu de vie en prenant contact avec notre équipe pour une présentation complète de notre projet et profiter ainsi de conseils personnalisés par nos courtières ALEXANDRA JEREZ 079 945 43 90 et TANIA LEITE 076 577 34 32.
La haute qualité architecturale de ce projet qui a été réalisé par notre Entreprise Générale Bernard Nicod SA, fait partie du plan de quartier « Les Ochettes ».
Cette promotion est composée de 2 bâtiments totalisant 70 logements et 7 surfaces commerciales. Du studio au 4.5 pièces, avec des surfaces pondérées allant de 29m2 à 144m2, le bâtiment A offre de magnifiques attiques avec vue dégagée et des rooftop terrasses de plus de 86m2.
Le sous-sol abritera l’ensemble des locaux technique, les caves, buanderie et un parking intérieur pour 104 voitures.
Ce studio situé au deuxième étage du bâtiment B se compose d'un hall d'entrée muni d'armoires murales, d'une cuisine ouverte sur le lumineux séjour avec accès direct à un balcon de 8.8 m2 et d'une salle de douches/WC avec possibilité d'installer une colonne de lavage.
Une cave et une place de parc intérieure (CHF 35'000.- en sus) complètent ce bien.
Les appartements seront livrés 5 mois après la signature.
Les 2 immeubles étant déjà construit, il ne vous reste plus qu’à choisir votre cuisine et finir vos intérieurs selon vos goûts. Votre futur logement sera spacieux, confortable et adapté à votre mode de vie.
LES ATOUTS :- Chauffage à distance aux pellets suisse- Panneaux photovoltaïque pour une diminution des coûts de votre facture énergétique- Ventilation simple flux- Fibre optique- Thermostat d’ambiance dans toutes les pièces- Cuisine de chez Veneta Cucine- Finitions au choix de l’acheteur- Construction par l’entreprise générale BERNARD NICOD- Livraison rapide des appartements- Un guide acquéreur complet avec le détail des matériaux à choix cuisine salle d’eau et sol.
Le village de Denges est idéalement situé dans le district de Morges entre les villes de Lausanne et de Morges, qui sont facilement accessibles en transports publics via le CFF express régional vaudois (toutes les heures) ou le réseau des bus de la région morgienne.
Le collège de la Crosette à Denges acceuille les écoliers de 1er Cycle: 1-3P / 2e Cycle: 5-6P. L’école est rattachée à l’Etablissement Primaire et Secondaire de Préverenges avec les communes de Lonay, Echandens et Préverenges.La nursery, garderie « Les Petites Couleurs » est seulement à quelques minutes à pied. Il en va de même pour l’UAPE « Les Pirates ».
La place de jeux communale et le centre de tri se situent à une minute à pied.
Découvrez votre futur lieu de vie en prenant contact avec notre équipe pour une présentation complète de notre projet et profiter ainsi de conseils personnalisés par nos courtières ALEXANDRA JEREZ 079 945 43 90 et TANIA LEITE 076 577 34 32.
Contactez-nous
Remplissez le formulaire ci-dessous pour envoyer un e-mail