Spacieux 3.5 pièces NEUF orienté sud avec terrasse - Découvrez-le en immersion 3D !
Détails
Nature de l'offre
Vente
Surface habitable
±109
m2
Pièces
3.5
Pièces
Réf.:
79709
Nombre de chambres
2
chambres
Coût
CHF 1’370’000.-
Emplacement
Adresse:
Vaud, LAUSANNE
Description
Prenez rendez-vous pour découvrir ce magnifique appartement en immersion 3D : visualisez les espaces, la terrasse et la vue sur le lac comme si vous y étiez ! https://qrco.de/bgJYUe
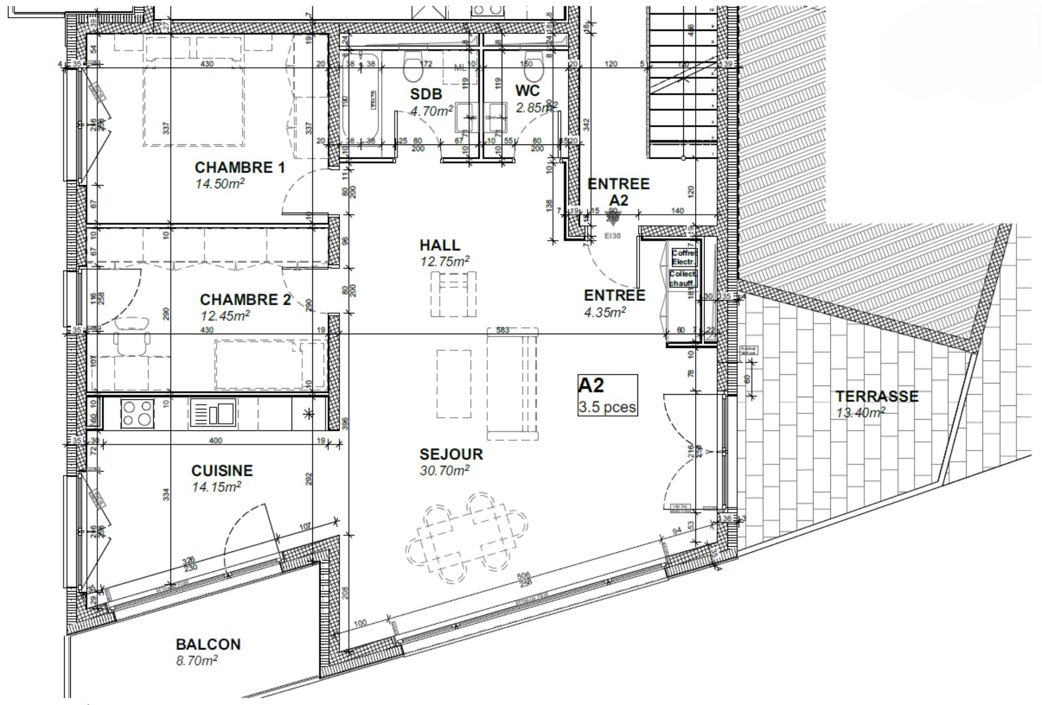
Situé au rez supérieur du bâtiment A, ce superbe 3.5 pièces de 99.50 m² séduit par son espace de vie lumineux et son agencement fonctionnel. La pièce à vivre de 30 m² s’ouvre sur une terrasse de 13 m², orientée plein sud, offrant un bel espace extérieur pour profiter du calme et de la nature environnante.
La cuisine semi-ouverte de 14 m² crée une atmosphère conviviale tout en préservant la fluidité de l’espace, tandis que les finitions personnalisables permettent de concevoir un intérieur moderne et élégant.
Ce logement s’intègre au sein de la résidence La Plaisante, un nouveau projet Minergie composé de trois élégantes résidences regroupant 10 appartements et 3 surfaces d’activité.
Pensée pour offrir un cadre de vie privilégié, la résidence allie nature, lumière et confort, au cœur du quartier paisible et recherché de Chailly, à seulement quelques minutes du centre-ville de Lausanne.
Chaque appartement a été conçu dans un souci de bien-être et de performance énergétique, et bénéficie d’un système de chauffage par pompe à chaleur air-eau, complété par des panneaux solaires photovoltaïques.
Les espaces extérieurs privatifs, tels que balcons, terrasses ou patios selon les typologies, prolongent agréablement les pièces à vivre et invitent à profiter de la quiétude du cadre naturel.
Les matériaux de finition entièrement personnalisables, offrant à l’acquéreur un généreux budget pour concevoir un intérieur moderne, durable et harmonieux.
Les résidents bénéficieront également de places de parc extérieures, dont certaines au format compact, pour un usage optimisé.
Livraison prévue : 31 octobre 2027
Prix du lot A2 : CHF 1’370’000.-
Une adresse rare, pensée pour ceux qui recherchent la lumière, la sérénité, la qualité architecturale à Lausanne-Chailly.
Situé au rez supérieur du bâtiment A, ce superbe 3.5 pièces de 99.50 m² séduit par son espace de vie lumineux et son agencement fonctionnel. La pièce à vivre de 30 m² s’ouvre sur une terrasse de 13 m², orientée plein sud, offrant un bel espace extérieur pour profiter du calme et de la nature environnante.
La cuisine semi-ouverte de 14 m² crée une atmosphère conviviale tout en préservant la fluidité de l’espace, tandis que les finitions personnalisables permettent de concevoir un intérieur moderne et élégant.
Ce logement s’intègre au sein de la résidence La Plaisante, un nouveau projet Minergie composé de trois élégantes résidences regroupant 10 appartements et 3 surfaces d’activité.
Pensée pour offrir un cadre de vie privilégié, la résidence allie nature, lumière et confort, au cœur du quartier paisible et recherché de Chailly, à seulement quelques minutes du centre-ville de Lausanne.
Chaque appartement a été conçu dans un souci de bien-être et de performance énergétique, et bénéficie d’un système de chauffage par pompe à chaleur air-eau, complété par des panneaux solaires photovoltaïques.
Les espaces extérieurs privatifs, tels que balcons, terrasses ou patios selon les typologies, prolongent agréablement les pièces à vivre et invitent à profiter de la quiétude du cadre naturel.
Les matériaux de finition entièrement personnalisables, offrant à l’acquéreur un généreux budget pour concevoir un intérieur moderne, durable et harmonieux.
Les résidents bénéficieront également de places de parc extérieures, dont certaines au format compact, pour un usage optimisé.
Livraison prévue : 31 octobre 2027
Prix du lot A2 : CHF 1’370’000.-
Une adresse rare, pensée pour ceux qui recherchent la lumière, la sérénité, la qualité architecturale à Lausanne-Chailly.
Contactez-nous
Remplissez le formulaire ci-dessous pour envoyer un e-mail