Détails
Nature de l'offre
Vente
Surface habitable
±183
m2
Pièces
6
Pièces
Réf.:
77502
Nombre de chambres
3
chambres
Statut
Vendu
Emplacement
Adresse:
Genève, Onex
Description
Promotion de deux spacieuses villas mitoyennes sur la commune d'Onex, dans un quartier calme et résidentiel.
Onex s'étend entre le Rhône et l'Aire. Depuis le parc des Évaux qui borde le Rhône, un plateau monte jusque vers la route de Chancy. Là se situe le village, appelé plus communément le Vieil-Onex, endroit le plus élevé de la commune, à 426 mètres.
Au sud de la commune, entre le village et la plaine de l'Aire se trouve un quartier essentiellement composé de villas là, où se situe la promotion du Cercle.
Crèche :
Crèche Rondin Picotin située à l'Avenue Bois-de-la Chappelle.
Écoles :
Écoles privées Institut Florimont au Petit Lancy et Institut International de Lancy au Grand Lancy et le cycle d'orientation et collège du Marais à la Route de Loëx.
Transports :
La commune est desservie par les lignes (tram et bus) 14, J, K et 43 des TPG.
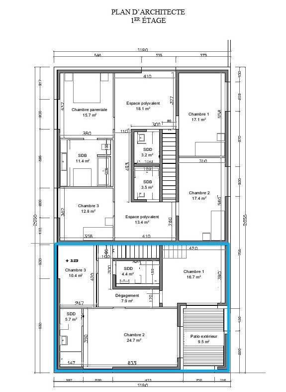
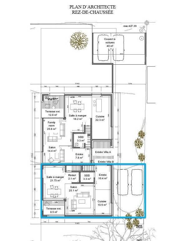
Cette belle villa de 6 pièces aux lignes modernes fait partie d'un projet de deux villas jumelées dans un espace bien arboré. Elle est composée de deux étages et trois niveaux. Elle bénéficie également d'un jardin.
Nombre de chambres : 3
Nombre de salles d'eau : 3
Surface de la parcelle : 505 m2
Surface rez-de-chaussée : 93 m2
Surface 1er étage : 90 m2
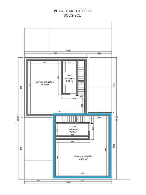
Surface sous-sol : env. 50 m2
Volume villa : 923 m3
Chauffage au sol.
Permis de construire : en force
Durée de la construction : 18 mois
Délivrée : 18 mois après la signature
Possibilité d'acquérir deux places de parking extérieures.
Prix des deux places de parking en sus: CHF 30'000.-
Description générale des travaux disponible sur demande.
Onex s'étend entre le Rhône et l'Aire. Depuis le parc des Évaux qui borde le Rhône, un plateau monte jusque vers la route de Chancy. Là se situe le village, appelé plus communément le Vieil-Onex, endroit le plus élevé de la commune, à 426 mètres.
Au sud de la commune, entre le village et la plaine de l'Aire se trouve un quartier essentiellement composé de villas là, où se situe la promotion du Cercle.
Crèche :
Crèche Rondin Picotin située à l'Avenue Bois-de-la Chappelle.
Écoles :
Écoles privées Institut Florimont au Petit Lancy et Institut International de Lancy au Grand Lancy et le cycle d'orientation et collège du Marais à la Route de Loëx.
Transports :
La commune est desservie par les lignes (tram et bus) 14, J, K et 43 des TPG.
Cette belle villa de 6 pièces aux lignes modernes fait partie d'un projet de deux villas jumelées dans un espace bien arboré. Elle est composée de deux étages et trois niveaux. Elle bénéficie également d'un jardin.
Nombre de chambres : 3
Nombre de salles d'eau : 3
Surface de la parcelle : 505 m2
Surface rez-de-chaussée : 93 m2
Surface 1er étage : 90 m2
Surface sous-sol : env. 50 m2
Volume villa : 923 m3
Chauffage au sol.
Permis de construire : en force
Durée de la construction : 18 mois
Délivrée : 18 mois après la signature
Possibilité d'acquérir deux places de parking extérieures.
Prix des deux places de parking en sus: CHF 30'000.-
Description générale des travaux disponible sur demande.
Contactez-nous
Remplissez le formulaire ci-dessous pour envoyer un e-mail