Détails
Nature de l'offre
Vente
Surface habitable
±56.3
m2
Pièces
2.5
Pièces
Réf.:
62926
Statut
Vendu
Emplacement
Adresse:
Vaud, ROLLE
Description
Panorama de rêve ! Faites de l’exceptionnel votre lieu de résidence !
Bernard Nicod SA a le plaisir de vous présenter sa nouvelle promotion « Baie d’Opale ». Celle-ci saura vous émerveiller avec ses immeubles de haut standing à l’architecture contemporaine et sa situation idyllique.
Située à 70m du lac Léman, longeant la plage de Rolle, ce projet est réalisé par notre Entreprise Générale Bernard Nicod SA et prévoit 6 immeubles PPE.
La « Baie d’Opale » comprend des logements de 1.5 pièces à 5.5 pièces de conception moderne et propose des espaces de vie généreux ainsi qu’une excellente luminosité. 5 surfaces commerciales sont également disponibles à la vente.
Un espace fitness sera mis à disposition des copropriétaires. Le sous-sol abritera l’ensemble des locaux technique, les caves, buanderies et un parking souterrain.
Les aménagements extérieurs de qualité et très soignés mettrons en valeur l’architecture contemporaine des immeubles qui seront à la hauteur des plus exigeants.
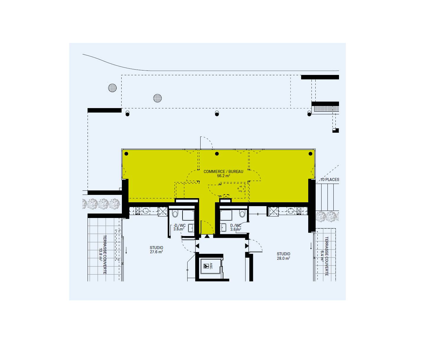
Cette surface commerciale de 56m2 est idéalement située sur la Route de Lausanne. Elle bénéficie d'une très grande vitrine.
Une place de parc intérieure (CHF 48'000.- en sus) complète ce bien.
LES ATOUTS :
- Labélisé Minergie P Eco- Pompe à chaleur à sondes géothermiques- Panneaux photovoltaïque pour une diminution des coûts de votre facture énergétique- Ventilation : système double flux- Thermostat d’ambiance dans toutes les pièces- Construction par l’Entreprise Générale BERNARD NICOD SA
LIVRAISON :
D1 – D2 – D3 = 31.03.2025B2 = 31.05.2025B1 Centre = 30.09.2025B1 Ouest = 31.10.2025
Information et visites : Alexandra JEREZ 079 945 43 90 & Tania LEITE 076 577 34 32
Bernard Nicod SA a le plaisir de vous présenter sa nouvelle promotion « Baie d’Opale ». Celle-ci saura vous émerveiller avec ses immeubles de haut standing à l’architecture contemporaine et sa situation idyllique.
Située à 70m du lac Léman, longeant la plage de Rolle, ce projet est réalisé par notre Entreprise Générale Bernard Nicod SA et prévoit 6 immeubles PPE.
La « Baie d’Opale » comprend des logements de 1.5 pièces à 5.5 pièces de conception moderne et propose des espaces de vie généreux ainsi qu’une excellente luminosité. 5 surfaces commerciales sont également disponibles à la vente.
Un espace fitness sera mis à disposition des copropriétaires. Le sous-sol abritera l’ensemble des locaux technique, les caves, buanderies et un parking souterrain.
Les aménagements extérieurs de qualité et très soignés mettrons en valeur l’architecture contemporaine des immeubles qui seront à la hauteur des plus exigeants.
Cette surface commerciale de 56m2 est idéalement située sur la Route de Lausanne. Elle bénéficie d'une très grande vitrine.
Une place de parc intérieure (CHF 48'000.- en sus) complète ce bien.
LES ATOUTS :
- Labélisé Minergie P Eco- Pompe à chaleur à sondes géothermiques- Panneaux photovoltaïque pour une diminution des coûts de votre facture énergétique- Ventilation : système double flux- Thermostat d’ambiance dans toutes les pièces- Construction par l’Entreprise Générale BERNARD NICOD SA
LIVRAISON :
D1 – D2 – D3 = 31.03.2025B2 = 31.05.2025B1 Centre = 30.09.2025B1 Ouest = 31.10.2025
Information et visites : Alexandra JEREZ 079 945 43 90 & Tania LEITE 076 577 34 32
Contactez-nous
Remplissez le formulaire ci-dessous pour envoyer un e-mail