Détails
Nature de l'offre
Vente
Surface habitable
±111.3
m2
Pièces
4.5
Pièces
Réf.:
66325
Nombre de chambres
3
chambres
Statut
Réservé
Emplacement
Adresse:
Vaud, ROLLE
Description
Panorama de rêve ! Faites de l’exceptionnel votre lieu de résidence !
Bernard Nicod SA a le plaisir de vous présenter sa nouvelle promotion « Baie d’Opale ». Celle-ci saura vous émerveiller avec ses immeubles de haut standing à l’architecture contemporaine et sa situation idyllique.
Située à 70m du lac Léman, longeant la plage de Rolle, ce projet est réalisé par notre Entreprise Générale Bernard Nicod SA et prévoit 6 immeubles PPE.
La « Baie d’Opale » comprend des logements de 1.5 pièces à 5.5 pièces de conception moderne et propose des espaces de vie généreux ainsi qu’une excellente luminosité. Des locaux commerciaux sont également disponibles à la vente.
Les appartements du rez-de-chaussée ont un jardin privatif et tous les logements bénéficient de terrasses ou balcons. 11 attiques avec vue panoramique et des rooftop terrasses offrent jusqu’à 249m2 de surface pondérée.
Un espace fitness sera mis à disposition des copropriétaires. Le sous-sol abritera l’ensemble des locaux technique, les caves, buanderies et un parking souterrain.
Les aménagements extérieurs de qualité et très soignés mettrons en valeur l’architecture contemporaine des immeubles qui seront à la hauteur des plus exigeants.
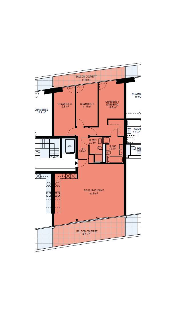
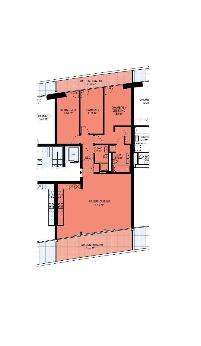
Cet appartement de 4.5 pièces se trouve au premier étage du bâtiment D1.
Il se compose comme suit :
Un hall d'entrée avec une armoire murale, un séjour / cuisine ouverte de plus de 47m2 avec accès à un premier balcon ouvert, une salle de douche, deux chambres à coucher et une chambre parentale avec une salle de bains avec arrivées d'eau pour la colonne de lavage et un dressing. Les trois chambres ont accès à un deuxième balcon couvert.
Deux places de parc intérieures (entre CHF 48'000.- - et 65'000.- par unité en sus) complètent ce bien.
LES ATOUTS :
- Labélisé Minergie P Eco-
Pompe à chaleur à sondes géothermiques
- Panneaux photovoltaïque pour une diminution des coûts de votre facture énergétique
- Ventilation : système double flux
- Thermostat d’ambiance dans toutes les pièces
- Construction par l’Entreprise Générale BERNARD NICOD SA
LIVRAISON :
D1 – D2 = 30.05.2025
D3 = 30.04.2025
B2 = 30.06.2025
B1 Centre = 30.09.2025
B1 Ouest = 31.10.2025
Bernard Nicod SA a le plaisir de vous présenter sa nouvelle promotion « Baie d’Opale ». Celle-ci saura vous émerveiller avec ses immeubles de haut standing à l’architecture contemporaine et sa situation idyllique.
Située à 70m du lac Léman, longeant la plage de Rolle, ce projet est réalisé par notre Entreprise Générale Bernard Nicod SA et prévoit 6 immeubles PPE.
La « Baie d’Opale » comprend des logements de 1.5 pièces à 5.5 pièces de conception moderne et propose des espaces de vie généreux ainsi qu’une excellente luminosité. Des locaux commerciaux sont également disponibles à la vente.
Les appartements du rez-de-chaussée ont un jardin privatif et tous les logements bénéficient de terrasses ou balcons. 11 attiques avec vue panoramique et des rooftop terrasses offrent jusqu’à 249m2 de surface pondérée.
Un espace fitness sera mis à disposition des copropriétaires. Le sous-sol abritera l’ensemble des locaux technique, les caves, buanderies et un parking souterrain.
Les aménagements extérieurs de qualité et très soignés mettrons en valeur l’architecture contemporaine des immeubles qui seront à la hauteur des plus exigeants.
Cet appartement de 4.5 pièces se trouve au premier étage du bâtiment D1.
Il se compose comme suit :
Un hall d'entrée avec une armoire murale, un séjour / cuisine ouverte de plus de 47m2 avec accès à un premier balcon ouvert, une salle de douche, deux chambres à coucher et une chambre parentale avec une salle de bains avec arrivées d'eau pour la colonne de lavage et un dressing. Les trois chambres ont accès à un deuxième balcon couvert.
Deux places de parc intérieures (entre CHF 48'000.- - et 65'000.- par unité en sus) complètent ce bien.
LES ATOUTS :
- Labélisé Minergie P Eco-
Pompe à chaleur à sondes géothermiques
- Panneaux photovoltaïque pour une diminution des coûts de votre facture énergétique
- Ventilation : système double flux
- Thermostat d’ambiance dans toutes les pièces
- Construction par l’Entreprise Générale BERNARD NICOD SA
LIVRAISON :
D1 – D2 = 30.05.2025
D3 = 30.04.2025
B2 = 30.06.2025
B1 Centre = 30.09.2025
B1 Ouest = 31.10.2025
Contactez-nous
Remplissez le formulaire ci-dessous pour envoyer un e-mail
Votre courtier
