Détails
Nature de l'offre
Vente
Surface habitable
±57.1
m2
Pièces
2.5
Pièces
Réf.:
66382
Nombre de chambres
1
chambres
Statut
Vendu
Emplacement
Adresse:
Vaud, ROLLE
Description
Panorama de rêve ! Faites de l’exceptionnel votre lieu de résidence !
Bernard Nicod SA a le plaisir de vous présenter sa nouvelle promotion « Baie d’Opale ». Celle-ci saura vous émerveiller avec ses immeubles de haut standing à l’architecture contemporaine et sa situation idyllique.
Située à 70m du lac Léman, longeant la plage de Rolle, ce projet est réalisé par notre Entreprise Générale Bernard Nicod SA et prévoit 6 immeubles PPE.
La « Baie d’Opale » comprend des logements de 1.5 pièces à 5.5 pièces de conception moderne et propose des espaces de vie généreux ainsi qu’une excellente luminosité. Des locaux commerciaux sont également disponibles à la vente.
Les appartements du rez-de-chaussée ont un jardin privatif et tous les logements bénéficient de terrasses ou balcons. 11 attiques avec vue panoramique et des rooftop terrasses offrent jusqu’à 249m2 de surface pondérée.
Un espace fitness sera mis à disposition des copropriétaires. Le sous-sol abritera l’ensemble des locaux technique, les caves, buanderies et un parking souterrain.
Les aménagements extérieurs de qualité et très soignés mettrons en valeur l’architecture contemporaine des immeubles qui seront à la hauteur des plus exigeants.
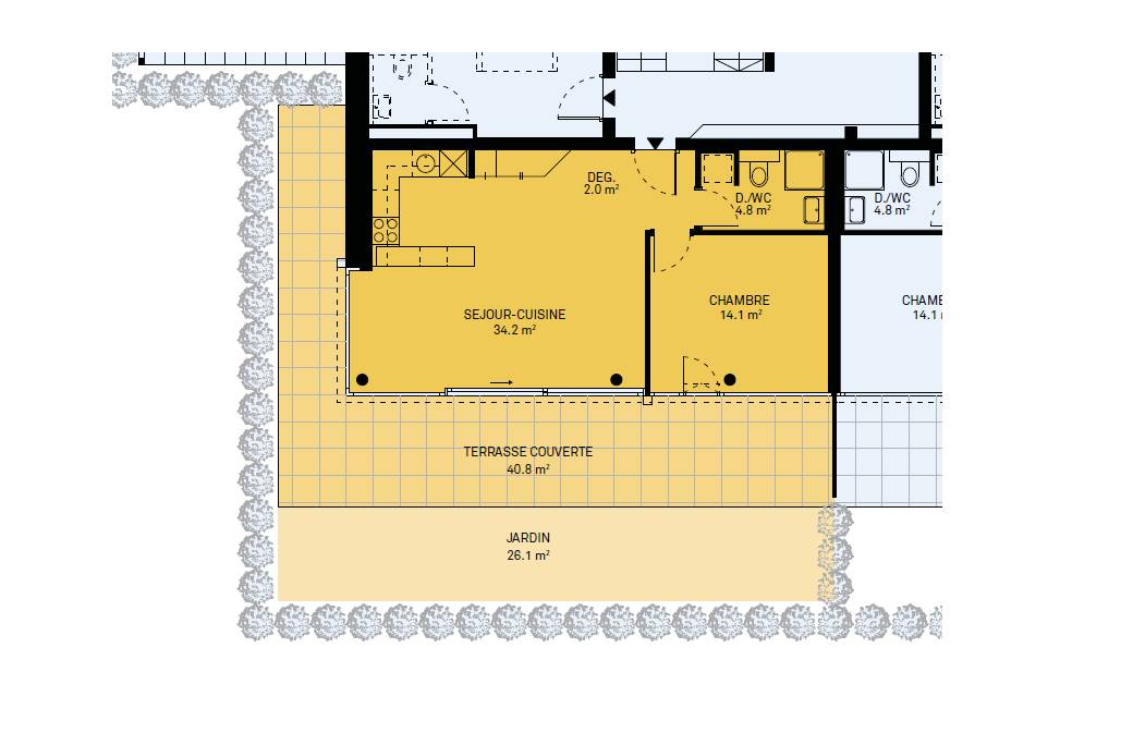
Cet appartement de 2.5 pièces se trouve au rez-de-chaussée du bâtiment B1 Centre.
Il se compose comme suit :
Un hall d'entrée donnant sur un séjour / cuisine ouverte de 34m2 avec accès à la terrasse et au jardin, une salle de douche avec arrivées d'eau pour la colonne de lavage, une chambre ayant également accès aux extérieurs.
Des places de parc intérieures pour motocycles sont disponibles.
LES ATOUTS : - Labélisé Minergie P Eco- Pompe à chaleur à sondes géothermiques- Panneaux photovoltaïque pour une diminution des coûts de votre facture énergétique- Ventilation : système double flux- Thermostat d’ambiance dans toutes les pièces- Finitions au choix de l’acheteur - Construction par l’Entreprise Générale BERNARD NICOD SA
LIVRAISON :
D1 – D2 – D3 = 31.03.2025
B2 = 31.05.2025
B1 Centre = 30.09.2025
B1 Ouest = 31.10.2025
Bernard Nicod SA a le plaisir de vous présenter sa nouvelle promotion « Baie d’Opale ». Celle-ci saura vous émerveiller avec ses immeubles de haut standing à l’architecture contemporaine et sa situation idyllique.
Située à 70m du lac Léman, longeant la plage de Rolle, ce projet est réalisé par notre Entreprise Générale Bernard Nicod SA et prévoit 6 immeubles PPE.
La « Baie d’Opale » comprend des logements de 1.5 pièces à 5.5 pièces de conception moderne et propose des espaces de vie généreux ainsi qu’une excellente luminosité. Des locaux commerciaux sont également disponibles à la vente.
Les appartements du rez-de-chaussée ont un jardin privatif et tous les logements bénéficient de terrasses ou balcons. 11 attiques avec vue panoramique et des rooftop terrasses offrent jusqu’à 249m2 de surface pondérée.
Un espace fitness sera mis à disposition des copropriétaires. Le sous-sol abritera l’ensemble des locaux technique, les caves, buanderies et un parking souterrain.
Les aménagements extérieurs de qualité et très soignés mettrons en valeur l’architecture contemporaine des immeubles qui seront à la hauteur des plus exigeants.
Cet appartement de 2.5 pièces se trouve au rez-de-chaussée du bâtiment B1 Centre.
Il se compose comme suit :
Un hall d'entrée donnant sur un séjour / cuisine ouverte de 34m2 avec accès à la terrasse et au jardin, une salle de douche avec arrivées d'eau pour la colonne de lavage, une chambre ayant également accès aux extérieurs.
Des places de parc intérieures pour motocycles sont disponibles.
LES ATOUTS : - Labélisé Minergie P Eco- Pompe à chaleur à sondes géothermiques- Panneaux photovoltaïque pour une diminution des coûts de votre facture énergétique- Ventilation : système double flux- Thermostat d’ambiance dans toutes les pièces- Finitions au choix de l’acheteur - Construction par l’Entreprise Générale BERNARD NICOD SA
LIVRAISON :
D1 – D2 – D3 = 31.03.2025
B2 = 31.05.2025
B1 Centre = 30.09.2025
B1 Ouest = 31.10.2025
Contactez-nous
Remplissez le formulaire ci-dessous pour envoyer un e-mail
Votre courtier
