Habiter à Orges, avec une vue à couper le souffle : appartement de 4.5 pièces avec terrasse et jardin
Détails
Nature de l'offre
Vente
Surface habitable
±104
m2
Pièces
4.5
Pièces
Réf.:
64120
Nombre de chambres
3
chambres
Statut
Réservé
Emplacement
Adresse:
Vaud, ORGES
Description
EN EXCLUSIVITE CHEZ BERNARD NICOD SA.
Découvrez la nouvelle promotion " Le domaine du Belvédère " qui offre une vue imprenable sur le lac de Neuchâtel et les Alpes.
Nichée dans le charmant village d'Orges, elle est orientée plein sud et offre un cadre de vie paisible et verdoyant à tous ses résidents.
Situé en bordure de zone agricole, ce projet comprend 8 appartements, une villa individuelle et un local commercial répartis dans 3 bâtiments distincts qui sauront garder le charme et l'authenticité de la ferme existante.
Aménagez vos pièces, choisissez la cuisine de vos rêves et finissez votre intérieur selon vos goûts. Votre futur logement sera spacieux, confortable et adapté à votre mode de vie.
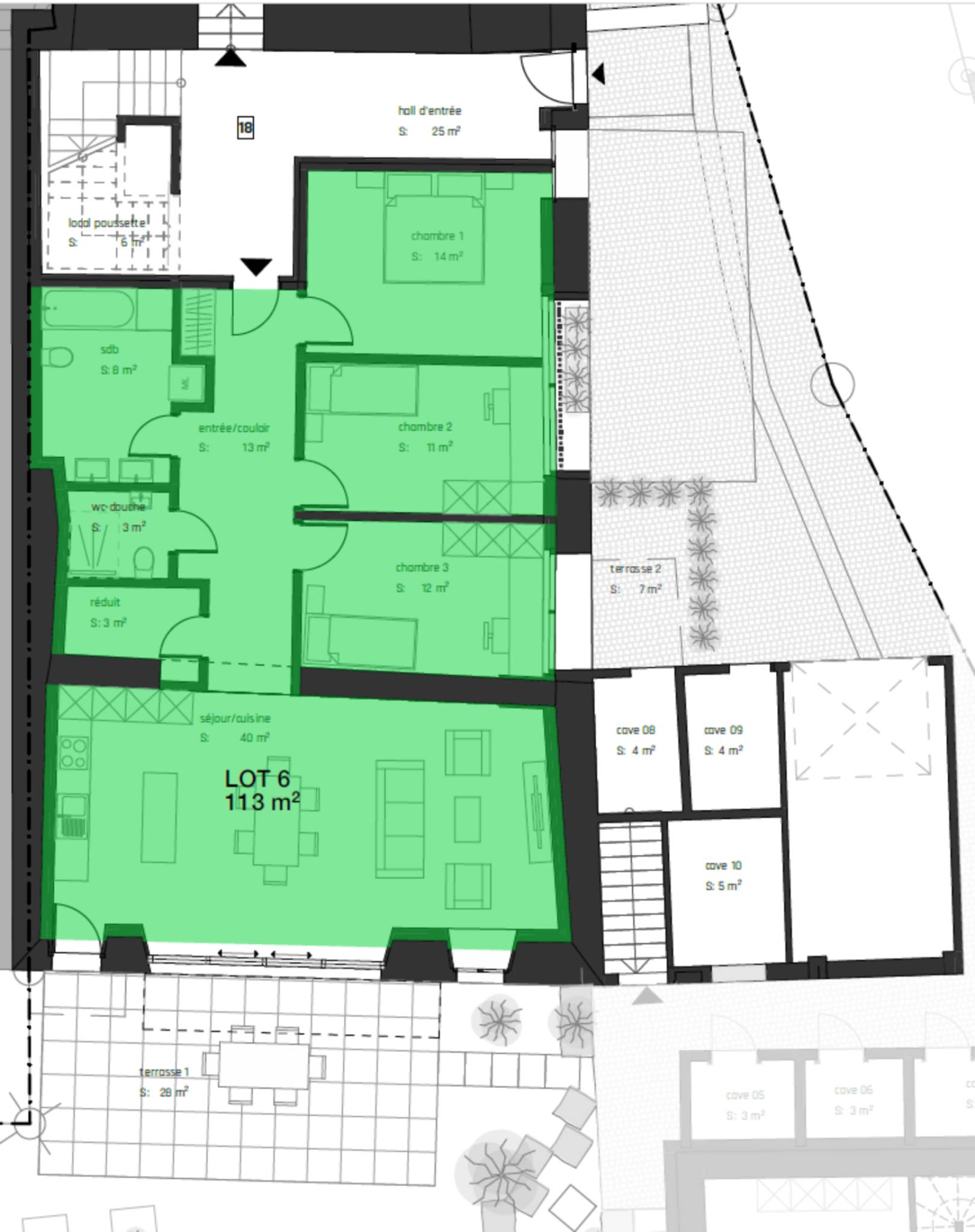
Cet appartement de 4.5 pièces se situe au rez-de-chaussée étage, il se compose comme suit :
Une entrée avec armoire murale, un vaste séjour avec cuisine ouverte de 40 m2 donnant accès à la terrasse et au jardin de 74 m2. Trois chambres à coucher dont une avec accès à un petit jardin de 7 m2, une salle de bains, avec baignoire, lavabo double, WC et emplacement pour la colonne de lavage ainsi qu'une salle de douche/WC. Un réduit de 3 m2 offre un espace de rangement supplémentaire pratique.
Une cave, une place de parc extérieure (CHF 15'000.- l'unité) et un garage fermé (CHF 30'000.- l'unité) complètent ce bien. Il est possible de poser une borne de recharge électrique.
Des jardins suspendus seront réservés exclusivement aux copropriétaires ce qui est un atout unique et précieux.
L'immeuble offre à ses co-propriétaires un carnotzet convivial et chaleureux, idéal pour des moments de partage et de détente. Chaque résident dispose également d'un casier à vin privatif, parfait pour conserver et savourer leurs précieuses bouteilles dans des conditions optimales.
L'ensemble des finitions sont aux choix des futurs propriétaires qui profiteront d'agréables budgets mis à disposition.
Votre logement sera réalisé par des spécialistes aguerrit qui seront là pour répondre à toutes vos questions et vous conseiller tout au long du processus ce qui fera de vous un heureux propriétaire. Ils vous guideront et concrétiseront vos souhaits !
ATOUTS :
- Chaque appartement dispose d’un extérieur, balcon, terrasse ou jardin
- Panneaux photovoltaïques pour réduction de vos factures d’énergies
- Finitions au choix de l’acheteur- Pompe à chaleur avec sonde géothermiques
- Fenêtres triple vitrage- Finitions de qualité
- Plein SUD- En bordure de la zone village
- Très bien isolée (proche Minergie mais sans certification officielle)
La construction est réalisée par des artisans régionaux et des matériaux écologiques. La qualité de l’isolation thermique de l’enveloppe correspond aux exigences de Minergie. La production photovoltaïque permet une très forte réduction des coûts de l’énergie consommée. L’eau de pluie sera récupérée et utilisée pour les robinets extérieurs, les WC et les machine à laver le linge.
Orges est un petit village d’environ 400 habitant situé entre le Jura et le Lac. A 5 minutes de l’entrée d’autoroute Yverdon-Ouest, vous rejoindrez Lausanne ou Neuchâtel en moins de 30 minutes.
Les enfants sont scolarisés dans l’établissement scolaire de Grandson. Pour les plus petits, La Fondation d'Accueil des Enfants de Grandson & Environs propose différentes structures de garde (garderie et parascolaire).
Vous appréciez la nature, le calme mais souhaitez également être proche des grandes villes ? Alors optez sans plus tarder pour la nouvelle promotion.
Vente en quote-part terrain pour frais d'achat réduits !
LIVRAISON : juin 2026
Informations et visites ALEXANDRA JEREZ 079 945 43 90 et TANIA LEITE 076 577 34 32
Découvrez la nouvelle promotion " Le domaine du Belvédère " qui offre une vue imprenable sur le lac de Neuchâtel et les Alpes.
Nichée dans le charmant village d'Orges, elle est orientée plein sud et offre un cadre de vie paisible et verdoyant à tous ses résidents.
Situé en bordure de zone agricole, ce projet comprend 8 appartements, une villa individuelle et un local commercial répartis dans 3 bâtiments distincts qui sauront garder le charme et l'authenticité de la ferme existante.
Aménagez vos pièces, choisissez la cuisine de vos rêves et finissez votre intérieur selon vos goûts. Votre futur logement sera spacieux, confortable et adapté à votre mode de vie.
Cet appartement de 4.5 pièces se situe au rez-de-chaussée étage, il se compose comme suit :
Une entrée avec armoire murale, un vaste séjour avec cuisine ouverte de 40 m2 donnant accès à la terrasse et au jardin de 74 m2. Trois chambres à coucher dont une avec accès à un petit jardin de 7 m2, une salle de bains, avec baignoire, lavabo double, WC et emplacement pour la colonne de lavage ainsi qu'une salle de douche/WC. Un réduit de 3 m2 offre un espace de rangement supplémentaire pratique.
Une cave, une place de parc extérieure (CHF 15'000.- l'unité) et un garage fermé (CHF 30'000.- l'unité) complètent ce bien. Il est possible de poser une borne de recharge électrique.
Des jardins suspendus seront réservés exclusivement aux copropriétaires ce qui est un atout unique et précieux.
L'immeuble offre à ses co-propriétaires un carnotzet convivial et chaleureux, idéal pour des moments de partage et de détente. Chaque résident dispose également d'un casier à vin privatif, parfait pour conserver et savourer leurs précieuses bouteilles dans des conditions optimales.
L'ensemble des finitions sont aux choix des futurs propriétaires qui profiteront d'agréables budgets mis à disposition.
Votre logement sera réalisé par des spécialistes aguerrit qui seront là pour répondre à toutes vos questions et vous conseiller tout au long du processus ce qui fera de vous un heureux propriétaire. Ils vous guideront et concrétiseront vos souhaits !
ATOUTS :
- Chaque appartement dispose d’un extérieur, balcon, terrasse ou jardin
- Panneaux photovoltaïques pour réduction de vos factures d’énergies
- Finitions au choix de l’acheteur- Pompe à chaleur avec sonde géothermiques
- Fenêtres triple vitrage- Finitions de qualité
- Plein SUD- En bordure de la zone village
- Très bien isolée (proche Minergie mais sans certification officielle)
La construction est réalisée par des artisans régionaux et des matériaux écologiques. La qualité de l’isolation thermique de l’enveloppe correspond aux exigences de Minergie. La production photovoltaïque permet une très forte réduction des coûts de l’énergie consommée. L’eau de pluie sera récupérée et utilisée pour les robinets extérieurs, les WC et les machine à laver le linge.
Orges est un petit village d’environ 400 habitant situé entre le Jura et le Lac. A 5 minutes de l’entrée d’autoroute Yverdon-Ouest, vous rejoindrez Lausanne ou Neuchâtel en moins de 30 minutes.
Les enfants sont scolarisés dans l’établissement scolaire de Grandson. Pour les plus petits, La Fondation d'Accueil des Enfants de Grandson & Environs propose différentes structures de garde (garderie et parascolaire).
Vous appréciez la nature, le calme mais souhaitez également être proche des grandes villes ? Alors optez sans plus tarder pour la nouvelle promotion.
Vente en quote-part terrain pour frais d'achat réduits !
LIVRAISON : juin 2026
Informations et visites ALEXANDRA JEREZ 079 945 43 90 et TANIA LEITE 076 577 34 32
Contactez-nous
Remplissez le formulaire ci-dessous pour envoyer un e-mail