Bel appartement de 3.5 pièces avec terrasse plein Sud-Ouest – Quartier recherché - Disponible de suite
Détails
Nature de l'offre
Vente
Surface habitable
±83
m2
Pièces
3.5
Pièces
Réf.:
79842
Nombre de chambres
2
chambres
Coût
CHF 1’050’000.-
Emplacement
Adresse:
Vaud, LAUSANNE
Description
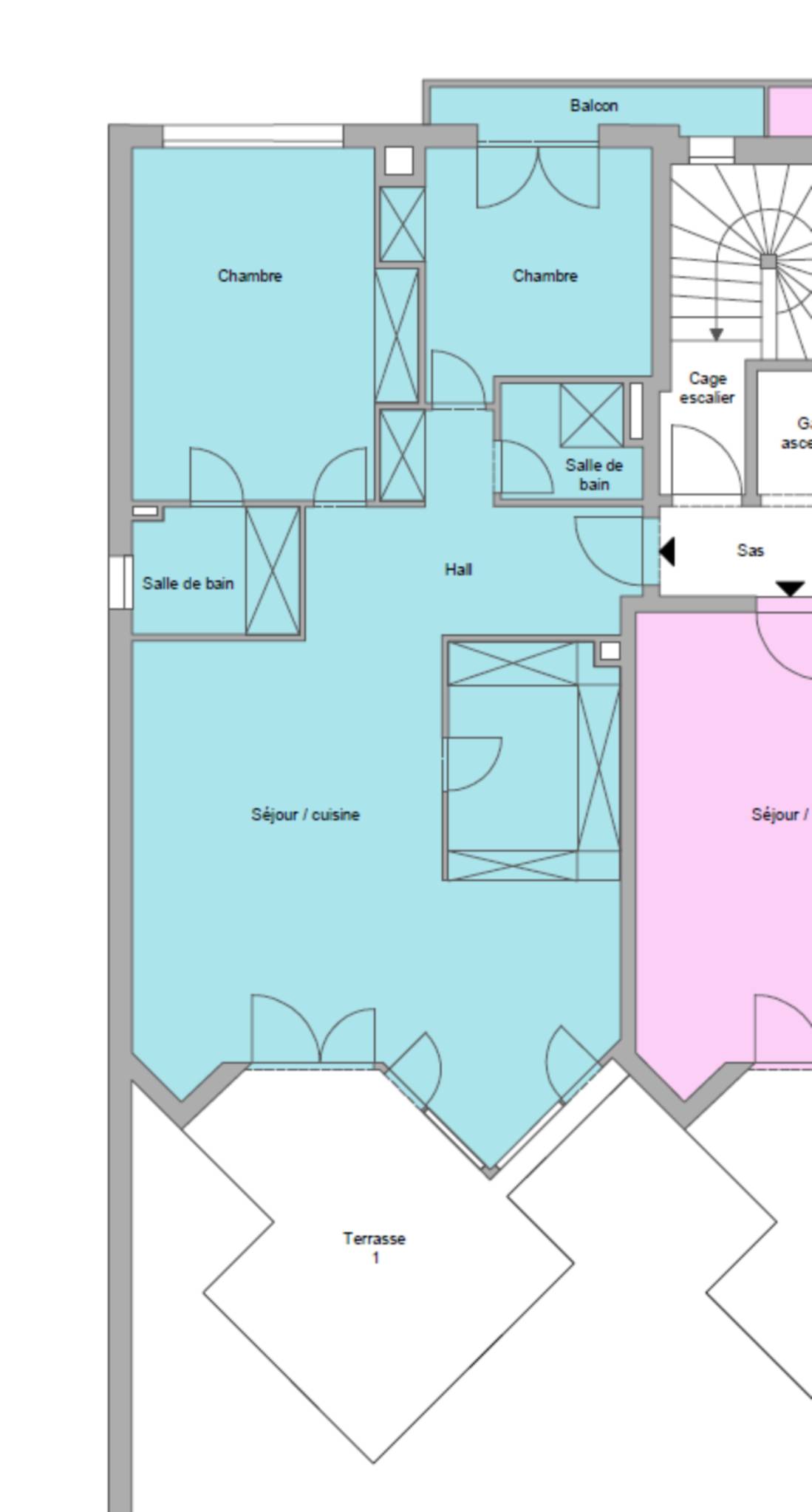
Situé dans l’un des quartiers résidentiels les plus recherchés de Lausanne, à proximité immédiate de toutes les commodités, cet appartement de 3.5 pièces en très bon état offre une configuration très agréable et un bel espace de vie lumineux.
Orienté Sud-Ouest, il bénéficie d’un excellent ensoleillement et d’une terrasse sans vis-à-vis d’environ 16 m², idéale pour profiter des beaux jours en toute tranquillité.
D’une surface d’environ 83 m² habitables, il se compose comme suit :
- Un hall d’entrée avec placard
- Une cuisine fonctionnelle semi-ouverte
- Un séjour convivial donnant sur la terrasse,
- Deux chambres avec placards intégrés dont une avec salle de bains,
- Un WC visiteurs avec douche.
L’appartement est disponible immédiatement.
Une place de parc dans le parking souterrain complète ce bien (en sus du prix).
Nous avons réalisé une simulation d’aménagement (home staging virtuel) afin de vous aider à visualiser l’appartement rénové et meublé. Elle est visible sur la 1ère photo de la terrasse ainsi que sur d’autres images présentes dans la brochure de vente.
Orienté Sud-Ouest, il bénéficie d’un excellent ensoleillement et d’une terrasse sans vis-à-vis d’environ 16 m², idéale pour profiter des beaux jours en toute tranquillité.
D’une surface d’environ 83 m² habitables, il se compose comme suit :
- Un hall d’entrée avec placard
- Une cuisine fonctionnelle semi-ouverte
- Un séjour convivial donnant sur la terrasse,
- Deux chambres avec placards intégrés dont une avec salle de bains,
- Un WC visiteurs avec douche.
L’appartement est disponible immédiatement.
Une place de parc dans le parking souterrain complète ce bien (en sus du prix).
Nous avons réalisé une simulation d’aménagement (home staging virtuel) afin de vous aider à visualiser l’appartement rénové et meublé. Elle est visible sur la 1ère photo de la terrasse ainsi que sur d’autres images présentes dans la brochure de vente.
Contactez-nous
Remplissez le formulaire ci-dessous pour envoyer un e-mail