Attique de 5.5 pièces avec rooftop terrasse de 249m2 au 4ème étage ascenseur avec accès privatif
Détails
Nature de l'offre
Vente
Surface habitable
±150
m2
Pièces
5.5
Pièces
Réf.:
66383
Nombre de chambres
3
chambres
Coût
CHF 3’810’000.-
Emplacement
Adresse:
Vaud, ROLLE
Description
Panorama de rêve ! Faites de l’exceptionnel votre lieu de résidence !
Bernard Nicod SA a le plaisir de vous présenter sa nouvelle promotion « Baie d’Opale ». Celle-ci saura vous émerveiller avec ses immeubles de haut standing à l’architecture contemporaine et sa situation idyllique.
Située à 70m du lac Léman, longeant la plage de Rolle, ce projet est réalisé par notre Entreprise Générale Bernard Nicod SA et prévoit 6 immeubles PPE.
La « Baie d’Opale » comprend des logements de 1.5 pièces à 5.5 pièces de conception moderne et propose des espaces de vie généreux ainsi qu’une excellente luminosité. Des locaux commerciaux sont également disponibles à la vente.
Les appartements du rez-de-chaussée ont un jardin privatif et tous les logements bénéficient de terrasses ou balcons. 11 attiques avec vue panoramique et des rooftop terrasses offrent jusqu’à 249m2 de surface pondérée.
Un espace fitness sera mis à disposition des copropriétaires. Le sous-sol abritera l’ensemble des locaux technique, les caves, buanderies et un parking souterrain.
Les aménagements extérieurs de qualité et très soignés mettrons en valeur l’architecture contemporaine des immeubles qui seront à la hauteur des plus exigeants.
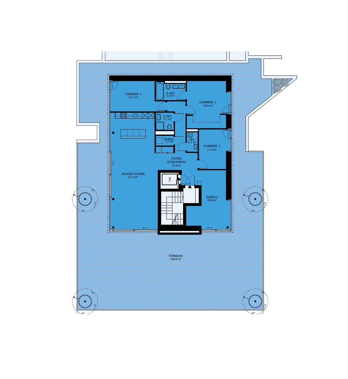
Cet attique de 5.5 pièces se trouve dans le bâtiment B1 Ouest au dernier étage (4ème).
Il se compose comme suit :
Accès directe en ascenseur dans le hall de l'appartement, qui comprend des armoires murales, un grand séjour / cuisine ouverte de plus de 52m2, une salle de douche, un WC séparé, trois chambres à coucher dont une chambre parentale avec salle de bain attenante, un bureau, une buanderie avec arrivées d'eau pour la colonne de lavage. Toutes les pièces de l'appartement ont accès au rooftop terrasse. L'appartement se situe à l'extrémité du côté sud du bâtiment et est complétement entouré par sa terrasse rooftop. Une cave complète ce bien.
Deux places de parc intérieures (108'000.- en sus) complètent ce bien.
LES ATOUTS :
- Labélisé Minergie P Eco- Pompe à chaleur à sondes géothermiques
- Panneaux photovoltaïque pour une diminution des coûts de votre facture énergétique
- Ventilation : système double flux
- Thermostat d’ambiance dans toutes les pièces
- Construction par l’Entreprise Générale BERNARD NICOD SA
LIVRAISON :
D1 – D2 = 30.05.2025
D3 = 30.04.2025
B2 = 30.06.2025
B1 Centre = 30.09.2025
B1 Ouest = 31.10.2025
__________________
An exceptional exclusive five bedroom apartment for sale in this much sought after development in Rolle. The living space is approximately 150m2 (540 sq. ft). and designed to the highest specifications with stunning views of the Lake and the Alps.
This penthouse has been thoughtfully curated to offer an indulgent lifestyle experience that transitions seamlessly from day to evening, and from sunset to starlight.
Located on the very edge of the Leman Lake, The Baie d’Opale is an inspiring collection of studio, 1, 2, 3 and 4 bedroom apartments. Offering green surroundings, La Baie d’Opale boasts some of the most spectacular views of the Alpes and the lake. Its prominent location between Lausanne and Geneva, makes it the commuters dream.
Please feel free to get in touch if you wish to receive any further information
Bernard Nicod SA a le plaisir de vous présenter sa nouvelle promotion « Baie d’Opale ». Celle-ci saura vous émerveiller avec ses immeubles de haut standing à l’architecture contemporaine et sa situation idyllique.
Située à 70m du lac Léman, longeant la plage de Rolle, ce projet est réalisé par notre Entreprise Générale Bernard Nicod SA et prévoit 6 immeubles PPE.
La « Baie d’Opale » comprend des logements de 1.5 pièces à 5.5 pièces de conception moderne et propose des espaces de vie généreux ainsi qu’une excellente luminosité. Des locaux commerciaux sont également disponibles à la vente.
Les appartements du rez-de-chaussée ont un jardin privatif et tous les logements bénéficient de terrasses ou balcons. 11 attiques avec vue panoramique et des rooftop terrasses offrent jusqu’à 249m2 de surface pondérée.
Un espace fitness sera mis à disposition des copropriétaires. Le sous-sol abritera l’ensemble des locaux technique, les caves, buanderies et un parking souterrain.
Les aménagements extérieurs de qualité et très soignés mettrons en valeur l’architecture contemporaine des immeubles qui seront à la hauteur des plus exigeants.
Cet attique de 5.5 pièces se trouve dans le bâtiment B1 Ouest au dernier étage (4ème).
Il se compose comme suit :
Accès directe en ascenseur dans le hall de l'appartement, qui comprend des armoires murales, un grand séjour / cuisine ouverte de plus de 52m2, une salle de douche, un WC séparé, trois chambres à coucher dont une chambre parentale avec salle de bain attenante, un bureau, une buanderie avec arrivées d'eau pour la colonne de lavage. Toutes les pièces de l'appartement ont accès au rooftop terrasse. L'appartement se situe à l'extrémité du côté sud du bâtiment et est complétement entouré par sa terrasse rooftop. Une cave complète ce bien.
Deux places de parc intérieures (108'000.- en sus) complètent ce bien.
LES ATOUTS :
- Labélisé Minergie P Eco- Pompe à chaleur à sondes géothermiques
- Panneaux photovoltaïque pour une diminution des coûts de votre facture énergétique
- Ventilation : système double flux
- Thermostat d’ambiance dans toutes les pièces
- Construction par l’Entreprise Générale BERNARD NICOD SA
LIVRAISON :
D1 – D2 = 30.05.2025
D3 = 30.04.2025
B2 = 30.06.2025
B1 Centre = 30.09.2025
B1 Ouest = 31.10.2025
__________________
An exceptional exclusive five bedroom apartment for sale in this much sought after development in Rolle. The living space is approximately 150m2 (540 sq. ft). and designed to the highest specifications with stunning views of the Lake and the Alps.
This penthouse has been thoughtfully curated to offer an indulgent lifestyle experience that transitions seamlessly from day to evening, and from sunset to starlight.
Located on the very edge of the Leman Lake, The Baie d’Opale is an inspiring collection of studio, 1, 2, 3 and 4 bedroom apartments. Offering green surroundings, La Baie d’Opale boasts some of the most spectacular views of the Alpes and the lake. Its prominent location between Lausanne and Geneva, makes it the commuters dream.
Please feel free to get in touch if you wish to receive any further information
Contactez-nous
Remplissez le formulaire ci-dessous pour envoyer un e-mail
Votre courtier
