Détails
Nature de l'offre
Vente
Surface habitable
±99.5
m2
Pièces
3.5
Pièces
Réf.:
79730
Nombre de chambres
2
chambres
Coût
CHF 1’370’000.-
Emplacement
Adresse:
Vaud, Lausanne
Description
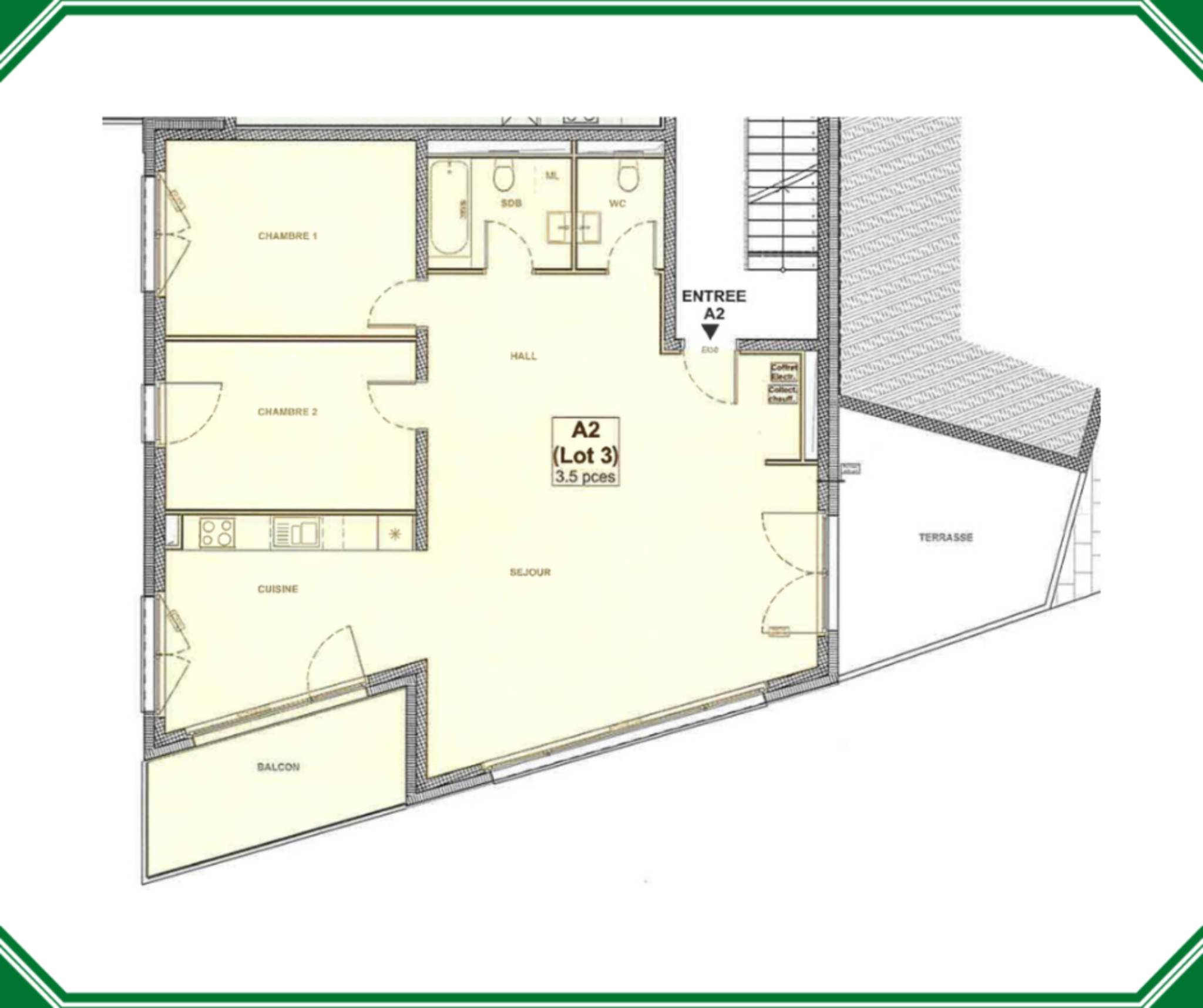
Cet appartement offre une agréable pièce de vie où la cuisine semi-ouverte s’intègre harmonieusement au séjour, créant un espace convivial avec un coin à manger idéal pour recevoir.
La cuisine se prolonge par un balcon de 8,7 m², tandis que le salon s’ouvre sur une belle terrasse de 13,4 m², parfaits pour profiter des beaux jours et des moments de détente en extérieur.
L’espace nuit se compose de deux grandes chambres confortables. Une salle de bains fonctionnelle ainsi qu’un toilette visiteurs viennent compléter ce bien aux prestations appréciables.
Pensées pour un confort quotidien sans compromis, les résidences offrent des espaces communs soignés, caves privatives, local pour vélos/poussettes et zone de bricolage.
Places de parc extérieures en sus entre CHF 30'000.- et CHF 40'000.-.
Familles, couples ou jeunes seniors trouveront ici un cadre de vie harmonieux, alliant modernité, sérénité et élégance, au sein d’un quartiers prisé de Lausanne.
La cuisine se prolonge par un balcon de 8,7 m², tandis que le salon s’ouvre sur une belle terrasse de 13,4 m², parfaits pour profiter des beaux jours et des moments de détente en extérieur.
L’espace nuit se compose de deux grandes chambres confortables. Une salle de bains fonctionnelle ainsi qu’un toilette visiteurs viennent compléter ce bien aux prestations appréciables.
Pensées pour un confort quotidien sans compromis, les résidences offrent des espaces communs soignés, caves privatives, local pour vélos/poussettes et zone de bricolage.
Places de parc extérieures en sus entre CHF 30'000.- et CHF 40'000.-.
Familles, couples ou jeunes seniors trouveront ici un cadre de vie harmonieux, alliant modernité, sérénité et élégance, au sein d’un quartiers prisé de Lausanne.
Contactez-nous
Remplissez le formulaire ci-dessous pour envoyer un e-mail