Détails
Nature de l'offre
Vente
Surface habitable
±157
m2
Pièces
5.5
Pièces
Réf.:
62070
Nombre de chambres
3
chambres
Coût
CHF 2’950’000.-
Emplacement
Adresse:
Vaud, LAUSANNE
Description
Niché dans un prestigieux immeuble classé du XIXe siècle, à quelques pas du Musée Olympique, cet appartement d'exception de 5,5 pièces offre un cadre de vie unique au cœur de l'un des quartiers les plus prisés de Lausanne.
Cette demeure d'exception évoque l'élégance d'un hôtel particulier, une rareté sur le marché. Cheminé d'époque, moulures délicates et volumes majestueux confèrent à cet appartement un cachet incomparable.
Baignés de lumière, ces espaces généreux mettent en valeur une superbe hauteur sous plafond ainsi qu'un double séjour, créant une atmosphère chaleureuse et accueillante.
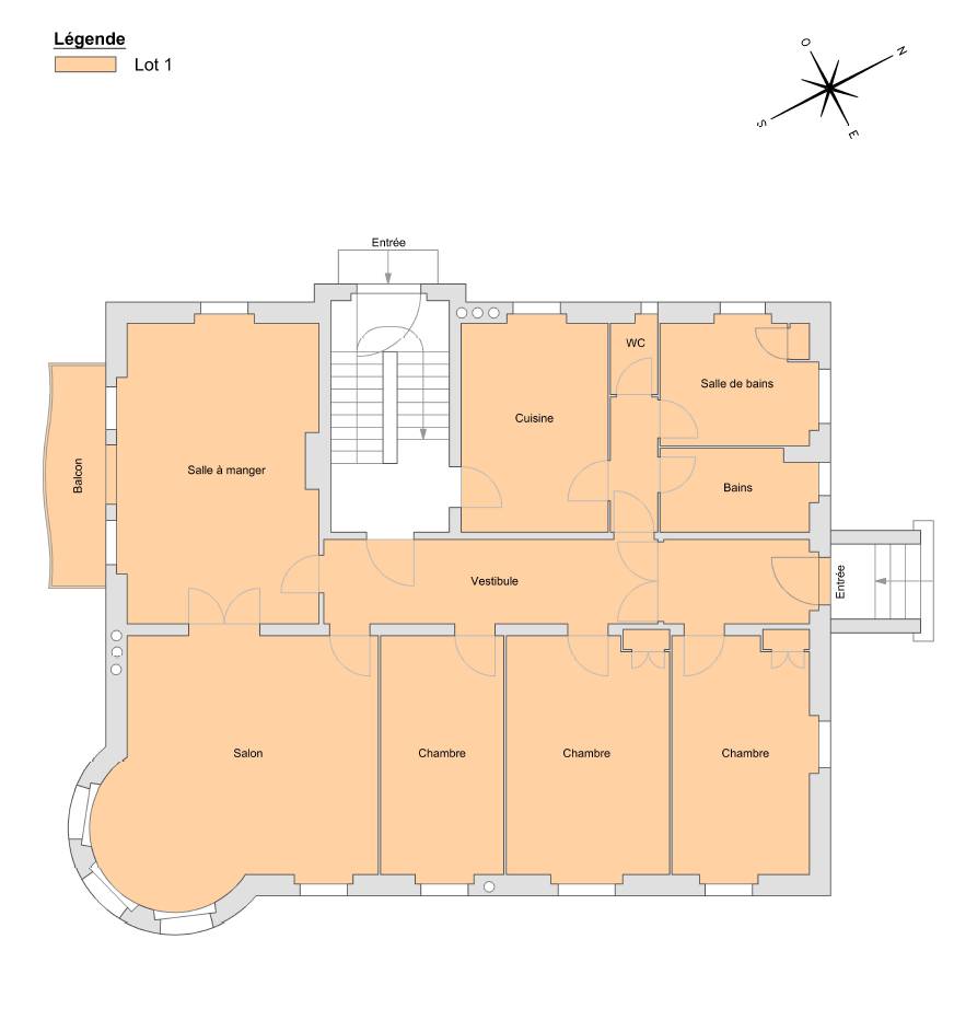
Situé au rez de jardin et offrant une superficie d'environ 160 m², cet appartement allie avec élégance le charme de l'ancien au confort moderne. Il se compose comme suit :
Entrée indépendante, grand vestivule, vaste pièce à vivre (salon + salle à manger) de 57 m² avec balcon, cuisine indépendante et habitable, 3 chambres, deux salles de bains, un wc indépendant et un superbe jardin arboré de 207 m². Un véritable écrin de verdure au cœur de la ville, idéal pour se ressourcer.
Pour votre confort, une place de parking est disponible au pied de la maison, et vous trouverez les transports en commun ainsi que les commerces à seulement quelques mètres.
L'appartement comprend par ailleurs un galetas non aménagé et une cave.
De plus, il est possible d’acquérir un grand espace au sous-sol, doté de fenêtres, pouvant être utilisé comme atelier ou espace de stockage.
À noter que ce bien est disponible rapidement et nécessite des travaux de rafraichissement.
Pour plus d'informations ou afin d'organiser une visite, contactez votre courtier : Luigi Lombardi +41 (0)79 206 67 56 ou notre agence au +41 (0)21 331 55 37
Cette demeure d'exception évoque l'élégance d'un hôtel particulier, une rareté sur le marché. Cheminé d'époque, moulures délicates et volumes majestueux confèrent à cet appartement un cachet incomparable.
Baignés de lumière, ces espaces généreux mettent en valeur une superbe hauteur sous plafond ainsi qu'un double séjour, créant une atmosphère chaleureuse et accueillante.
Situé au rez de jardin et offrant une superficie d'environ 160 m², cet appartement allie avec élégance le charme de l'ancien au confort moderne. Il se compose comme suit :
Entrée indépendante, grand vestivule, vaste pièce à vivre (salon + salle à manger) de 57 m² avec balcon, cuisine indépendante et habitable, 3 chambres, deux salles de bains, un wc indépendant et un superbe jardin arboré de 207 m². Un véritable écrin de verdure au cœur de la ville, idéal pour se ressourcer.
Pour votre confort, une place de parking est disponible au pied de la maison, et vous trouverez les transports en commun ainsi que les commerces à seulement quelques mètres.
L'appartement comprend par ailleurs un galetas non aménagé et une cave.
De plus, il est possible d’acquérir un grand espace au sous-sol, doté de fenêtres, pouvant être utilisé comme atelier ou espace de stockage.
À noter que ce bien est disponible rapidement et nécessite des travaux de rafraichissement.
Pour plus d'informations ou afin d'organiser une visite, contactez votre courtier : Luigi Lombardi +41 (0)79 206 67 56 ou notre agence au +41 (0)21 331 55 37
Contactez-nous
Remplissez le formulaire ci-dessous pour envoyer un e-mail