Détails
Nature de l'offre
Vente
Surface habitable
±109.3
m2
Pièces
4.5
Pièces
Réf.:
66635
Nombre de chambres
3
chambres
Statut
Vendu
Emplacement
Adresse:
Vaud, ROLLE
Description
Panorama de rêve ! Faites de l’exceptionnel votre lieu de résidence !
Bernard Nicod SA a le plaisir de vous présenter sa nouvelle promotion « Baie d’Opale ». Celle-ci saura vous émerveiller avec ses immeubles de haut standing à l’architecture contemporaine et sa situation idyllique.
Située à 70m du lac Léman, longeant la plage de Rolle, ce projet est réalisé par notre Entreprise Générale Bernard Nicod SA et prévoit 6 immeubles PPE.
La « Baie d’Opale » comprend des logements de 1.5 pièces à 5.5 pièces de conception moderne et propose des espaces de vie généreux ainsi qu’une excellente luminosité. Des locaux commerciaux sont également disponibles à la vente.
Les appartements du rez-de-chaussée ont un jardin privatif et tous les logements bénéficient de terrasses ou balcons. 11 attiques avec vue panoramique et des rooftop terrasses offrent jusqu’à 249m2 de surface pondérée.
Un espace fitness sera mis à disposition des copropriétaires. Le sous-sol abritera l’ensemble des locaux technique, les caves, buanderies et un parking souterrain.
Les aménagements extérieurs de qualité et très soignés mettrons en valeur l’architecture contemporaine des immeubles qui seront à la hauteur des plus exigeants.
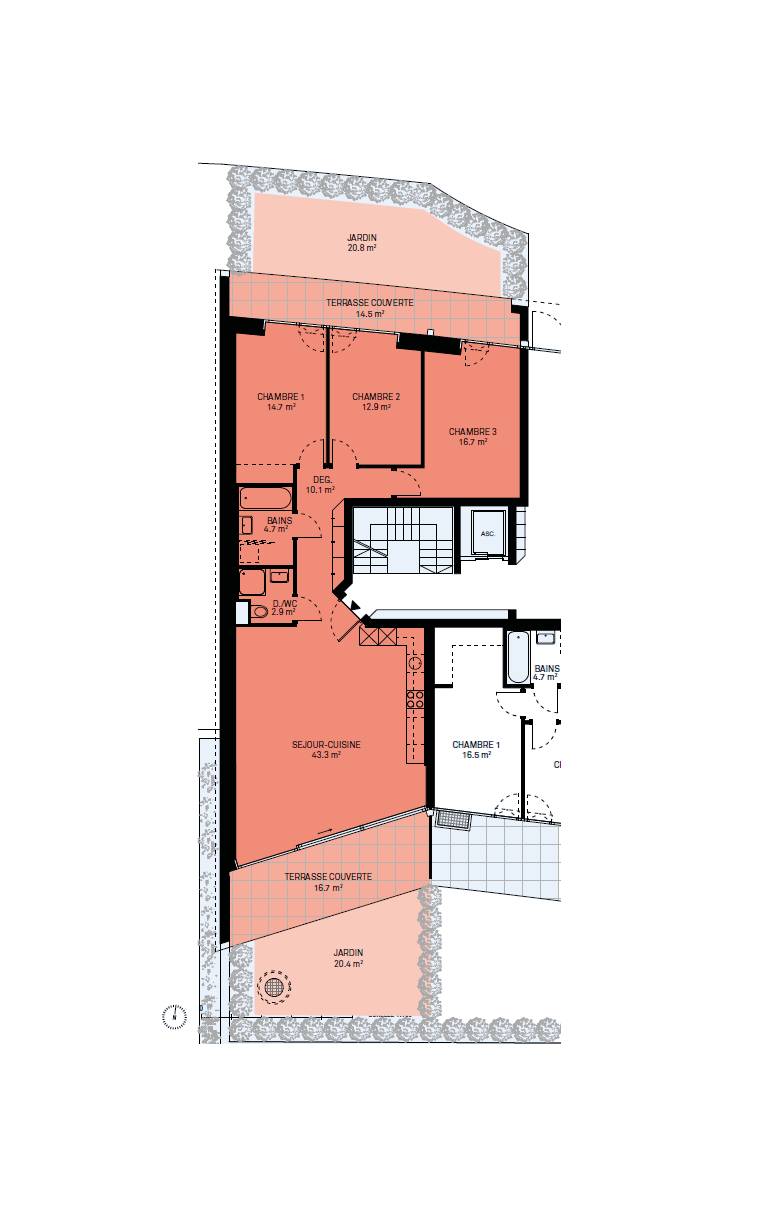
Cet appartement de 4.5 pièces se trouve au rez-de-chaussée du bâtiment D3.
Il se compose comme suit :Hall d'entrée avec armoires murales, cuisine ouverte sur le séjour de plus de 43m2 avec accès à la terrasse couverte de 16.7m2 et au jardin privatif de 20.4m2. Une salle de douche WC, une salle de bains avec raccordement pour colonne de lavage ainsi que 3 chambres à coucher avec toutes accès à la seconde terrasse de 14.5m2 et au second jardin privatif de 20.8m2.
Deux places de parc intérieures (entre CHF 48'000.- - et 65'000.- par unité en sus) complètent ce bien. Des places de parc intérieures pour motocycles sont disponibles.
LES ATOUTS : - Labélisé Minergie P Eco- Pompe à chaleur à sondes géothermiques- Panneaux photovoltaïque pour une diminution des coûts de votre facture énergétique- Ventilation : système double flux- Thermostat d’ambiance dans toutes les pièces- Finitions au choix de l’acheteur - Construction par l’Entreprise Générale BERNARD NICOD SA
LIVRAISON : D1 – D2 – D3 = 31.03.2025 B2 = 31.05.2025B1 Centre = 30.09.2025B1 Ouest = 31.10.2025
Objets rares à découvrir ! Vue Lac et Mont-blanc à perte de vue.
Information et visites : Alexandra JEREZ 079 945 43 90 & Tania LEITE 076 577 34 32
__________
Located on the very edge of the Leman Lake, The Baie d’Opale is an inspiring collection of studio, 1, 2, 3 and 4 bedroom apartments. Offering green surroundings, La Baie d’Opale boasts some of the most spectacular views of the Alpes and the lake. Its prominent location between Lausanne and Geneva, makes it the commuters dream.
Please feel free to get in touch if you wish to receive any further information: Tania Leite 076 577 34 32
Bernard Nicod SA a le plaisir de vous présenter sa nouvelle promotion « Baie d’Opale ». Celle-ci saura vous émerveiller avec ses immeubles de haut standing à l’architecture contemporaine et sa situation idyllique.
Située à 70m du lac Léman, longeant la plage de Rolle, ce projet est réalisé par notre Entreprise Générale Bernard Nicod SA et prévoit 6 immeubles PPE.
La « Baie d’Opale » comprend des logements de 1.5 pièces à 5.5 pièces de conception moderne et propose des espaces de vie généreux ainsi qu’une excellente luminosité. Des locaux commerciaux sont également disponibles à la vente.
Les appartements du rez-de-chaussée ont un jardin privatif et tous les logements bénéficient de terrasses ou balcons. 11 attiques avec vue panoramique et des rooftop terrasses offrent jusqu’à 249m2 de surface pondérée.
Un espace fitness sera mis à disposition des copropriétaires. Le sous-sol abritera l’ensemble des locaux technique, les caves, buanderies et un parking souterrain.
Les aménagements extérieurs de qualité et très soignés mettrons en valeur l’architecture contemporaine des immeubles qui seront à la hauteur des plus exigeants.
Cet appartement de 4.5 pièces se trouve au rez-de-chaussée du bâtiment D3.
Il se compose comme suit :Hall d'entrée avec armoires murales, cuisine ouverte sur le séjour de plus de 43m2 avec accès à la terrasse couverte de 16.7m2 et au jardin privatif de 20.4m2. Une salle de douche WC, une salle de bains avec raccordement pour colonne de lavage ainsi que 3 chambres à coucher avec toutes accès à la seconde terrasse de 14.5m2 et au second jardin privatif de 20.8m2.
Deux places de parc intérieures (entre CHF 48'000.- - et 65'000.- par unité en sus) complètent ce bien. Des places de parc intérieures pour motocycles sont disponibles.
LES ATOUTS : - Labélisé Minergie P Eco- Pompe à chaleur à sondes géothermiques- Panneaux photovoltaïque pour une diminution des coûts de votre facture énergétique- Ventilation : système double flux- Thermostat d’ambiance dans toutes les pièces- Finitions au choix de l’acheteur - Construction par l’Entreprise Générale BERNARD NICOD SA
LIVRAISON : D1 – D2 – D3 = 31.03.2025 B2 = 31.05.2025B1 Centre = 30.09.2025B1 Ouest = 31.10.2025
Objets rares à découvrir ! Vue Lac et Mont-blanc à perte de vue.
Information et visites : Alexandra JEREZ 079 945 43 90 & Tania LEITE 076 577 34 32
__________
Located on the very edge of the Leman Lake, The Baie d’Opale is an inspiring collection of studio, 1, 2, 3 and 4 bedroom apartments. Offering green surroundings, La Baie d’Opale boasts some of the most spectacular views of the Alpes and the lake. Its prominent location between Lausanne and Geneva, makes it the commuters dream.
Please feel free to get in touch if you wish to receive any further information: Tania Leite 076 577 34 32
Contactez-nous
Remplissez le formulaire ci-dessous pour envoyer un e-mail