Détails
Nature de l'offre
Vente
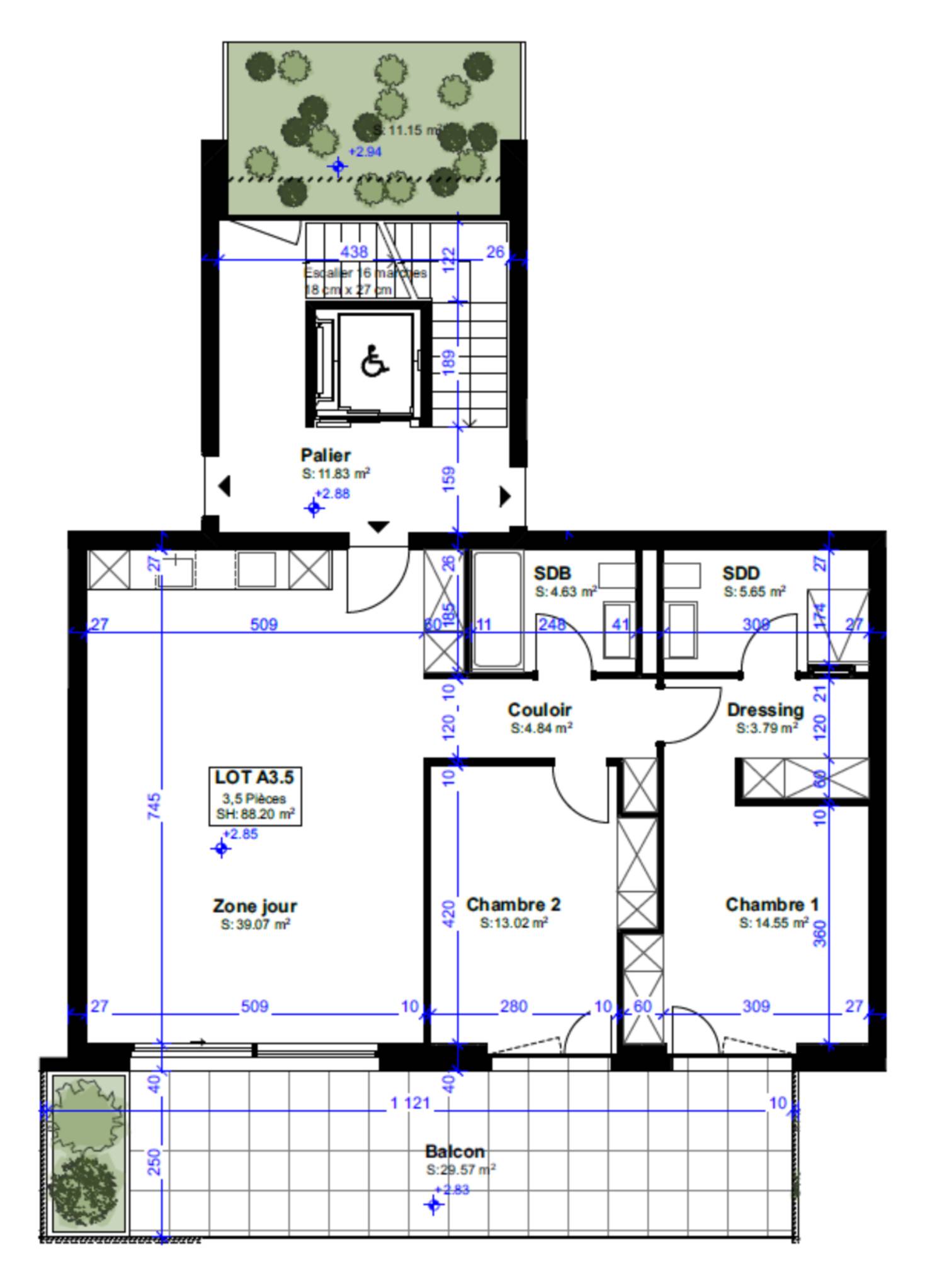
Surface habitable
±88
m2
Pièces
3.5
Pièces
Réf.:
79266
Nombre de chambres
2
chambres
Coût
CHF 1’170’000.-
Emplacement
Adresse:
Vaud, Échandens
Description
Idéalement situé entre Lausanne et Morges, Échandens allie atmosphère de village et proximité urbaine. Le village bénéficie d’accès rapides à l’EPFL, aux transports publics et à l’autoroute, avec écoles, commerces, médecins et pharmacies à proximité immédiate.
Nichée au cœur d’un splendide parc paysager de 1,5 hectare, cette résidence neuve de standing (rez-de-chaussée + deux étages) s’intègre harmonieusement dans un cadre verdoyant unique. Richement arboré et doté d’un biotope, le parc offre un véritable tableau végétal évoluant au fil des saisons.
Le chauffage et l’eau chaude sont assurés par des pompes à chaleur géothermiques alimentées par des panneaux solaires en toiture. Les eaux de pluie sont récupérées pour l’arrosage et l’entretien du biotope. Les véhicules sont relégués au sous-sol, préservant ainsi calme et sérénité.
Cet appartement de 3,5 pièces au 1er étage, orienté sud, propose 88 m² habitables, prolongés par une superbe terrasse de 30 m².
Sa disposition intérieure est la suivante :
- Spacieux séjour avec cuisine ouverte et accès direct à la terrasse
- Une chambre avec placard intégré
- Une salle de bains
- Une suite parentale avec espace dressing et salle de douche privative
Une grande cave ainsi qu’une généreuse buanderie privative et chauffée en sous-sol complètent ce bien d’exception.
Chaque logement bénéficie de finitions haut de gamme : parquet en chêne, cuisine entièrement équipée avec électroménager ZUG, salles de bains raffinées et confort optimal. Le parking souterrain, préparé pour accueillir des bornes de recharge, ainsi que des places pour motos sont disponibles en option.
La livraison est prévue pour fin mars 2026, offrant l’opportunité d’emménager sereinement dans un cadre rare, où confort, nature et modernité se rencontrent.
Nichée au cœur d’un splendide parc paysager de 1,5 hectare, cette résidence neuve de standing (rez-de-chaussée + deux étages) s’intègre harmonieusement dans un cadre verdoyant unique. Richement arboré et doté d’un biotope, le parc offre un véritable tableau végétal évoluant au fil des saisons.
Le chauffage et l’eau chaude sont assurés par des pompes à chaleur géothermiques alimentées par des panneaux solaires en toiture. Les eaux de pluie sont récupérées pour l’arrosage et l’entretien du biotope. Les véhicules sont relégués au sous-sol, préservant ainsi calme et sérénité.
Cet appartement de 3,5 pièces au 1er étage, orienté sud, propose 88 m² habitables, prolongés par une superbe terrasse de 30 m².
Sa disposition intérieure est la suivante :
- Spacieux séjour avec cuisine ouverte et accès direct à la terrasse
- Une chambre avec placard intégré
- Une salle de bains
- Une suite parentale avec espace dressing et salle de douche privative
Une grande cave ainsi qu’une généreuse buanderie privative et chauffée en sous-sol complètent ce bien d’exception.
Chaque logement bénéficie de finitions haut de gamme : parquet en chêne, cuisine entièrement équipée avec électroménager ZUG, salles de bains raffinées et confort optimal. Le parking souterrain, préparé pour accueillir des bornes de recharge, ainsi que des places pour motos sont disponibles en option.
La livraison est prévue pour fin mars 2026, offrant l’opportunité d’emménager sereinement dans un cadre rare, où confort, nature et modernité se rencontrent.
Contactez-nous
Remplissez le formulaire ci-dessous pour envoyer un e-mail